グランピュア A ***号室(2階/1LDK)の賃貸物件(賃貸アパート)
宮城県仙台市若林区にあるグランピュア A ***号室はIHコンロ、浴室乾燥機、フローリング、最上階、BSなどが特徴です。最寄り駅の仙台市交通局東西線荒井駅から徒歩16分です。グランピュア A ***号室の詳細はハウスコム FC仙台東口店までお気軽にお問い合わせください!
情報更新日:
次回更新予定日:
※次回更新予定日について:お店側では順次空室確認を行っていますが、次回更新予定日までに空室確認が行えない場合には、この物件情報は自動的に削除されます。
グランピュア A ***号室の賃貸物件部屋概要
家賃 |
7.8万円
初期費用を |
|---|---|
共益費 |
5,000円
入居可能時期 |
敷金/礼金 |
- / 1ヶ月 |
保証金/ |
- / - |
最寄駅 |
|
所在地 |
宮城県仙台市若林区荒井東 |
部屋番号 |
***号室 |
間取り |
1LDK(LDK9・洋5.6) |
専有面積 |
42.83㎡ |
築年数 |
2015年9月(築11年) |
階数 |
2階部分(地上2階建) |
方位・位置 |
南東 / 角部屋 |
物件種別 |
賃貸アパート |
構造 |
軽量鉄骨 |
駐車場 |
7,700円 |
小学校学区 |
七郷小学校 |
中学校学区 |
七郷中学校 |
他の空き部屋 |
ー |
- 学区データについて
- ※学区データは必ずしも正確とは限りません。詳細に関しては最寄店舗または各自治体の教育委員会に必ずご確認ください。
グランピュア A ***号室の特徴
-
一人暮らしに人気の設備

-
カップルに人気の設備

-
家族に人気の設備

-
夫婦に人気の設備

-
三世代で人気の設備

-
雨の日でも洗濯したい

-
室内で洗濯物を乾かしたい

-
洋室で暮らしたい

-
服やおしゃれが好き

-
推し活グッズを飾りたい

契約条件
敷金が無料なため、初期費用が比較的安くなる傾向にあります。 お支払いは、初期費用がクレジットカードにて決済できます。
セキュリティ
来客時には居室内のテレビモニターにて訪問者の顔を確認することができます。
室内設備
システムキッチンには、IHコンロが備え付けられています。 お風呂とトイレは別です。お風呂には、追い焚き機能が備わっています。 トイレは、温水洗浄便座機能付きになります。 洗濯に便利な設備として、室内洗濯機置場があり、室内物干機で室内干しがしやすい環境になります。浴室乾燥機も設置されているので、梅雨時の生乾き臭も比較的防ぐことができます。
居室状況
お部屋の床は、フローリングとなっており、エアコンが設置されています。 インターネットも無料で入居後すぐ生活が始められます。 収納スペースとして、通常よりも収納力の高いウォークインクローゼット、玄関にはシューズボックスがあります。
建物設備共用部分
居室外の専有スペースとして、洗濯物を干すなどの用途として利用できるバルコニーがあります。 駐輪場が利用できます。
周辺施設
この物件の学区は、七郷小学校区・七郷中学校区です。近くには、徒歩2分(119m)でドラッグストアがあります。
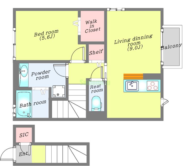
グランピュア A ***号室の間取り
間取り:1LDK
間取詳細:1LDK(LDK9・洋5.6)
専有面積:42.83㎡
方位:南東
部屋位置:角部屋
グランピュア A ***号室の設備
キッチン
システムキッチン
カウンターキッチン
IHコンロ
バス・トイレ
バス・トイレ別
追い焚き
浴室乾燥機
温水洗浄便座
玄関
TVモニタ付インターホン
収納
ウォークインクローゼット
シューズボックス
バルコニー
バルコニー
室内設備
エアコン
フローリング
室内洗濯機置場
室内物干機
位置・立地
2階以上
最上階
角部屋
インフラ
BS
プロパンガス
建物設備
駐輪場
ライフステージ
一人暮らしに人気の設備
カップルに人気の設備
家族に人気の設備
夫婦に人気の設備
三世代で人気の設備
こだわり
雨の日でも洗濯したい
室内で洗濯物を乾かしたい
洋室で暮らしたい
趣味
服やおしゃれが好き
推し活グッズを飾りたい
お得な条件
仲介手数料1ヶ月未満
インターネット無料
初期費用カード決済可
グランピュア A ***号室の賃貸契約情報
毎月支払う |
家賃7.8万円/月共益費5,000円/月 |
|---|---|
初期費用 |
敷金-礼金1ヶ月 (7.8万円)保証金-敷引き償却金- |
更新料 |
1ヶ月 |
鍵交換費用 |
19,250円 |
室内清掃費用 |
64,900円 |
保険料 |
800円 |
駐車場料金 |
7,700円 |
損保・ |
借家賠付きの火災保険にご加入いただきます。 |
保証会社 |
加入要 保証会社:イントラスト 保証会社利用料:初回契約時:35,000円、月額:1% |
契約期間 |
2年 |
入居可能日 |
2026年02月下旬 |
フリーレント期間 |
- |
取引形態 |
一般媒介 |
備考 |
- |
グランピュア A ***号室の建物情報
建物名称 |
グランピュア A |
|---|---|
最寄駅 |
|
所在地 |
宮城県仙台市若林区荒井東 |
階層 |
2階部分(地上2階建) |
構造 |
軽量鉄骨 |
築年数 |
2015年9月(築11年) |
駐車場 |
7,700円 |
小学校学区 |
七郷小学校 |
中学校学区 |
七郷中学校 |
- 学区データについて
- ※学区データは必ずしも正確とは限りません。詳細に関しては最寄店舗または各自治体の教育委員会に必ずご確認ください。
無料この物件に問い合わせ
- グランピュア A ***号室

-
7.8万円
(共益費
5,000円)
- 敷
- -
- 礼
- 1ヶ月
- 保
- -
- 償
- -
グランピュア A ***号室の物件のお問い合わせ先・取り扱い店舗
ハウスコム FC仙台東口店
- アクセス
-
仙石線「榴ケ岡駅」徒歩4分
東北本線「仙台駅」徒歩6分
仙台市交通局東西線「宮城野通駅」徒歩5分
- 住所
- 〒983-0852 宮城県仙台市宮城野区榴岡4丁目12-2 オダシマビル301
- 営業時間
- 10:00~18:00
- 定休日
- 水曜日
- 営業エリア
- 宮城県仙台市全域・富谷市・名取市・多賀城市
- 取引態様
- 賃貸仲介業・FC店





























