エスリード新栄プライム 0603号室(6階/1K)の賃貸物件(賃貸マンション)
愛知県名古屋市中区にあるエスリード新栄プライム 0603号室は浴室乾燥機、エアコン、BS、防犯カメラ、ペット可・相談などが特徴です。最寄り駅の名古屋市営地下鉄 東山線新栄町駅から徒歩7分です。エスリード新栄プライム 0603号室の詳細はハウスコム 中村公園店までお気軽にお問い合わせください!
情報更新日:
次回更新予定日:
※次回更新予定日について:お店側では順次空室確認を行っていますが、次回更新予定日までに空室確認が行えない場合には、この物件情報は自動的に削除されます。
エスリード新栄プライム 0603号室の賃貸物件部屋概要
家賃 |
5.94万円
初期費用を |
|---|---|
共益費 |
8,000円
入居可能時期 |
敷金/礼金 |
- / - |
保証金/ |
- / - |
最寄駅 |
|
所在地 |
愛知県名古屋市中区新栄 |
部屋番号 |
0603号室 |
間取り |
1K(洋7.5) |
専有面積 |
25.35㎡ |
築年数 |
2021年3月(築5年) |
階数 |
6階部分(地上13階建) |
方位・位置 |
南西 / その他 |
物件種別 |
賃貸マンション |
構造 |
RC |
駐車場 |
- |
小学校学区 |
新栄小学校 |
中学校学区 |
白山中学校 |
他の空き部屋 |
0310号室 0502号室 0608号室 1109号室 |
- 学区データについて
- ※学区データは必ずしも正確とは限りません。詳細に関しては最寄店舗または各自治体の教育委員会に必ずご確認ください。
エスリード新栄プライム 0603号室の特徴
-
一人暮らしに人気の設備

-
カップルに人気の設備

-
家族に人気の設備

-
夫婦に人気の設備

-
三世代で人気の設備

-
セキュリティ対策重視

-
外で子どもと遊びたい

-
雨の日でも洗濯したい

-
洋室で暮らしたい

-
ガーデニングが好き

契約条件
ペットの飼育もご相談ください。 敷金と礼金が無料なため、初期費用が比較的安くなる傾向にあります。
セキュリティ
この物件の建物には、オートロックや防犯カメラや宅配ボックスが設置されており、来客時には居室内のテレビモニターにて訪問者の顔を確認することができます。
室内設備
女性に嬉しい設備の独立した洗面化粧台があります。 洗濯に便利な設備として、室内洗濯機置場があります。浴室乾燥機も設置されているので、梅雨時の生乾き臭も比較的防ぐことができます。
居室状況
お部屋の床は、フローリングとなっており、エアコンが設置されています。 収納スペースとして、基本的な居室にクローゼットを設置、玄関にはシューズボックスがあります。
建物設備共用部分
居室外の専有スペースとして、洗濯物を干すなどの用途として利用できるバルコニーがあります。 建物の共用スペースに、日々の出入に便利なエレベーターや、いざという時の防犯カメラや、急な外出や不在がちのご家庭の荷物受け取りに便利な宅配ボックスが設置されています。 駐輪場が利用できます。
周辺施設
この物件の学区は、新栄小学校区・白山中学校区です。
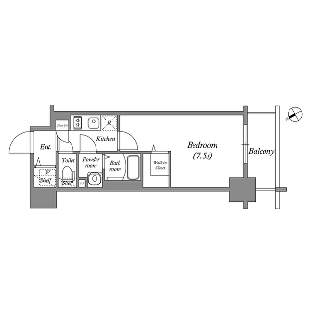
エスリード新栄プライム 0603号室の間取り
間取り:1K
間取詳細:1K(洋7.5)
専有面積:25.35㎡
方位:南西
部屋位置:その他
エスリード新栄プライム 0603号室の設備
バス・トイレ
バス・トイレ別
浴室乾燥機
独立洗面台
玄関
TVモニタ付インターホン
オートロック
宅配ボックス
収納
クローゼット
シューズボックス
バルコニー
バルコニー
ルーフバルコニー
室内設備
エアコン
フローリング
室内洗濯機置場
位置・立地
2階以上
インフラ
CATV
BS
CS
都市ガス
建物設備
エレベーター
防犯カメラ
駐輪場
入居条件
ペット可・相談
ライフステージ
一人暮らしに人気の設備
カップルに人気の設備
家族に人気の設備
夫婦に人気の設備
三世代で人気の設備
こだわり
セキュリティ対策重視
外で子どもと遊びたい
雨の日でも洗濯したい
洋室で暮らしたい
趣味
ガーデニングが好き
エスリード新栄プライム 0603号室の賃貸契約情報
毎月支払う |
家賃5.94万円/月共益費8,000円/月 |
|---|---|
初期費用 |
敷金-礼金-保証金-敷引き償却金- |
更新料 |
- |
鍵交換費用 |
- |
室内清掃費用 |
- |
スマサポコンシェル入会金 |
5,500円 |
カギ代 |
24,200円 |
退去時RC代 |
33,000円 |
駐車場料金 |
- |
損保・ |
借家賠付きの火災保険にご加入いただきます。 |
保証会社 |
加入要 保証会社利用料:株式会社テナントファースト ※大手法人相談可 |
契約期間 |
1年 |
入居可能日 |
2026年03月 |
フリーレント期間 |
- |
取引形態 |
一般媒介 |
備考 |
- |
エスリード新栄プライム 0603号室の建物情報
建物名称 |
エスリード新栄プライム |
|---|---|
最寄駅 |
|
所在地 |
愛知県名古屋市中区新栄 |
階層 |
6階部分(地上13階建) |
構造 |
RC |
築年数 |
2021年3月(築5年) |
駐車場 |
- |
小学校学区 |
新栄小学校 |
中学校学区 |
白山中学校 |
- 学区データについて
- ※学区データは必ずしも正確とは限りません。詳細に関しては最寄店舗または各自治体の教育委員会に必ずご確認ください。
無料この物件に問い合わせ
- エスリード新栄プライム 0603号室

-
5.94万円
(共益費
8,000円)
- 敷
- -
- 礼
- -
- 保
- -
- 償
- -
エスリード新栄プライム 0603号室の物件のお問い合わせ先・取り扱い店舗
ハウスコム 中村公園店
- アクセス
-
名古屋市営地下鉄 東山線「中村公園駅」徒歩1分
- 住所
- 〒453-0811 愛知県名古屋市中村区太閤通9丁目9 横田ビル 1階
- 営業時間
- 10:00~18:00
- 定休日
- なし(年末年始休業12月25日~1月3日)
- 営業エリア
- 中村区 中川区 西区 中区 港区 海部郡 あま市 清須市
- 取引態様
- 賃貸仲介業


















