Access 若松町 102号室(1階/1R)の賃貸物件(賃貸アパート)
神奈川県茅ヶ崎市にあるAccess 若松町 102号室はIHコンロ、TVモニタ付インターホン、エアコン、室内洗濯機置場、即入居可などが特徴です。最寄り駅の東海道本線(JR東日本)茅ケ崎駅から徒歩10分です。Access 若松町 102号室の詳細はハウスコム 茅ヶ崎店までお気軽にお問い合わせください!
情報更新日:
次回更新予定日:
※次回更新予定日について:お店側では順次空室確認を行っていますが、次回更新予定日までに空室確認が行えない場合には、この物件情報は自動的に削除されます。
Access 若松町 102号室の賃貸物件部屋概要
家賃 |
3.5万円
初期費用を |
|---|---|
共益費 |
2,000円
入居可能時期 |
敷金/礼金 |
1ヶ月 / - |
保証金/ |
- / - |
最寄駅 |
|
所在地 |
神奈川県茅ヶ崎市若松町 |
部屋番号 |
102号室 |
間取り |
1R |
専有面積 |
14.29㎡ |
築年数 |
1987年4月(築39年) |
階数 |
1階部分(地上2階建) |
方位・位置 |
ー / その他 |
物件種別 |
賃貸アパート |
構造 |
木造 |
駐車場 |
8,000円 |
小学校学区 |
ー |
中学校学区 |
ー |
他の空き部屋 |
ー |
- 学区データについて
- ※学区データは必ずしも正確とは限りません。詳細に関しては最寄店舗または各自治体の教育委員会に必ずご確認ください。
Access 若松町 102号室の特徴
契約条件
ペットの飼育もご相談ください。 礼金が無料なため、初期費用が比較的安くなる傾向にあります。
セキュリティ
来客時には居室内のテレビモニターにて訪問者の顔を確認することができます。
室内設備
IHコンロが備え付けられています。 洗濯に便利な設備として、室内洗濯機置場があります。
居室状況
居室には、ロフトが設置されており大規模な収納スペースやセパレートされた寝室として活用できます。 エアコンが設置されています。 収納スペースとして、玄関にはシューズボックスがあります。
建物設備共用部分
駐輪場が利用できます。
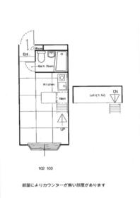
Access 若松町 102号室の間取り
間取り:1R
間取詳細:1R
専有面積:14.29㎡
方位:ー
部屋位置:その他
Access 若松町 102号室の設備
キッチン
IHコンロ
玄関
TVモニタ付インターホン
収納
シューズボックス
室内設備
エアコン
室内洗濯機置場
ロフト付
位置・立地
1階
建物設備
駐輪場
入居条件
ペット可・相談
即入居可
ライフステージ
一人暮らしに人気の設備
カップルに人気の設備
家族に人気の設備
夫婦に人気の設備
三世代で人気の設備
トレンド
ミニマリスト
こだわり
雨の日でも洗濯したい
寝るためだけの部屋
趣味
推し活グッズを飾りたい
Access 若松町 102号室の賃貸契約情報
毎月支払う |
家賃3.5万円/月共益費2,000円/月 |
|---|---|
初期費用 |
敷金1ヶ月 (3.5万円)礼金-保証金-敷引き償却金- |
更新料 |
35,000円 |
鍵交換費用 |
- |
室内清掃費用 |
- |
駐車場料金 |
8,000円 |
損保・ |
借家賠付きの火災保険にご加入いただきます。 |
保証会社 |
加入要 保証会社利用料:50%~ |
契約期間 |
2年 |
入居可能日 |
即入居可 |
フリーレント期間 |
- |
取引形態 |
一般媒介 |
備考 |
- |
Access 若松町 102号室の建物情報
建物名称 |
Access 若松町 |
|---|---|
最寄駅 |
|
所在地 |
神奈川県茅ヶ崎市若松町 |
階層 |
1階部分(地上2階建) |
構造 |
木造 |
築年数 |
1987年4月(築39年) |
駐車場 |
8,000円 |
小学校学区 |
ー |
中学校学区 |
ー |
- 学区データについて
- ※学区データは必ずしも正確とは限りません。詳細に関しては最寄店舗または各自治体の教育委員会に必ずご確認ください。
無料この物件に問い合わせ
- Access 若松町 102号室

-
3.5万円
(共益費
2,000円)
- 敷
- 1ヶ月
- 礼
- -
- 保
- -
- 償
- -
Access 若松町 102号室の物件のお問い合わせ先・取り扱い店舗
ハウスコム 茅ヶ崎店
駅徒歩3分以内
駅徒歩5分以内
土日営業
- アクセス
-
東海道本線(JR東日本)「茅ケ崎駅」徒歩1分
- 住所
- 〒253-0043 神奈川県茅ヶ崎市元町18−1 柴田ビル 1階
- 営業時間
- 10:00~18:00
- 定休日
- 水曜日
- 営業エリア
- 茅ケ崎市、藤沢市、平塚市、寒川町
- 取引態様
- 賃貸仲介業
お問い合わせNo. HC4-5291857-102-0172



















