ミオテゾーロ哲学堂カーザ ***号室(2階/1DK)の賃貸物件(賃貸マンション)
東京都新宿区にあるミオテゾーロ哲学堂カーザ ***号室は独立洗面台、エアコン、デザイナーズ、都市ガス、オンライン相談可などが特徴です。最寄り駅の都営大江戸線落合南長崎駅から徒歩9分です。ミオテゾーロ哲学堂カーザ ***号室の詳細はハウスコム 明大前店までお気軽にお問い合わせください!
情報更新日:
次回更新予定日:
※次回更新予定日について:お店側では順次空室確認を行っていますが、次回更新予定日までに空室確認が行えない場合には、この物件情報は自動的に削除されます。
ミオテゾーロ哲学堂カーザ ***号室の賃貸物件部屋概要
家賃 |
10.75万円
初期費用を |
|---|---|
共益費 |
15,000円
入居可能時期 |
敷金/礼金 |
- / - |
保証金/ |
- / - |
最寄駅 |
|
所在地 |
東京都新宿区西落合 |
部屋番号 |
***号室 |
間取り |
1DK(DK6.4・洋3.5) |
専有面積 |
30.20㎡ |
築年数 |
2024年3月(築2年) |
階数 |
2階部分(地上4階地下1階建) |
方位・位置 |
東 / その他 |
物件種別 |
賃貸マンション |
構造 |
RC |
駐車場 |
- |
小学校学区 |
落合第六小学校 |
中学校学区 |
落合第二中学校 |
他の空き部屋 |
***号室 0201号室 0203号室 0304号室 0401号室 201号室 203号室 304号室 401号室 |
- 学区データについて
- ※学区データは必ずしも正確とは限りません。詳細に関しては最寄店舗または各自治体の教育委員会に必ずご確認ください。
ミオテゾーロ哲学堂カーザ ***号室の特徴
契約条件
ご契約時に保証人は不要です。 敷金と礼金が無料なため、初期費用が比較的安くなる傾向にあります。
セキュリティ
この物件の建物には、オートロックや宅配ボックスが設置されており、来客時には居室内のテレビモニターにて訪問者の顔を確認することができます。
室内設備
システムキッチンには、2つ以上のガスコンロが備え付けられています。 トイレは、温水洗浄便座機能付きになります。 女性に嬉しい設備の独立した洗面化粧台があります。 洗濯に便利な設備として、室内洗濯機置場があります。浴室乾燥機も設置されているので、梅雨時の生乾き臭も比較的防ぐことができます。
居室状況
お部屋の床は、フローリングとなっており、エアコンが設置されています。 インターネットも無料で入居後すぐ生活が始められます。
建物設備共用部分
建物の共用スペースに、急な外出や不在がちのご家庭の荷物受け取りに便利な宅配ボックスが設置されています。
周辺施設
この物件の学区は、落合第六小学校区・落合第二中学校区です。
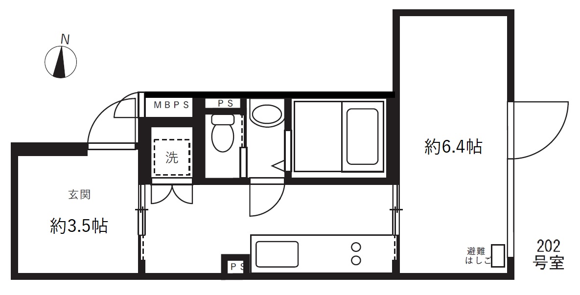
ミオテゾーロ哲学堂カーザ ***号室の間取り
間取り:1DK
間取詳細:1DK(DK6.4・洋3.5)
専有面積:30.20㎡
方位:東
部屋位置:その他
ミオテゾーロ哲学堂カーザ ***号室の設備
キッチン
システムキッチン
ガスコンロ
ガスコンロ二口以上
バス・トイレ
バス・トイレ別
浴室乾燥機
温水洗浄便座
独立洗面台
玄関
TVモニタ付インターホン
オートロック
宅配ボックス
室内設備
エアコン
フローリング
室内洗濯機置場
デザイナーズ
位置・立地
2階以上
インフラ
インターネット可
都市ガス
入居条件
オンライン相談可
オンライン内見可
保証人不要
ライフステージ
一人暮らしに人気の設備
カップルに人気の設備
家族に人気の設備
夫婦に人気の設備
三世代で人気の設備
こだわり
雨の日でも洗濯したい
洋室で暮らしたい
趣味
オークション・通販が好き
お得な条件
インターネット無料
ミオテゾーロ哲学堂カーザ ***号室の賃貸契約情報
毎月支払う |
家賃10.75万円/月共益費15,000円/月 |
|---|---|
初期費用 |
敷金-礼金-保証金-敷引き償却金- |
更新料 |
107,500円 |
鍵交換費用 |
22,000円 |
室内清掃費用 |
- |
プレミアデスク(税込/2年) |
22,000円 |
契約時ルームクリーニング費用(税込) |
49,500円 |
駐車場料金 |
- |
損保・ |
借家賠付きの火災保険にご加入いただきます。 |
保証会社 |
加入要 保証会社:エポスカード 保証会社利用料:月額総賃料の50%/月次保証料、月額総賃料の1.5%/1年毎10,000円 |
契約期間 |
2年 |
入居可能日 |
相談 |
フリーレント期間 |
- |
取引形態 |
一般媒介 |
備考 |
火災保険要加入 短期解約違約金1ケ月 解約予告2カ月 |
ミオテゾーロ哲学堂カーザ ***号室の建物情報
建物名称 |
ミオテゾーロ哲学堂カーザ |
|---|---|
最寄駅 |
|
所在地 |
東京都新宿区西落合 |
階層 |
2階部分(地上4階地下1階建) |
構造 |
RC |
築年数 |
2024年3月(築2年) |
駐車場 |
- |
小学校学区 |
落合第六小学校 |
中学校学区 |
落合第二中学校 |
- 学区データについて
- ※学区データは必ずしも正確とは限りません。詳細に関しては最寄店舗または各自治体の教育委員会に必ずご確認ください。
無料この物件に問い合わせ
- ミオテゾーロ哲学堂カーザ ***号室

-
10.75万円
(共益費
15,000円)
- 敷
- -
- 礼
- -
- 保
- -
- 償
- -
ミオテゾーロ哲学堂カーザ ***号室の物件のお問い合わせ先・取り扱い店舗
ハウスコム 明大前店
- アクセス
-
京王線「明大前駅」中央口徒歩1分
京王井の頭線「明大前駅」中央口徒歩1分
- 住所
- 〒156-0043 東京都世田谷区松原2丁目44−1 グランシーン明大前 1階
- 営業時間
- 10:00~18:00
- 定休日
- なし
- 営業エリア
- 世田谷区・杉並区・渋谷区・中野区・新宿区・三鷹市・調布市
- 取引態様
- 賃貸仲介業





































