ロイヤル オーク A 102号室(1階/1LDK)の賃貸物件(賃貸アパート)
栃木県栃木市にあるロイヤル オーク A 102号室はバス・トイレ別、温水洗浄便座、独立洗面台、TVモニタ付インターホン、オンライン相談可などが特徴です。最寄り駅の東武宇都宮線新栃木駅から徒歩15分です。ロイヤル オーク A 102号室の詳細はハウスコム 小山店までお気軽にお問い合わせください!
情報更新日:
次回更新予定日:
※次回更新予定日について:お店側では順次空室確認を行っていますが、次回更新予定日までに空室確認が行えない場合には、この物件情報は自動的に削除されます。
ロイヤル オーク A 102号室の賃貸物件部屋概要
家賃 |
6.1万円
初期費用を |
|---|---|
共益費 |
4,500円
入居可能時期 |
敷金/礼金 |
- / 71,000円 |
保証金/ |
- / - |
最寄駅 |
|
所在地 |
栃木県栃木市平柳町 |
部屋番号 |
102号室 |
間取り |
1LDK(LDK12.6・洋6.1) |
専有面積 |
45.42㎡ |
築年数 |
2007年10月(築19年) |
階数 |
1階部分(地上2階建) |
方位・位置 |
南 / 角部屋 |
物件種別 |
賃貸アパート |
構造 |
軽量鉄骨 |
駐車場 |
空有 賃料に含む |
小学校学区 |
大宮北小学校 |
中学校学区 |
東陽中学校 |
他の空き部屋 |
ー |
- 学区データについて
- ※学区データは必ずしも正確とは限りません。詳細に関しては最寄店舗または各自治体の教育委員会に必ずご確認ください。
ロイヤル オーク A 102号室の特徴
-
一人暮らしに人気の設備

-
カップルに人気の設備

-
家族に人気の設備

-
夫婦に人気の設備

-
三世代で人気の設備

-
外で子どもと遊びたい

-
雨の日でも洗濯したい

-
洋室で暮らしたい

-
推し活グッズを飾りたい

-
オークション・通販が好き

-
ガーデニングが好き

契約条件
敷金が無料なため、初期費用が比較的安くなる傾向にあります。
セキュリティ
この物件の建物には、宅配ボックスが設置されており、来客時には居室内のテレビモニターにて訪問者の顔を確認することができます。
室内設備
カウンターキッチンには、ガスコンロが備え付けられています。 お風呂とトイレは別です。お風呂には、追い焚き機能が備わっています。 トイレは、温水洗浄便座機能付きになります。 女性に嬉しい設備のシャワーの付いている洗面化粧台があります。 洗濯に便利な設備として、室内洗濯機置場があります。
居室状況
お部屋の床は、フローリングとなっており、エアコンが設置されています。 インターネットも無料で入居後すぐ生活が始められます。 収納スペースとして、玄関にはシューズボックスがあります。
建物設備共用部分
居室外の専有スペースとして、洗濯物を干すなどの用途として利用できるバルコニーがあります。 建物の共用スペースに、急な外出や不在がちのご家庭の荷物受け取りに便利な宅配ボックスが設置されています。 駐車場があり、無料で利用することができます。駐輪場が利用できます。
周辺施設
この物件の学区は、大宮北小学校区・東陽中学校区です。
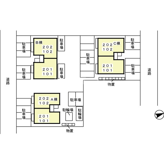
ロイヤル オーク A 102号室の間取り
間取り:1LDK
間取詳細:1LDK(LDK12.6・洋6.1)
専有面積:45.42㎡
方位:南
部屋位置:角部屋
ロイヤル オーク A 102号室の設備
キッチン
カウンターキッチン
ガスコンロ
バス・トイレ
バス・トイレ別
追い焚き
温水洗浄便座
独立洗面台
シャワー付洗面化粧台
玄関
TVモニタ付インターホン
宅配ボックス
収納
シューズボックス
バルコニー
バルコニー
ルーフバルコニー
室内設備
エアコン
フローリング
室内洗濯機置場
位置・立地
1階
角部屋
南向き
インフラ
プロパンガス
建物設備
駐輪場
入居条件
オンライン相談可
オンライン内見可
ライフステージ
一人暮らしに人気の設備
カップルに人気の設備
家族に人気の設備
夫婦に人気の設備
三世代で人気の設備
こだわり
外で子どもと遊びたい
雨の日でも洗濯したい
洋室で暮らしたい
趣味
推し活グッズを飾りたい
オークション・通販が好き
ガーデニングが好き
お得な条件
インターネット無料
駐車場無料
ロイヤル オーク A 102号室の賃貸契約情報
毎月支払う |
家賃6.1万円/月共益費4,500円/月 |
|---|---|
初期費用 |
敷金-礼金71,000円保証金-敷引き償却金- |
更新料 |
61,000円 |
鍵交換費用 |
- |
室内清掃費用 |
60,500円 |
その他費用月額 |
520円 |
駐車場料金 |
空有 賃料に含む |
損保・ |
借家賠付きの火災保険にご加入いただきます。 |
保証会社 |
加入要 保証会社利用料:アイ・シンクレント 機関保証加入必須。初回保証料35000円、月額保証料賃料等総額の1%+800円/月(その他商品あり) |
契約期間 |
- |
入居可能日 |
即入居可 |
フリーレント期間 |
- |
取引形態 |
一般媒介 |
備考 |
- |
ロイヤル オーク A 102号室の建物情報
建物名称 |
ロイヤル オーク A |
|---|---|
最寄駅 |
|
所在地 |
栃木県栃木市平柳町 |
階層 |
1階部分(地上2階建) |
構造 |
軽量鉄骨 |
築年数 |
2007年10月(築19年) |
駐車場 |
空有 賃料に含む |
小学校学区 |
大宮北小学校 |
中学校学区 |
東陽中学校 |
- 学区データについて
- ※学区データは必ずしも正確とは限りません。詳細に関しては最寄店舗または各自治体の教育委員会に必ずご確認ください。
無料この物件に問い合わせ
- ロイヤル オーク A 102号室

-
6.1万円
(共益費
4,500円)
- 敷
- -
- 礼
- 71,000円
- 保
- -
- 償
- -
ロイヤル オーク A 102号室の物件のお問い合わせ先・取り扱い店舗
ハウスコム 小山店
- アクセス
-
東北本線「小山駅」徒歩3分
- 住所
- 〒323-0023 栃木県小山市中央町3丁目5−4 さかなやビル 1階
- 営業時間
- 10:00~18:00
- 定休日
- 水曜日
- 営業エリア
- 栃木県南(小山市、栃木市、佐野市、下野市、野木町、壬生町、上三川町、足利市)、茨城県(古河市、結城市、筑西市、下妻市)
- 取引態様
- 賃貸仲介業

























