LIVIAZ SHIN-OSAKA Ciel 701号室(7階/1K)の賃貸物件(賃貸マンション)
大阪府大阪市淀川区にあるLIVIAZ SHIN-OSAKA Ciel 701号室はガスコンロ二口以上、浴室乾燥機、独立洗面台、宅配ボックス、室内洗濯機置場などが特徴です。最寄り駅の大阪メトロ 御堂筋線新大阪駅から徒歩10分です。LIVIAZ SHIN-OSAKA Ciel 701号室の詳細はミニミニ FC江坂店までお気軽にお問い合わせください!
情報更新日:
次回更新予定日:
※次回更新予定日について:お店側では順次空室確認を行っていますが、次回更新予定日までに空室確認が行えない場合には、この物件情報は自動的に削除されます。
LIVIAZ SHIN-OSAKA Ciel 701号室の賃貸物件部屋概要
家賃 |
7.3万円
初期費用を |
|---|---|
共益費 |
10,000円
入居可能時期 |
敷金/礼金 |
- / - |
保証金/ |
- / - |
最寄駅 |
|
所在地 |
大阪府大阪市淀川区木川東 |
部屋番号 |
701号室 |
間取り |
1K |
専有面積 |
24.45㎡ |
築年数 |
2024年10月(築2年) |
階数 |
7階部分(地上11階建) |
方位・位置 |
北 / 角部屋 |
物件種別 |
賃貸マンション |
構造 |
RC |
駐車場 |
空無し |
小学校学区 |
木川小学校 |
中学校学区 |
十三中学校 |
他の空き部屋 |
***号室 ***号室 |
- 学区データについて
- ※学区データは必ずしも正確とは限りません。詳細に関しては最寄店舗または各自治体の教育委員会に必ずご確認ください。
LIVIAZ SHIN-OSAKA Ciel 701号室の特徴
契約条件
敷金と礼金が無料なため、初期費用が比較的安くなる傾向にあります。
セキュリティ
この物件の建物には、オートロックや防犯カメラや宅配ボックスが設置されております。
室内設備
2つ以上のガスコンロが備え付けられています。 女性に嬉しい設備の独立した洗面化粧台があります。 洗濯に便利な設備として、室内洗濯機置場があります。浴室乾燥機も設置されているので、梅雨時の生乾き臭も比較的防ぐことができます。
居室状況
エアコンが設置されています。 収納スペースとして、玄関にはシューズボックスがあります。
建物設備共用部分
居室外の専有スペースとして、洗濯物を干すなどの用途として利用できるバルコニーがあります。 建物の共用スペースに、日々の出入に便利なエレベーターや、いざという時の防犯カメラや、急な外出や不在がちのご家庭の荷物受け取りに便利な宅配ボックスが設置されています。 駐輪場が利用できます。
周辺施設
この物件の学区は、木川小学校区・十三中学校区です。
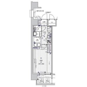
LIVIAZ SHIN-OSAKA Ciel 701号室の間取り
間取り:1K
間取詳細:1K
専有面積:24.45㎡
方位:北
部屋位置:角部屋
LIVIAZ SHIN-OSAKA Ciel 701号室の設備
キッチン
ガスコンロ
ガスコンロ二口以上
バス・トイレ
バス・トイレ別
浴室乾燥機
独立洗面台
玄関
オートロック
宅配ボックス
収納
シューズボックス
バルコニー
バルコニー
ルーフバルコニー
室内設備
エアコン
室内洗濯機置場
位置・立地
2階以上
角部屋
インフラ
インターネット可
CATV
建物設備
エレベーター
防犯カメラ
駐輪場
入居条件
即入居可
ライフステージ
一人暮らしに人気の設備
カップルに人気の設備
家族に人気の設備
夫婦に人気の設備
三世代で人気の設備
こだわり
外で子どもと遊びたい
雨の日でも洗濯したい
趣味
ガーデニングが好き
LIVIAZ SHIN-OSAKA Ciel 701号室の賃貸契約情報
毎月支払う |
家賃7.3万円/月共益費10,000円/月 |
|---|---|
初期費用 |
敷金-礼金-保証金-敷引き償却金- |
更新料 |
73,000円 |
鍵交換費用 |
44,000円 |
室内清掃費用 |
- |
24時間安心サポート |
16,500円 |
ルームクリーニング費用 |
55,000円 |
エアコンクリーニング費用 |
16,500円 |
駐車場料金 |
空無し |
損保・ |
借家賠付きの火災保険にご加入いただきます。 |
保証会社 |
加入要 保証会社:エポスカード 保証会社利用料:初回保証料50% 月額保証料1% |
契約期間 |
- |
入居可能日 |
即入居可 |
フリーレント期間 |
- |
取引形態 |
一般媒介 |
備考 |
- |
LIVIAZ SHIN-OSAKA Ciel 701号室の建物情報
建物名称 |
LIVIAZ SHIN-OSAKA Ciel |
|---|---|
最寄駅 |
|
所在地 |
大阪府大阪市淀川区木川東 |
階層 |
7階部分(地上11階建) |
構造 |
RC |
築年数 |
2024年10月(築2年) |
駐車場 |
空無し |
小学校学区 |
木川小学校 |
中学校学区 |
十三中学校 |
- 学区データについて
- ※学区データは必ずしも正確とは限りません。詳細に関しては最寄店舗または各自治体の教育委員会に必ずご確認ください。
無料この物件に問い合わせ
- LIVIAZ SHIN-OSAKA Ciel 701号室

-
7.3万円
(共益費
10,000円)
- 敷
- -
- 礼
- -
- 保
- -
- 償
- -
LIVIAZ SHIN-OSAKA Ciel 701号室の物件のお問い合わせ先・取り扱い店舗
ミニミニ FC江坂店
- アクセス
-
大阪メトロ 御堂筋線「江坂駅」徒歩1分
- 住所
- 〒564-0063 大阪府吹田市江坂町1-23-34 第二梓ビル2F
- 営業時間
- 10:00~18:00
- 定休日
- なし
- 営業エリア
- 大阪府下全域
- 取引態様
- 賃貸仲介業









