エルファーロ中野富士見町 0101号室(1階/1DK)の賃貸物件(賃貸マンション)
東京都杉並区にあるエルファーロ中野富士見町 0101号室はガスコンロ二口以上、温水洗浄便座、TVモニタ付インターホン、都市ガス、駐輪場などが特徴です。最寄り駅の東京メトロ 丸ノ内線方南町支線中野富士見町駅から徒歩8分です。エルファーロ中野富士見町 0101号室の詳細はハウスコム 中野店までお気軽にお問い合わせください!
情報更新日:
次回更新予定日:
※次回更新予定日について:お店側では順次空室確認を行っていますが、次回更新予定日までに空室確認が行えない場合には、この物件情報は自動的に削除されます。
エルファーロ中野富士見町 0101号室の賃貸物件部屋概要
家賃 |
11.8万円
初期費用を |
|---|---|
共益費 |
12,000円
入居可能時期 |
敷金/礼金 |
- / 1ヶ月 |
保証金/ |
- / - |
最寄駅 |
|
所在地 |
東京都杉並区和田 |
部屋番号 |
0101号室 |
間取り |
1DK(洋4.4・DK5.3) |
専有面積 |
28.49㎡ |
築年数 |
2023年9月(築3年) |
階数 |
1階部分(地上5階建) |
方位・位置 |
南東 / その他 |
物件種別 |
賃貸マンション |
構造 |
RC |
駐車場 |
無 |
小学校学区 |
和田小学校 |
中学校学区 |
和田中学校 |
他の空き部屋 |
101号室 |
- 学区データについて
- ※学区データは必ずしも正確とは限りません。詳細に関しては最寄店舗または各自治体の教育委員会に必ずご確認ください。
エルファーロ中野富士見町 0101号室の特徴
契約条件
ペットの飼育もご相談ください。 また、ご契約時に保証人は不要です。 敷金が無料なため、初期費用が比較的安くなる傾向にあります。
セキュリティ
この物件の建物には、オートロックや宅配ボックスが設置されており、来客時には居室内のテレビモニターにて訪問者の顔を確認することができます。
室内設備
システムキッチンには、2つ以上のガスコンロが備え付けられています。 トイレは、温水洗浄便座機能付きになります。 女性に嬉しい設備の独立した洗面化粧台があります。 洗濯に便利な設備として、室内洗濯機置場があります。浴室乾燥機も設置されているので、梅雨時の生乾き臭も比較的防ぐことができます。
居室状況
お部屋の床は、フローリングとなっており、エアコンが設置されています。 収納スペースとして、基本的な居室にクローゼットを設置、玄関にはシューズボックスがあります。
建物設備共用部分
建物の共用スペースに、急な外出や不在がちのご家庭の荷物受け取りに便利な宅配ボックスが設置されています。 駐輪場、バイク置き場が利用できます。
周辺施設
この物件の学区は、和田小学校区・和田中学校区です。
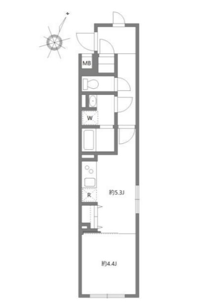
エルファーロ中野富士見町 0101号室の間取り
間取り:1DK
間取詳細:1DK(洋4.4・DK5.3)
専有面積:28.49㎡
方位:南東
部屋位置:その他
エルファーロ中野富士見町 0101号室の設備
キッチン
システムキッチン
ガスコンロ
ガスコンロ二口以上
バス・トイレ
バス・トイレ別
浴室乾燥機
温水洗浄便座
独立洗面台
玄関
TVモニタ付インターホン
オートロック
宅配ボックス
収納
クローゼット
シューズボックス
室内設備
エアコン
フローリング
室内洗濯機置場
位置・立地
1階
インフラ
インターネット可
都市ガス
建物設備
駐輪場
バイク置き場
入居条件
ペット可・相談
保証人不要
ライフステージ
一人暮らしに人気の設備
カップルに人気の設備
家族に人気の設備
夫婦に人気の設備
三世代で人気の設備
こだわり
雨の日でも洗濯したい
洋室で暮らしたい
エルファーロ中野富士見町 0101号室の賃貸契約情報
毎月支払う |
家賃11.8万円/月共益費12,000円/月 |
|---|---|
初期費用 |
敷金-礼金1ヶ月 (11.8万円)保証金-敷引き償却金- |
更新料 |
118,000円 |
鍵交換費用 |
38,500円 |
室内清掃費用 |
82,500円 |
プレミアデスク2年(税込) |
22,000円 |
契約時ルームクリーニング費用(税込) |
82,500円 |
駐車場料金 |
無 |
損保・ |
借家賠付きの火災保険にご加入いただきます。 |
保証会社 |
加入要 保証会社:エポスカード 保証会社利用料:エポス ルームIDからの審査 初回保証料:総賃料の50% 月額保証料:総賃料の1.5% 10,000円/年 エポスグローバルプラン利用時 初回保証料:総賃料の100% 月額保証料:総賃料の2% |
契約期間 |
2年 |
入居可能日 |
相談 |
フリーレント期間 |
- |
取引形態 |
一般媒介 |
備考 |
短期解約違約金:1年未満1カ月 解約予告:2カ月前 プレミアデスク代の中に登録料6600円含む 大手法人契約時:礼金1カ月増額で諸条件ご相談可 ペット飼育時:敷金1ヶ月増額(解約時償却) 小型犬or猫1匹迄体長50㎝未満・体重10㎏未満に収まる種類 インターネット無料:ファイバーゲート 留学生相談:4年制大学生のみ |
エルファーロ中野富士見町 0101号室の建物情報
建物名称 |
エルファーロ中野富士見町 |
|---|---|
最寄駅 |
|
所在地 |
東京都杉並区和田 |
階層 |
1階部分(地上5階建) |
構造 |
RC |
築年数 |
2023年9月(築3年) |
駐車場 |
無 |
小学校学区 |
和田小学校 |
中学校学区 |
和田中学校 |
- 学区データについて
- ※学区データは必ずしも正確とは限りません。詳細に関しては最寄店舗または各自治体の教育委員会に必ずご確認ください。
無料この物件に問い合わせ
- エルファーロ中野富士見町 0101号室

-
11.8万円
(共益費
12,000円)
- 敷
- -
- 礼
- 1ヶ月
- 保
- -
- 償
- -
エルファーロ中野富士見町 0101号室の物件のお問い合わせ先・取り扱い店舗
ハウスコム 中野店
- アクセス
-
中央本線(JR東日本)「中野駅」徒歩1分
東京メトロ 東西線「中野駅」徒歩1分
- 住所
- 〒164-0001 東京都中野区中野2-24-9 ナカノサウステラ レジデンス棟1階
- 営業時間
- 10:00~18:00
- 定休日
- なし
- 営業エリア
- 【中野区・杉並区・新宿区・練馬区・渋谷区・世田谷区・豊島区】
- 取引態様
- 賃貸仲介業


































