AGRATIO TERRACE 恵比寿 108号室(1階/2LDK)の賃貸物件(賃貸マンション)
東京都目黒区にあるAGRATIO TERRACE 恵比寿 108号室はシステムキッチン、独立洗面台、フローリング、室内洗濯機置場、CSなどが特徴です。最寄り駅の山手線恵比寿駅から徒歩12分です。AGRATIO TERRACE 恵比寿 108号室の詳細はハウスコム 五反田店までお気軽にお問い合わせください!
情報更新日:
次回更新予定日:
※次回更新予定日について:お店側では順次空室確認を行っていますが、次回更新予定日までに空室確認が行えない場合には、この物件情報は自動的に削除されます。
AGRATIO TERRACE 恵比寿 108号室の賃貸物件部屋概要
家賃 |
28.7万円
初期費用を |
|---|---|
共益費 |
15,000円
入居可能時期 |
敷金/礼金 |
1ヶ月 / - |
保証金/ |
- / - |
最寄駅 |
|
所在地 |
東京都目黒区三田 |
部屋番号 |
108号室 |
間取り |
2LDK |
専有面積 |
52.48㎡ |
築年数 |
2023年10月(築3年) |
階数 |
1階部分(地上4階地下1階建) |
方位・位置 |
北 / その他 |
物件種別 |
賃貸マンション |
構造 |
RC |
駐車場 |
無 |
小学校学区 |
田道小学校 |
中学校学区 |
大鳥中学校 |
他の空き部屋 |
103号室 211号室 213号室 |
- 学区データについて
- ※学区データは必ずしも正確とは限りません。詳細に関しては最寄店舗または各自治体の教育委員会に必ずご確認ください。
AGRATIO TERRACE 恵比寿 108号室の特徴
-
一人暮らしに人気の設備

-
カップルに人気の設備

-
家族に人気の設備

-
夫婦に人気の設備

-
三世代で人気の設備

-
外で子どもと遊びたい

-
雨の日でも洗濯したい

-
洋室で暮らしたい

-
緑のある環境が好き

-
ガーデニングが好き

-
家庭菜園が好き

契約条件
ペットの飼育もご相談ください。 礼金が無料なため、初期費用が比較的安くなる傾向にあります。
セキュリティ
この物件の建物には、オートロックや宅配ボックスが設置されております。
室内設備
システムキッチンには、キッチン設備として食洗機が備え付けられています。 お風呂とトイレは別です。お風呂には、追い焚き機能が備わっています。 女性に嬉しい設備の独立した洗面化粧台があります。 洗濯に便利な設備として、室内洗濯機置場があります。浴室乾燥機も設置されているので、梅雨時の生乾き臭も比較的防ぐことができます。
居室状況
お部屋の床は、フローリングとなっており、エアコンが設置されています。
建物設備共用部分
居室外の専有スペースとして、入居者専用の庭があり、家庭菜園や簡単なお庭遊びが楽しめます。 建物の共用スペースに、急な外出や不在がちのご家庭の荷物受け取りに便利な宅配ボックスが設置されています。
周辺施設
この物件の学区は、田道小学校区・大鳥中学校区です。
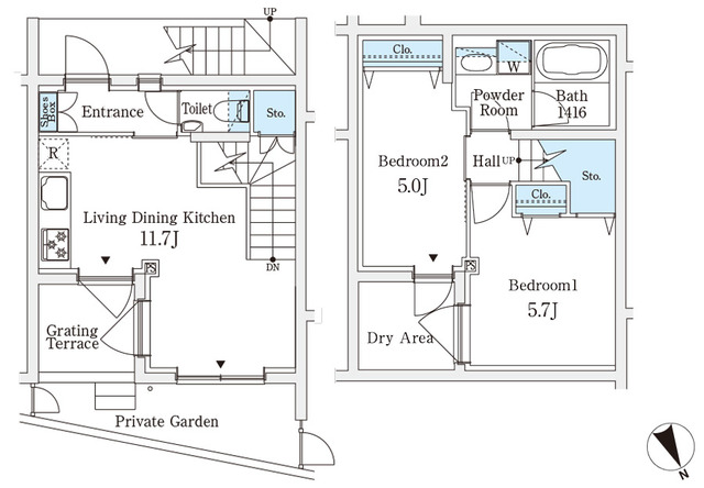
AGRATIO TERRACE 恵比寿 108号室の間取り
間取り:2LDK
間取詳細:2LDK
専有面積:52.48㎡
方位:北
部屋位置:その他
AGRATIO TERRACE 恵比寿 108号室の設備
キッチン
システムキッチン
食洗機
バス・トイレ
バス・トイレ別
追い焚き
浴室乾燥機
独立洗面台
玄関
オートロック
宅配ボックス
バルコニー
専用庭付
室内設備
エアコン
フローリング
室内洗濯機置場
位置・立地
1階
インフラ
BS
CS
入居条件
ペット可・相談
ライフステージ
一人暮らしに人気の設備
カップルに人気の設備
家族に人気の設備
夫婦に人気の設備
三世代で人気の設備
こだわり
外で子どもと遊びたい
雨の日でも洗濯したい
洋室で暮らしたい
趣味
緑のある環境が好き
ガーデニングが好き
家庭菜園が好き
AGRATIO TERRACE 恵比寿 108号室の賃貸契約情報
毎月支払う |
家賃28.7万円/月共益費15,000円/月 |
|---|---|
初期費用 |
敷金1ヶ月 (28.7万円)礼金-保証金-敷引き償却金- |
更新料 |
287,000円 |
鍵交換費用 |
- |
室内清掃費用 |
- |
室内清掃費 |
80,819円 |
鍵交換費 |
22,000円 |
駐車場料金 |
無 |
損保・ |
借家賠付きの火災保険にご加入いただきます。 |
保証会社 |
加入要 保証会社利用料:保証会社名:クレディセゾン・レジデントアシスタンス株式会社/初回保証委託料(最低15000円):月額賃料等の50%、 2年目以降:10000円/年 |
契約期間 |
2年 |
入居可能日 |
2026年04月 |
フリーレント期間 |
- |
取引形態 |
一般媒介 |
備考 |
- |
AGRATIO TERRACE 恵比寿 108号室の建物情報
建物名称 |
AGRATIO TERRACE 恵比寿 |
|---|---|
最寄駅 |
|
所在地 |
東京都目黒区三田 |
階層 |
1階部分(地上4階地下1階建) |
構造 |
RC |
築年数 |
2023年10月(築3年) |
駐車場 |
無 |
小学校学区 |
田道小学校 |
中学校学区 |
大鳥中学校 |
- 学区データについて
- ※学区データは必ずしも正確とは限りません。詳細に関しては最寄店舗または各自治体の教育委員会に必ずご確認ください。
無料この物件に問い合わせ
- AGRATIO TERRACE 恵比寿 108号室

-
28.7万円
(共益費
15,000円)
- 敷
- 1ヶ月
- 礼
- -
- 保
- -
- 償
- -
AGRATIO TERRACE 恵比寿 108号室の物件のお問い合わせ先・取り扱い店舗
ハウスコム 五反田店
- アクセス
-
山手線「五反田駅」東口徒歩1分
都営浅草線「五反田駅」A6出口より徒歩1分
- 住所
- 〒141-0022 東京都品川区東五反田1丁目12−12 落合ビル 2F
- 営業時間
- 10:00~18:00
- 定休日
- なし(年末年始は休業)
- 営業エリア
- 品川区,大田区,港区,目黒区
- 取引態様
- 賃貸仲介業



















