メルディア野田B 103号室(1階/1K)の賃貸物件(賃貸アパート)
千葉県野田市にあるメルディア野田B 103号室はシステムキッチン、追い焚き、浴室乾燥機、宅配ボックス、プロパンガスなどが特徴です。最寄り駅の東武アーバンパークライン・野田線野田市駅から徒歩8分です。メルディア野田B 103号室の詳細はハウスコム 越谷店までお気軽にお問い合わせください!
情報更新日:
次回更新予定日:
※次回更新予定日について:お店側では順次空室確認を行っていますが、次回更新予定日までに空室確認が行えない場合には、この物件情報は自動的に削除されます。
メルディア野田B 103号室の賃貸物件部屋概要
家賃 |
4.4万円
初期費用を |
|---|---|
共益費 |
4,000円
入居可能時期 |
敷金/礼金 |
- / - |
保証金/ |
- / - |
最寄駅 |
|
所在地 |
千葉県野田市上花輪 |
部屋番号 |
103号室 |
間取り |
1K |
専有面積 |
25.16㎡ |
築年数 |
2021年12月(築5年) |
階数 |
1階部分(地上2階建) |
方位・位置 |
ー / その他 |
物件種別 |
賃貸アパート |
構造 |
木造 |
駐車場 |
- |
小学校学区 |
中央小学校 |
中学校学区 |
第二中学校 |
他の空き部屋 |
ー |
- 学区データについて
- ※学区データは必ずしも正確とは限りません。詳細に関しては最寄店舗または各自治体の教育委員会に必ずご確認ください。
メルディア野田B 103号室の特徴
契約条件
敷金と礼金が無料なため、初期費用が比較的安くなる傾向にあります。
セキュリティ
この物件の建物には、宅配ボックスが設置されており、来客時には居室内のテレビモニターにて訪問者の顔を確認することができます。
室内設備
システムキッチンには、IHコンロが備え付けられています。 お風呂とトイレは別です。お風呂には、追い焚き機能が備わっています。 トイレは、温水洗浄便座機能付きになります。 女性に嬉しい設備の独立した洗面化粧台があります。 洗濯に便利な設備として、浴室乾燥機も設置されているので、梅雨時の生乾き臭も比較的防ぐことができます。
居室状況
お部屋の床は、フローリングとなっており、エアコンが設置されています。 収納スペースとして、玄関にはシューズボックスがあります。
建物設備共用部分
建物の共用スペースに、急な外出や不在がちのご家庭の荷物受け取りに便利な宅配ボックスが設置されています。
周辺施設
この物件の学区は、中央小学校区・第二中学校区です。
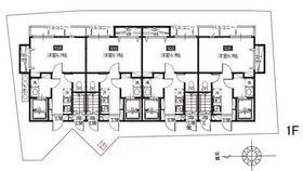
メルディア野田B 103号室の間取り
間取り:1K
間取詳細:1K
専有面積:25.16㎡
方位:ー
部屋位置:その他
メルディア野田B 103号室の設備
キッチン
システムキッチン
IHコンロ
バス・トイレ
バス・トイレ別
追い焚き
浴室乾燥機
温水洗浄便座
独立洗面台
玄関
TVモニタ付インターホン
宅配ボックス
収納
シューズボックス
室内設備
エアコン
フローリング
位置・立地
1階
インフラ
プロパンガス
ライフステージ
一人暮らしに人気の設備
カップルに人気の設備
家族に人気の設備
夫婦に人気の設備
三世代で人気の設備
こだわり
雨の日でも洗濯したい
洋室で暮らしたい
寝るためだけの部屋
メルディア野田B 103号室の賃貸契約情報
毎月支払う |
家賃4.4万円/月共益費4,000円/月 |
|---|---|
初期費用 |
敷金-礼金-保証金-敷引き償却金- |
更新料 |
44,000円 |
鍵交換費用 |
27,500円 |
室内清掃費用 |
- |
24時間サポートシステム |
27,500円 |
ハウスクリーニング |
44,000円 |
駐車場料金 |
- |
損保・ |
借家賠付きの火災保険にご加入いただきます。 |
保証会社 |
加入要 保証会社利用料:①初回:総額賃料の50%~・年間:15,000円 ・月間:880円(振替手数料込み) ②初回:総額賃料の50%~・年間:なし ・月間:1,980円(振替手数料込み) |
契約期間 |
2年 |
入居可能日 |
2026年03月中旬 |
フリーレント期間 |
- |
取引形態 |
一般媒介 |
備考 |
- |
メルディア野田B 103号室の建物情報
建物名称 |
メルディア野田B |
|---|---|
最寄駅 |
|
所在地 |
千葉県野田市上花輪 |
階層 |
1階部分(地上2階建) |
構造 |
木造 |
築年数 |
2021年12月(築5年) |
駐車場 |
- |
小学校学区 |
中央小学校 |
中学校学区 |
第二中学校 |
- 学区データについて
- ※学区データは必ずしも正確とは限りません。詳細に関しては最寄店舗または各自治体の教育委員会に必ずご確認ください。
無料この物件に問い合わせ
- メルディア野田B 103号室

-
4.4万円
(共益費
4,000円)
- 敷
- -
- 礼
- -
- 保
- -
- 償
- -
メルディア野田B 103号室の物件のお問い合わせ先・取り扱い店舗
ハウスコム 越谷店
- アクセス
-
東武スカイツリーライン・伊勢崎線・大師線「新越谷駅」東口徒歩1分
武蔵野線「南越谷駅」南口徒歩1分
- 住所
- 〒343-0845 埼玉県越谷市南越谷1丁目11−8 第一金子ビル 2F
- 営業時間
- 10:00~18:00
- 定休日
- なし
- 営業エリア
- 越谷市,吉川市,三郷市,草加市,春日部,松伏,東武沿線北部
- 取引態様
- 賃貸仲介業












