プレール・ドゥーク豊島園 404号室(4階/1K)の賃貸物件(賃貸マンション)
東京都練馬区にあるプレール・ドゥーク豊島園 404号室はシステムキッチン、バス・トイレ別、温水洗浄便座、エアコン、BSなどが特徴です。最寄り駅の西武池袋線・豊島線練馬駅から徒歩6分です。プレール・ドゥーク豊島園 404号室の詳細はハウスコム ひばりヶ丘店までお気軽にお問い合わせください!
情報更新日:
次回更新予定日:
※次回更新予定日について:お店側では順次空室確認を行っていますが、次回更新予定日までに空室確認が行えない場合には、この物件情報は自動的に削除されます。
プレール・ドゥーク豊島園 404号室の賃貸物件部屋概要
家賃 |
7.7万円
初期費用を |
|---|---|
共益費 |
8,000円
入居可能時期 |
敷金/礼金 |
- / 77,000円 |
保証金/ |
- / - |
最寄駅 |
|
所在地 |
東京都練馬区練馬 |
部屋番号 |
404号室 |
間取り |
1K(洋5・K0) |
専有面積 |
20.63㎡ |
築年数 |
2008年4月(築18年) |
階数 |
4階部分(地上9階建) |
方位・位置 |
南 / 角部屋 |
物件種別 |
賃貸マンション |
構造 |
RC |
駐車場 |
無 |
小学校学区 |
南町小学校 |
中学校学区 |
開進第二中学校 |
他の空き部屋 |
ー |
- 学区データについて
- ※学区データは必ずしも正確とは限りません。詳細に関しては最寄店舗または各自治体の教育委員会に必ずご確認ください。
プレール・ドゥーク豊島園 404号室の特徴
-
一人暮らしに人気の設備

-
カップルに人気の設備

-
家族に人気の設備

-
夫婦に人気の設備

-
三世代で人気の設備

-
セキュリティ対策重視

-
外で子どもと遊びたい

-
雨の日でも洗濯したい

-
洋室で暮らしたい

-
ガーデニングが好き

契約条件
敷金が無料なため、初期費用が比較的安くなる傾向にあります。
セキュリティ
この物件の建物には、オートロックや防犯カメラが設置されており、来客時には居室内のテレビモニターにて訪問者の顔を確認することができます。
室内設備
システムキッチンが備え付けられています。 トイレは、温水洗浄便座機能付きになります。 洗濯に便利な設備として、室内洗濯機置場があります。浴室乾燥機も設置されているので、梅雨時の生乾き臭も比較的防ぐことができます。
居室状況
お部屋の床は、フローリングとなっており、エアコンが設置されています。
建物設備共用部分
居室外の専有スペースとして、洗濯物を干すなどの用途として利用できるバルコニーがあります。 建物の共用スペースに、いざという時の防犯カメラが設置されています。
周辺施設
この物件の学区は、南町小学校区・開進第二中学校区です。
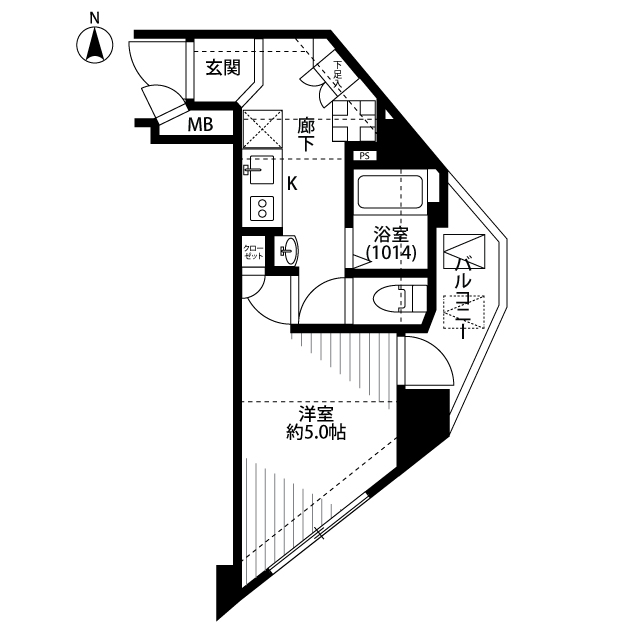
プレール・ドゥーク豊島園 404号室の間取り
間取り:1K
間取詳細:1K(洋5・K0)
専有面積:20.63㎡
方位:南
部屋位置:角部屋
プレール・ドゥーク豊島園 404号室の設備
キッチン
システムキッチン
バス・トイレ
バス・トイレ別
浴室乾燥機
温水洗浄便座
玄関
TVモニタ付インターホン
オートロック
バルコニー
バルコニー
ルーフバルコニー
室内設備
エアコン
フローリング
室内洗濯機置場
位置・立地
2階以上
角部屋
南向き
インフラ
インターネット可
CATV
BS
CS
建物設備
防犯カメラ
ライフステージ
一人暮らしに人気の設備
カップルに人気の設備
家族に人気の設備
夫婦に人気の設備
三世代で人気の設備
こだわり
セキュリティ対策重視
外で子どもと遊びたい
雨の日でも洗濯したい
洋室で暮らしたい
趣味
ガーデニングが好き
プレール・ドゥーク豊島園 404号室の賃貸契約情報
毎月支払う |
家賃7.7万円/月共益費8,000円/月 |
|---|---|
初期費用 |
敷金-礼金77,000円保証金-敷引き償却金- |
更新料 |
- |
鍵交換費用 |
- |
室内清掃費用 |
- |
駐車場料金 |
無 |
損保・ |
借家賠付きの火災保険にご加入いただきます。 |
保証会社 |
加入要 保証会社利用料:株式会社木下グループ 初回保証料月額総費用の80%、利用手数料550円、継続保証料20,000円(2 |
契約期間 |
- |
入居可能日 |
2026年03月下旬 |
フリーレント期間 |
- |
取引形態 |
一般媒介 |
備考 |
- |
プレール・ドゥーク豊島園 404号室の建物情報
建物名称 |
プレール・ドゥーク豊島園 |
|---|---|
最寄駅 |
|
所在地 |
東京都練馬区練馬 |
階層 |
4階部分(地上9階建) |
構造 |
RC |
築年数 |
2008年4月(築18年) |
駐車場 |
無 |
小学校学区 |
南町小学校 |
中学校学区 |
開進第二中学校 |
- 学区データについて
- ※学区データは必ずしも正確とは限りません。詳細に関しては最寄店舗または各自治体の教育委員会に必ずご確認ください。
無料この物件に問い合わせ
- プレール・ドゥーク豊島園 404号室

-
7.7万円
(共益費
8,000円)
- 敷
- -
- 礼
- 77,000円
- 保
- -
- 償
- -
プレール・ドゥーク豊島園 404号室の物件のお問い合わせ先・取り扱い店舗
ハウスコム ひばりヶ丘店
- アクセス
-
西武池袋線・豊島線「ひばりヶ丘駅」徒歩2分
- 住所
- 〒188-0001 東京都西東京市谷戸町3-27-9 JCビルⅡ1階
- 営業時間
- 10:00~18:00
- 定休日
- 水曜日(2025年12月25日~2026年1月3日)
- 営業エリア
- 西東京市・東久留米市・清瀬市・小平市・東村山市・小金井市・武蔵野市・練馬区・中野区・新座市・所沢市・朝霞市・和光市
- 取引態様
- 賃貸仲介業





















