ARTESSIMO GREAS 409号室(4階/1K)の賃貸物件(賃貸マンション)
神奈川県川崎市幸区にあるARTESSIMO GREAS 409号室はルーフバルコニー、エアコン、防犯カメラ、24時間ゴミ出しOK、ペット可・相談などが特徴です。最寄り駅の南武線尻手駅から徒歩8分です。ARTESSIMO GREAS 409号室の詳細はハウスコム 蒲田店までお気軽にお問い合わせください!
情報更新日:
次回更新予定日:
※次回更新予定日について:お店側では順次空室確認を行っていますが、次回更新予定日までに空室確認が行えない場合には、この物件情報は自動的に削除されます。
ARTESSIMO GREAS 409号室の賃貸物件部屋概要
家賃 |
7.8万円
初期費用を |
|---|---|
共益費 |
12,000円
入居可能時期 |
敷金/礼金 |
- / 2ヶ月 |
保証金/ |
- / - |
最寄駅 |
|
所在地 |
神奈川県川崎市幸区南幸町 |
部屋番号 |
409号室 |
間取り |
1K |
専有面積 |
22.08㎡ |
築年数 |
2016年12月(築10年) |
階数 |
4階部分(地上9階建) |
方位・位置 |
ー / その他 |
物件種別 |
賃貸マンション |
構造 |
RC |
駐車場 |
無 |
小学校学区 |
南河原小学校 |
中学校学区 |
南河原中学校 |
他の空き部屋 |
ー |
- 学区データについて
- ※学区データは必ずしも正確とは限りません。詳細に関しては最寄店舗または各自治体の教育委員会に必ずご確認ください。
ARTESSIMO GREAS 409号室の特徴
-
一人暮らしに人気の設備

-
カップルに人気の設備

-
家族に人気の設備

-
夫婦に人気の設備

-
三世代で人気の設備

-
セキュリティ対策重視

-
タイパ重視

-
外で子どもと遊びたい

-
雨の日でも洗濯したい

-
洋室で暮らしたい

-
ガーデニングが好き

契約条件
この物件は、2人入居もご契約できます。 ペットの飼育もご相談ください。 敷金が無料なため、初期費用が比較的安くなる傾向にあります。
セキュリティ
この物件の建物には、オートロックや防犯カメラや宅配ボックスが設置されており、来客時には居室内のテレビモニターにて訪問者の顔を確認することができます。
室内設備
システムキッチンには、2つ以上のガスコンロが備え付けられています。 トイレは、温水洗浄便座機能付きになります。 洗濯に便利な設備として、浴室乾燥機も設置されているので、梅雨時の生乾き臭も比較的防ぐことができます。
居室状況
お部屋の床は、フローリングとなっており、エアコンが設置されています。 照明器具が備え付けられており、入居後すぐ生活が始められます。 収納スペースとして、基本的な居室にクローゼットを設置、玄関にはシューズボックスがあります。
建物設備共用部分
居室外の専有スペースとして、洗濯物を干すなどの用途として利用できるバルコニーがあります。 建物の共用スペースに、日々の出入に便利なエレベーターや、いざという時の防犯カメラや、急な外出や不在がちのご家庭の荷物受け取りに便利な宅配ボックスや、居室内を常に清潔に保てる24時間利用可能なゴミ捨て置き場が設置されています。 駐輪場が利用できます。
周辺施設
この物件の学区は、南河原小学校区・南河原中学校区です。
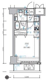
ARTESSIMO GREAS 409号室の間取り
間取り:1K
間取詳細:1K
専有面積:22.08㎡
方位:ー
部屋位置:その他
ARTESSIMO GREAS 409号室の設備
キッチン
システムキッチン
ガスコンロ
ガスコンロ二口以上
バス・トイレ
バス・トイレ別
浴室乾燥機
温水洗浄便座
玄関
TVモニタ付インターホン
オートロック
宅配ボックス
収納
クローゼット
シューズボックス
バルコニー
バルコニー
ルーフバルコニー
室内設備
エアコン
フローリング
照明器具付
位置・立地
2階以上
インフラ
インターネット可
BS
CS
建物設備
エレベーター
防犯カメラ
24時間ゴミ出しOK
駐輪場
入居条件
ペット可・相談
2人入居可
ライフステージ
一人暮らしに人気の設備
カップルに人気の設備
家族に人気の設備
夫婦に人気の設備
三世代で人気の設備
こだわり
セキュリティ対策重視
タイパ重視
外で子どもと遊びたい
雨の日でも洗濯したい
洋室で暮らしたい
趣味
ガーデニングが好き
ARTESSIMO GREAS 409号室の賃貸契約情報
毎月支払う |
家賃7.8万円/月共益費12,000円/月 |
|---|---|
初期費用 |
敷金-礼金2ヶ月 (15.6万円)保証金-敷引き償却金- |
更新料 |
78,000円 |
鍵交換費用 |
- |
室内清掃費用 |
- |
契約事務手数料 |
11,000円 |
退去時クリーニング費用 |
49,500円 |
退去時エアコン内部洗浄 |
23,100円 |
駐車場料金 |
無 |
損保・ |
借家賠付きの火災保険にご加入いただきます。 |
保証会社 |
加入要 保証会社利用料:全保連(初回賃料等総額50%~)1年毎更新時1.5万円/外国籍の方ルームバンクインシュア(初回賃料等総額80%~) 月額保証料1,500円 共に口座振替手数料330円※初回保証料100%の場合有 |
契約期間 |
2年 |
入居可能日 |
2026年03月下旬 |
フリーレント期間 |
- |
取引形態 |
一般媒介 |
備考 |
- |
ARTESSIMO GREAS 409号室の建物情報
建物名称 |
ARTESSIMO GREAS |
|---|---|
最寄駅 |
|
所在地 |
神奈川県川崎市幸区南幸町 |
階層 |
4階部分(地上9階建) |
構造 |
RC |
築年数 |
2016年12月(築10年) |
駐車場 |
無 |
小学校学区 |
南河原小学校 |
中学校学区 |
南河原中学校 |
- 学区データについて
- ※学区データは必ずしも正確とは限りません。詳細に関しては最寄店舗または各自治体の教育委員会に必ずご確認ください。
無料この物件に問い合わせ
- ARTESSIMO GREAS 409号室

-
7.8万円
(共益費
12,000円)
- 敷
- -
- 礼
- 2ヶ月
- 保
- -
- 償
- -
ARTESSIMO GREAS 409号室の物件のお問い合わせ先・取り扱い店舗
ハウスコム 蒲田店
- アクセス
-
京浜東北・根岸線「蒲田駅」西口徒歩1分
- 住所
- 〒144-0051 東京都大田区西蒲田7丁目5−8 コパンビル 1階
- 営業時間
- 10:00~18:00
- 定休日
- なし
- 営業エリア
- 大田区、品川区、川崎市
- 取引態様
- 賃貸仲介業







