グラシア・フィス北寺尾 A棟 102号室(1階/3LDK)の賃貸物件(賃貸一戸建て)
神奈川県横浜市鶴見区にあるグラシア・フィス北寺尾 A棟 102号室は温水洗浄便座、シャワー付洗面化粧台、バルコニー、1階、2人入居可などが特徴です。最寄り駅の京浜東北・根岸線川崎駅からバスで21分、白鵬女子高前から徒歩1分です。グラシア・フィス北寺尾 A棟 102号室の詳細はハウスコム 蒲田店までお気軽にお問い合わせください!
情報更新日:
次回更新予定日:
※次回更新予定日について:お店側では順次空室確認を行っていますが、次回更新予定日までに空室確認が行えない場合には、この物件情報は自動的に削除されます。
グラシア・フィス北寺尾 A棟 102号室の賃貸物件部屋概要
家賃 |
16.8万円
初期費用を |
|---|---|
共益費 |
5,000円
入居可能時期 |
敷金/礼金 |
2ヶ月 / - |
保証金/ |
- / - |
最寄駅 |
|
所在地 |
神奈川県横浜市鶴見区北寺尾 |
部屋番号 |
102号室 |
間取り |
3LDK(LDK11.9・洋6.9・洋6.5・洋6) |
専有面積 |
83.64㎡ |
築年数 |
2002年2月(築24年) |
階数 |
1階部分(地上2階建) |
方位・位置 |
南西 / その他 |
物件種別 |
賃貸一戸建て |
構造 |
木造 |
駐車場 |
12,100円 |
小学校学区 |
旭小学校 |
中学校学区 |
寺尾中学校 |
他の空き部屋 |
101号室 |
- 学区データについて
- ※学区データは必ずしも正確とは限りません。詳細に関しては最寄店舗または各自治体の教育委員会に必ずご確認ください。
グラシア・フィス北寺尾 A棟 102号室の特徴
契約条件
この物件は、2人入居もご契約できます。 ペットの飼育や楽器演奏もご相談ください。 礼金が無料なため、初期費用が比較的安くなる傾向にあります。
セキュリティ
来客時には居室内のテレビモニターにて訪問者の顔を確認することができます。
室内設備
システムキッチンには、ガスコンロが備え付けられています。 トイレは、温水洗浄便座機能付きになります。 女性に嬉しい設備のシャワーの付いている洗面化粧台があります。 洗濯に便利な設備として、室内洗濯機置場があります。
居室状況
お部屋の床は、フローリングとなっており、エアコンと一部床下暖房が設置されています。 収納スペースとして、玄関にはシューズボックス、また、床下収納といったあれば嬉しい用途別収納があります。
建物設備共用部分
居室外の専有スペースとして、洗濯物を干すなどの用途として利用できるバルコニーがあります。 駐輪場、バイク置き場が利用できます。
周辺施設
この物件の学区は、旭小学校区・寺尾中学校区です。
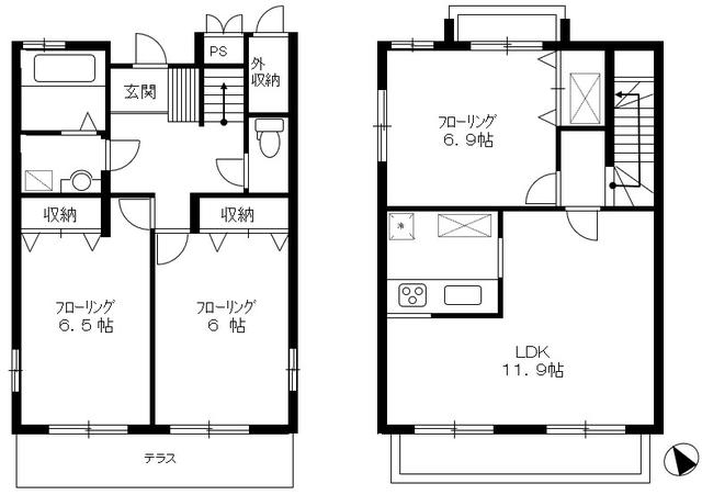
グラシア・フィス北寺尾 A棟 102号室の間取り
間取り:3LDK
間取詳細:3LDK(LDK11.9・洋6.9・洋6.5・洋6)
専有面積:83.64㎡
方位:南西
部屋位置:その他
グラシア・フィス北寺尾 A棟 102号室の設備
キッチン
システムキッチン
ガスコンロ
バス・トイレ
バス・トイレ別
温水洗浄便座
独立洗面台
シャワー付洗面化粧台
玄関
TVモニタ付インターホン
収納
シューズボックス
床下収納
バルコニー
バルコニー
ルーフバルコニー
室内設備
エアコン
フローリング
床下暖房
室内洗濯機置場
デザイナーズ
位置・立地
1階
インフラ
都市ガス
建物設備
駐輪場
バイク置き場
入居条件
ペット可・相談
楽器可・相談
2人入居可
ライフステージ
一人暮らしに人気の設備
カップルに人気の設備
家族に人気の設備
夫婦に人気の設備
三世代で人気の設備
こだわり
外で子どもと遊びたい
雨の日でも洗濯したい
洋室で暮らしたい
趣味
ガーデニングが好き
グラシア・フィス北寺尾 A棟 102号室の賃貸契約情報
毎月支払う |
家賃16.8万円/月共益費5,000円/月 |
|---|---|
初期費用 |
敷金2ヶ月 (33.6万円)礼金-保証金-敷引き償却金- |
更新料 |
84,000円 |
鍵交換費用 |
- |
室内清掃費用 |
- |
鍵交換費 |
33,000円 |
駐車場料金 |
12,100円 |
損保・ |
借家賠付きの火災保険にご加入いただきます。 |
保証会社 |
|
契約期間 |
定期借家 1年 |
入居可能日 |
2026年04月上旬 |
フリーレント期間 |
- |
取引形態 |
一般媒介 |
備考 |
- |
グラシア・フィス北寺尾 A棟 102号室の建物情報
建物名称 |
グラシア・フィス北寺尾 A棟 |
|---|---|
最寄駅 |
|
所在地 |
神奈川県横浜市鶴見区北寺尾 |
階層 |
1階部分(地上2階建) |
構造 |
木造 |
築年数 |
2002年2月(築24年) |
駐車場 |
12,100円 |
小学校学区 |
旭小学校 |
中学校学区 |
寺尾中学校 |
- 学区データについて
- ※学区データは必ずしも正確とは限りません。詳細に関しては最寄店舗または各自治体の教育委員会に必ずご確認ください。
無料この物件に問い合わせ
- グラシア・フィス北寺尾 A棟 102号室

-
16.8万円
(共益費
5,000円)
- 敷
- 2ヶ月
- 礼
- -
- 保
- -
- 償
- -
グラシア・フィス北寺尾 A棟 102号室の物件のお問い合わせ先・取り扱い店舗
ハウスコム 蒲田店
- アクセス
-
京浜東北・根岸線「蒲田駅」西口徒歩1分
- 住所
- 〒144-0051 東京都大田区西蒲田7丁目5−8 コパンビル 1階
- 営業時間
- 10:00~18:00
- 定休日
- なし
- 営業エリア
- 大田区、品川区、川崎市
- 取引態様
- 賃貸仲介業















