フォート金沢八景相川ビルⅡ 401号室(4階/1K)の賃貸物件(賃貸マンション)
神奈川県横浜市金沢区にあるフォート金沢八景相川ビルⅡ 401号室は電気コンロ、室内洗濯機置場、2階以上、CATV、保証人不要などが特徴です。最寄り駅の京急本線金沢八景駅から徒歩8分です。フォート金沢八景相川ビルⅡ 401号室の詳細はハウスコム 金沢文庫店までお気軽にお問い合わせください!
情報更新日:
次回更新予定日:
※次回更新予定日について:お店側では順次空室確認を行っていますが、次回更新予定日までに空室確認が行えない場合には、この物件情報は自動的に削除されます。
フォート金沢八景相川ビルⅡ 401号室の賃貸物件部屋概要
家賃 |
6.2万円
初期費用を |
|---|---|
共益費 |
-
入居可能時期 |
敷金/礼金 |
1ヶ月 / 1ヶ月 |
保証金/ |
- / - |
最寄駅 |
|
所在地 |
神奈川県横浜市金沢区六浦 |
部屋番号 |
401号室 |
間取り |
1K(洋7.5) |
専有面積 |
21.46㎡ |
築年数 |
1993年3月(築33年) |
階数 |
4階部分(地上5階建) |
方位・位置 |
南東 / 角部屋 |
物件種別 |
賃貸マンション |
構造 |
RC |
駐車場 |
無 |
小学校学区 |
六浦小学校 |
中学校学区 |
六浦中学校 |
他の空き部屋 |
208号室 ***号室 404号室 |
- 学区データについて
- ※学区データは必ずしも正確とは限りません。詳細に関しては最寄店舗または各自治体の教育委員会に必ずご確認ください。
フォート金沢八景相川ビルⅡ 401号室の特徴
-
一人暮らしに人気の設備

-
カップルに人気の設備

-
家族に人気の設備

-
夫婦に人気の設備

-
三世代で人気の設備

-
外で子どもと遊びたい

-
雨の日でも洗濯したい

-
洋室で暮らしたい

-
寝るためだけの部屋

-
ガーデニングが好き

契約条件
ご契約時に保証人は不要です。
セキュリティ
この物件の建物には、オートロックが設置されております。
室内設備
電気コンロが設置されており、キッチン設備として冷蔵庫が備え付けられています。 洗濯に便利な設備として、室内洗濯機置場があります。
居室状況
お部屋の床は、フローリングとなっており、エアコンが設置されています。 照明器具が備え付けられており、入居後すぐ生活が始められます。 収納スペースとして、基本的な居室にクローゼットを設置、玄関にはシューズボックスがあります。
建物設備共用部分
居室外の専有スペースとして、洗濯物を干すなどの用途として利用できるバルコニーがあります。 建物の共用スペースに、日々の出入に便利なエレベーターが設置されています。 駐輪場、バイク置き場が利用できます。
周辺施設
この物件の学区は、六浦小学校区・六浦中学校区です。
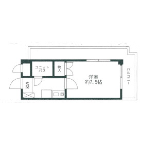
フォート金沢八景相川ビルⅡ 401号室の間取り
間取り:1K
間取詳細:1K(洋7.5)
専有面積:21.46㎡
方位:南東
部屋位置:角部屋
フォート金沢八景相川ビルⅡ 401号室の設備
キッチン
電気コンロ
冷蔵庫付
玄関
オートロック
収納
クローゼット
シューズボックス
バルコニー
バルコニー
ルーフバルコニー
室内設備
エアコン
フローリング
室内洗濯機置場
照明器具付
位置・立地
2階以上
角部屋
インフラ
インターネット可
CATV
都市ガス
建物設備
エレベーター
駐輪場
バイク置き場
入居条件
オンライン相談可
保証人不要
即入居可
ライフステージ
一人暮らしに人気の設備
カップルに人気の設備
家族に人気の設備
夫婦に人気の設備
三世代で人気の設備
こだわり
外で子どもと遊びたい
雨の日でも洗濯したい
洋室で暮らしたい
寝るためだけの部屋
趣味
ガーデニングが好き
フォート金沢八景相川ビルⅡ 401号室の賃貸契約情報
毎月支払う |
家賃6.2万円/月共益費- |
|---|---|
初期費用 |
敷金1ヶ月 (6.2万円)礼金1ヶ月 (6.2万円)保証金-敷引き償却金- |
更新料 |
62,000円 |
鍵交換費用 |
13,200円 |
室内清掃費用 |
- |
駐車場料金 |
無 |
損保・ |
借家賠付きの火災保険にご加入いただきます。 |
保証会社 |
加入要 保証会社利用料:JID日本賃貸保証 月額賃料の30% |
契約期間 |
2年 |
入居可能日 |
即入居可 |
フリーレント期間 |
- |
取引形態 |
一般媒介 |
備考 |
保険料2年間13000円、鍵交換代13200円、町内会費200円/月 |
フォート金沢八景相川ビルⅡ 401号室の建物情報
建物名称 |
フォート金沢八景相川ビルⅡ |
|---|---|
最寄駅 |
|
所在地 |
神奈川県横浜市金沢区六浦 |
階層 |
4階部分(地上5階建) |
構造 |
RC |
築年数 |
1993年3月(築33年) |
駐車場 |
無 |
小学校学区 |
六浦小学校 |
中学校学区 |
六浦中学校 |
- 学区データについて
- ※学区データは必ずしも正確とは限りません。詳細に関しては最寄店舗または各自治体の教育委員会に必ずご確認ください。
無料この物件に問い合わせ
- フォート金沢八景相川ビルⅡ 401号室

-
6.2万円
(共益費
-)
- 敷
- 1ヶ月
- 礼
- 1ヶ月
- 保
- -
- 償
- -
フォート金沢八景相川ビルⅡ 401号室の物件のお問い合わせ先・取り扱い店舗
ハウスコム 金沢文庫店
- アクセス
-
京急本線「金沢文庫駅」東口徒歩1分
- 住所
- 〒236-0016 神奈川県横浜市金沢区谷津町373
- 営業時間
- 10:00~18:00
- 定休日
- 水曜日(年末年始は休業)
- 営業エリア
- 横浜市金沢区・磯子区・港南区・南区・栄区、横須賀市、逗子市、鎌倉市、葉山町
- 取引態様
- 賃貸仲介業





























