アドバンス難波南ノエル ***号室(7階/1K)の賃貸物件(賃貸マンション)
大阪府大阪市浪速区にあるアドバンス難波南ノエル ***号室はクローゼット、シューズボックス、インターネット可、防犯カメラ、駐輪場などが特徴です。最寄り駅の大阪メトロ 堺筋線恵美須町駅から徒歩6分です。アドバンス難波南ノエル ***号室の詳細はミニミニ FC心斎橋店までお気軽にお問い合わせください!
情報更新日:
次回更新予定日:
※次回更新予定日について:お店側では順次空室確認を行っていますが、次回更新予定日までに空室確認が行えない場合には、この物件情報は自動的に削除されます。
アドバンス難波南ノエル ***号室の賃貸物件部屋概要
家賃 |
6.32万円
初期費用を |
|---|---|
共益費 |
4,800円
入居可能時期 |
敷金/礼金 |
- / 126,400円 |
保証金/ |
- / - |
最寄駅 |
|
所在地 |
大阪府大阪市浪速区下寺 |
部屋番号 |
***号室 |
間取り |
1K(K6.8) |
専有面積 |
24.12㎡ |
築年数 |
2022年11月(築4年) |
階数 |
7階部分(地上15階建) |
方位・位置 |
北 / 角部屋 |
物件種別 |
賃貸マンション |
構造 |
RC |
駐車場 |
- |
小学校学区 |
浪速小学校 |
中学校学区 |
日本橋中学校 |
他の空き部屋 |
***号室 |
- 学区データについて
- ※学区データは必ずしも正確とは限りません。詳細に関しては最寄店舗または各自治体の教育委員会に必ずご確認ください。
アドバンス難波南ノエル ***号室の特徴
-
一人暮らしに人気の設備

-
カップルに人気の設備

-
家族に人気の設備

-
夫婦に人気の設備

-
三世代で人気の設備

-
セキュリティ対策重視

-
外で子どもと遊びたい

-
雨の日でも洗濯したい

-
洋室で暮らしたい

-
オークション・通販が好き

-
ガーデニングが好き

契約条件
ペットの飼育もご相談ください。 敷金が無料なため、初期費用が比較的安くなる傾向にあります。
セキュリティ
この物件の建物には、オートロックや防犯カメラや宅配ボックスが設置されており、来客時には居室内のテレビモニターにて訪問者の顔を確認することができます。
室内設備
システムキッチンには、2つ以上のガスコンロが備え付けられています。 トイレは、温水洗浄便座機能付きになります。 女性に嬉しい設備のシャワーの付いている洗面化粧台があります。 洗濯に便利な設備として、室内洗濯機置場があります。浴室乾燥機も設置されているので、梅雨時の生乾き臭も比較的防ぐことができます。
居室状況
お部屋の床は、フローリングとなっており、エアコンが設置されています。 インターネットも無料で入居後すぐ生活が始められます。 収納スペースとして、基本的な居室にクローゼットを設置、玄関にはシューズボックスがあります。
建物設備共用部分
居室外の専有スペースとして、洗濯物を干すなどの用途として利用できるバルコニーがあります。 建物の共用スペースに、日々の出入に便利なエレベーターや、いざという時の防犯カメラや、急な外出や不在がちのご家庭の荷物受け取りに便利な宅配ボックスが設置されています。 駐輪場、バイク置き場が利用できます。
周辺施設
この物件の学区は、浪速小学校区・日本橋中学校区です。
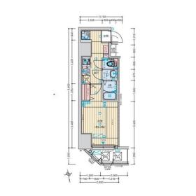
アドバンス難波南ノエル ***号室の間取り
間取り:1K
間取詳細:1K(K6.8)
専有面積:24.12㎡
方位:北
部屋位置:角部屋
アドバンス難波南ノエル ***号室の設備
キッチン
システムキッチン
ガスコンロ
ガスコンロ二口以上
バス・トイレ
バス・トイレ別
浴室乾燥機
温水洗浄便座
独立洗面台
シャワー付洗面化粧台
玄関
TVモニタ付インターホン
オートロック
宅配ボックス
収納
クローゼット
シューズボックス
バルコニー
バルコニー
ルーフバルコニー
室内設備
エアコン
フローリング
室内洗濯機置場
バリアフリー
位置・立地
2階以上
角部屋
インフラ
インターネット可
都市ガス
建物設備
エレベーター
防犯カメラ
駐輪場
バイク置き場
入居条件
ペット可・相談
ライフステージ
一人暮らしに人気の設備
カップルに人気の設備
家族に人気の設備
夫婦に人気の設備
三世代で人気の設備
こだわり
セキュリティ対策重視
外で子どもと遊びたい
雨の日でも洗濯したい
洋室で暮らしたい
趣味
オークション・通販が好き
ガーデニングが好き
お得な条件
インターネット無料
アドバンス難波南ノエル ***号室の賃貸契約情報
毎月支払う |
家賃6.32万円/月共益費4,800円/月 |
|---|---|
初期費用 |
敷金-礼金126,400円保証金-敷引き償却金- |
更新料 |
- |
鍵交換費用 |
27,500円 |
室内清掃費用 |
33,000円 |
スマサポコンシェル入会金 |
5,500円 |
駐車場料金 |
- |
損保・ |
借家賠付きの火災保険にご加入いただきます。 |
保証会社 |
加入要 保証会社利用料:初回保証料:月額総賃料の30%、更新時:20,000円/年、引落手数料:330円/月 |
契約期間 |
- |
入居可能日 |
2026年03月下旬 |
フリーレント期間 |
- |
取引形態 |
一般媒介 |
備考 |
短期違約金:1年未満の解約は家賃の1ヶ月分、小型犬・猫合計2匹まで飼育可能(ペット飼育時、敷金1ヶ月分必要) |
アドバンス難波南ノエル ***号室の建物情報
建物名称 |
アドバンス難波南ノエル |
|---|---|
最寄駅 |
|
所在地 |
大阪府大阪市浪速区下寺 |
階層 |
7階部分(地上15階建) |
構造 |
RC |
築年数 |
2022年11月(築4年) |
駐車場 |
- |
小学校学区 |
浪速小学校 |
中学校学区 |
日本橋中学校 |
- 学区データについて
- ※学区データは必ずしも正確とは限りません。詳細に関しては最寄店舗または各自治体の教育委員会に必ずご確認ください。
無料この物件に問い合わせ
- アドバンス難波南ノエル ***号室

-
6.32万円
(共益費
4,800円)
- 敷
- -
- 礼
- 126,400円
- 保
- -
- 償
- -
アドバンス難波南ノエル ***号室の物件のお問い合わせ先・取り扱い店舗
ミニミニ FC心斎橋店
- アクセス
-
大阪メトロ 御堂筋線「心斎橋駅」徒歩2分
大阪メトロ 長堀鶴見緑地線「心斎橋駅」徒歩2分
- 住所
- 〒542-0081 大阪府大阪市中央区南船場3-11-6 アルファビル1F
- 営業時間
- 10:00~18:00
- 定休日
- なし(12月25日~1月3日の年末年始は休業となります)
- 営業エリア
- 大阪市中央区,大阪市西区、大阪市北区、大阪市浪速区、大阪市城東区、大阪市港区、大阪市福島区
- 取引態様
- 賃貸仲介業



























