Prima Stella(プリマステラ) 1402号室(14階/2LDK)の賃貸物件(賃貸マンション)
東京都新宿区にあるPrima Stella(プリマステラ) 1402号室は浴室乾燥機、宅配ボックス、バイク置き場、オンライン相談可、オンライン内見可などが特徴です。最寄り駅の東京メトロ 丸ノ内線西新宿駅から徒歩4分です。Prima Stella(プリマステラ) 1402号室の詳細はハウスコム 練馬店までお気軽にお問い合わせください!
情報更新日:
次回更新予定日:
※次回更新予定日について:お店側では順次空室確認を行っていますが、次回更新予定日までに空室確認が行えない場合には、この物件情報は自動的に削除されます。
Prima Stella(プリマステラ) 1402号室の賃貸物件部屋概要
家賃 |
53.5万円
初期費用を |
|---|---|
共益費 |
15,000円
入居可能時期 |
敷金/礼金 |
1ヶ月 / - |
保証金/ |
- / - |
最寄駅 |
|
所在地 |
東京都新宿区西新宿 |
部屋番号 |
1402号室 |
間取り |
2LDK(洋11.5・洋9.3・LDK22.5) |
専有面積 |
94.77㎡ |
築年数 |
新築 |
階数 |
14階部分(地上14階建) |
方位・位置 |
北西 / その他 |
物件種別 |
賃貸マンション |
構造 |
RC |
駐車場 |
- |
小学校学区 |
柏木小学校 |
中学校学区 |
西新宿中学校 |
他の空き部屋 |
1004号室 1005号室 1202号室 1203号室 1204号室 307号室 405号室 604号室 803号室 805号室 |
- 学区データについて
- ※学区データは必ずしも正確とは限りません。詳細に関しては最寄店舗または各自治体の教育委員会に必ずご確認ください。
Prima Stella(プリマステラ) 1402号室の特徴
-
一人暮らしに人気の設備

-
カップルに人気の設備

-
家族に人気の設備

-
夫婦に人気の設備

-
三世代で人気の設備

-
セキュリティ対策重視

-
タイパ重視

-
外で子どもと遊びたい

-
雨の日でも洗濯したい

-
洋室で暮らしたい

-
料理が好き

-
服やおしゃれが好き

-
靴やスニーカーが好き

-
推し活グッズを飾りたい

-
オークション・通販が好き

-
ガーデニングが好き

契約条件
礼金が無料なため、初期費用が比較的安くなる傾向にあります。
セキュリティ
この物件の建物には、オートロックや防犯カメラや宅配ボックスが設置されており、来客時には居室内のテレビモニターにて訪問者の顔を確認することができます。
室内設備
システムキッチンには、ガスコンロが備え付けられています。 お風呂とトイレは別です。お風呂には、追い焚き機能が備わっています。 トイレは、温水洗浄便座機能付きになります。 女性に嬉しい設備のシャワーの付いている洗面化粧台があります。 洗濯に便利な設備として、室内洗濯機置場があります。浴室乾燥機も設置されているので、梅雨時の生乾き臭も比較的防ぐことができます。
居室状況
お部屋の床は、フローリングとなっており、エアコンが設置されています。 インターネットも無料で入居後すぐ生活が始められます。 収納スペースとして、基本的な居室にクローゼットを設置、通常よりも収納力の高いウォークインクローゼット、玄関にはシューズインクローゼットがあります。
建物設備共用部分
居室外の専有スペースとして、洗濯物を干すなどの用途として利用できるバルコニーがあります。 建物の共用スペースに、日々の出入に便利なエレベーターや、いざという時の防犯カメラや、急な外出や不在がちのご家庭の荷物受け取りに便利な宅配ボックスや、居室内を常に清潔に保てる24時間利用可能なゴミ捨て置き場が設置されています。 駐輪場、バイク置き場が利用できます。
周辺施設
この物件の学区は、柏木小学校区・西新宿中学校区です。
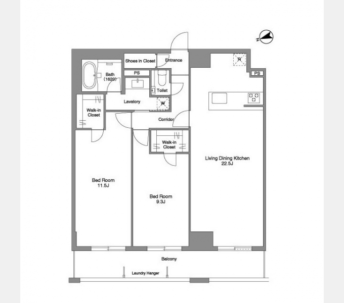
Prima Stella(プリマステラ) 1402号室の間取り
間取り:2LDK
間取詳細:2LDK(洋11.5・洋9.3・LDK22.5)
専有面積:94.77㎡
方位:北西
部屋位置:その他
Prima Stella(プリマステラ) 1402号室の設備
キッチン
システムキッチン
カウンターキッチン
ガスコンロ
バス・トイレ
バス・トイレ別
追い焚き
浴室乾燥機
温水洗浄便座
独立洗面台
シャワー付洗面化粧台
玄関
TVモニタ付インターホン
オートロック
宅配ボックス
収納
クローゼット
ウォークインクローゼット
シューズインクローゼット
シューズボックス
トランクルーム
バルコニー
バルコニー
ルーフバルコニー
室内設備
エアコン
フローリング
室内洗濯機置場
位置・立地
2階以上
最上階
インフラ
インターネット可
BS
CS
都市ガス
建物設備
エレベーター
防犯カメラ
24時間ゴミ出しOK
駐輪場
バイク置き場
入居条件
オンライン相談可
オンライン内見可
即入居可
ライフステージ
一人暮らしに人気の設備
カップルに人気の設備
家族に人気の設備
夫婦に人気の設備
三世代で人気の設備
こだわり
セキュリティ対策重視
タイパ重視
外で子どもと遊びたい
雨の日でも洗濯したい
洋室で暮らしたい
趣味
料理が好き
服やおしゃれが好き
靴やスニーカーが好き
推し活グッズを飾りたい
オークション・通販が好き
ガーデニングが好き
お得な条件
インターネット無料
Prima Stella(プリマステラ) 1402号室の賃貸契約情報
毎月支払う |
家賃53.5万円/月共益費15,000円/月 |
|---|---|
初期費用 |
敷金1ヶ月 (53.5万円)礼金-保証金-敷引き償却金- |
更新料 |
535,000円 |
鍵交換費用 |
144,760円 |
室内清掃費用 |
- |
エアコンクリーニング代/2台(退去時) |
33,000円 |
駐車場料金 |
- |
損保・ |
借家賠付きの火災保険にご加入いただきます。 |
保証会社 |
加入要 保証会社利用料:【個人】初回保証料:総賃料等の50% 月額保証料:総賃料等の1%(更新料無)【法人】初回保証料:総賃料等の50% 月額保証料:総賃料等の1% 2年目以降:年間保証料:20000円/年毎 |
契約期間 |
2年 |
入居可能日 |
即入居可 |
フリーレント期間 |
- |
取引形態 |
一般媒介 |
備考 |
・指定保証会社利用必須一部法人契約除く・敷金積増1ヶ月 バイク置き場:有料 駐輪場:有料 |
Prima Stella(プリマステラ) 1402号室の建物情報
建物名称 |
Prima Stella(プリマステラ) |
|---|---|
最寄駅 |
|
所在地 |
東京都新宿区西新宿 |
階層 |
14階部分(地上14階建) |
構造 |
RC |
築年数 |
新築 |
駐車場 |
- |
小学校学区 |
柏木小学校 |
中学校学区 |
西新宿中学校 |
- 学区データについて
- ※学区データは必ずしも正確とは限りません。詳細に関しては最寄店舗または各自治体の教育委員会に必ずご確認ください。
無料この物件に問い合わせ
- Prima Stella(プリマステラ) 1402号室

-
53.5万円
(共益費
15,000円)
- 敷
- 1ヶ月
- 礼
- -
- 保
- -
- 償
- -
Prima Stella(プリマステラ) 1402号室の物件のお問い合わせ先・取り扱い店舗
ハウスコム 練馬店
- アクセス
-
西武池袋線・豊島線「練馬駅」南口徒歩1分
都営大江戸線「練馬駅」A2出口徒歩1分
- 住所
- 〒176-0001 東京都練馬区練馬1丁目2−9 K&Iビル 1階
- 営業時間
- 10:00~18:00
- 定休日
- なし(年末年始休業(12月25日~1月3日))
- 営業エリア
- 練馬区、中野区、杉並区、板橋区、豊島区、西東京市、和光市、朝霞市、新座市お探しとあればどこでもお探し致します。
- 取引態様
- 賃貸仲介業





























