日神パレステージ板橋 803号室(8階/1DK)の賃貸物件(賃貸マンション)
東京都北区にある日神パレステージ板橋 803号室は独立洗面台、オートロック、シューズボックス、フローリング、ペット可・相談などが特徴です。最寄り駅の埼京線板橋駅から徒歩5分です。日神パレステージ板橋 803号室の詳細はハウスコム 池袋西口店までお気軽にお問い合わせください!
情報更新日:
次回更新予定日:
※次回更新予定日について:お店側では順次空室確認を行っていますが、次回更新予定日までに空室確認が行えない場合には、この物件情報は自動的に削除されます。
日神パレステージ板橋 803号室の賃貸物件部屋概要
家賃 |
14万円
初期費用を |
|---|---|
共益費 |
8,000円
入居可能時期 |
敷金/礼金 |
1ヶ月 / 1ヶ月 |
保証金/ |
- / - |
最寄駅 |
|
所在地 |
東京都北区滝野川 |
部屋番号 |
803号室 |
間取り |
1DK(洋6・LD8.3) |
専有面積 |
40.05㎡ |
築年数 |
2006年12月(築20年) |
階数 |
8階部分(地上9階建) |
方位・位置 |
西 / その他 |
物件種別 |
賃貸マンション |
構造 |
RC |
駐車場 |
- |
小学校学区 |
谷端小学校 |
中学校学区 |
滝野川紅葉中学校 |
他の空き部屋 |
ー |
- 学区データについて
- ※学区データは必ずしも正確とは限りません。詳細に関しては最寄店舗または各自治体の教育委員会に必ずご確認ください。
日神パレステージ板橋 803号室の特徴
-
一人暮らしに人気の設備

-
カップルに人気の設備

-
家族に人気の設備

-
夫婦に人気の設備

-
三世代で人気の設備

-
外で子どもと遊びたい

-
身だしなみに気をつかいたい

-
洋室で暮らしたい

-
服やおしゃれが好き

-
ガーデニングが好き

契約条件
この物件は、2人入居もご契約できます。 ペットの飼育もご相談ください。
セキュリティ
この物件の建物には、オートロックや防犯カメラが設置されております。
室内設備
システムキッチンには、IHコンロが備え付けられています。 お風呂とトイレは別です。お風呂には、追い焚き機能が備わっています。 トイレは、温水洗浄便座機能付きになります。 女性に嬉しい設備の独立した洗面化粧台があります。
居室状況
お部屋の床は、フローリングとなっており、エアコンが設置されています。 収納スペースとして、基本的な居室にクローゼットを設置、通常よりも収納力の高いウォークインクローゼット、玄関にはシューズボックスがあります。
建物設備共用部分
居室外の専有スペースとして、洗濯物を干すなどの用途として利用できるバルコニーがあります。 建物の共用スペースに、日々の出入に便利なエレベーターや、いざという時の防犯カメラが設置されています。
周辺施設
この物件の学区は、谷端小学校区・滝野川紅葉中学校区です。
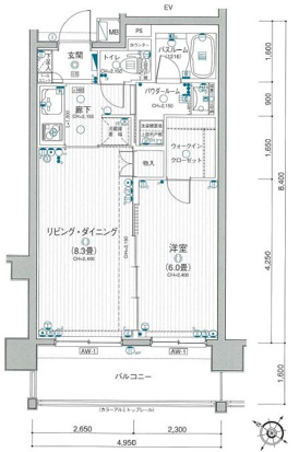
日神パレステージ板橋 803号室の間取り
間取り:1DK
間取詳細:1DK(洋6・LD8.3)
専有面積:40.05㎡
方位:西
部屋位置:その他
日神パレステージ板橋 803号室の設備
キッチン
システムキッチン
IHコンロ
バス・トイレ
バス・トイレ別
追い焚き
温水洗浄便座
独立洗面台
玄関
オートロック
収納
クローゼット
ウォークインクローゼット
シューズボックス
バルコニー
バルコニー
ルーフバルコニー
室内設備
エアコン
フローリング
位置・立地
2階以上
インフラ
インターネット可
建物設備
エレベーター
防犯カメラ
分譲賃貸
入居条件
ペット可・相談
2人入居可
ライフステージ
一人暮らしに人気の設備
カップルに人気の設備
家族に人気の設備
夫婦に人気の設備
三世代で人気の設備
こだわり
外で子どもと遊びたい
身だしなみに気をつかいたい
洋室で暮らしたい
趣味
服やおしゃれが好き
ガーデニングが好き
日神パレステージ板橋 803号室の賃貸契約情報
毎月支払う |
家賃14万円/月共益費8,000円/月 |
|---|---|
初期費用 |
敷金1ヶ月 (14万円)礼金1ヶ月 (14万円)保証金-敷引き償却金- |
更新料 |
140,000円 |
鍵交換費用 |
28,600円 |
室内清掃費用 |
- |
事務管理手数料 |
11,000円 |
駐車場料金 |
- |
損保・ |
借家賠付きの火災保険にご加入いただきます。 |
保証会社 |
加入要 保証会社利用料:初回保証料/総賃料の50% 年間保証料/10,000円 口座振替手数料/350円 |
契約期間 |
2年 |
入居可能日 |
相談 |
フリーレント期間 |
- |
取引形態 |
一般媒介 |
備考 |
ペット飼育時敷金積み増し料金(償却)有り |
日神パレステージ板橋 803号室の建物情報
建物名称 |
日神パレステージ板橋 |
|---|---|
最寄駅 |
|
所在地 |
東京都北区滝野川 |
階層 |
8階部分(地上9階建) |
構造 |
RC |
築年数 |
2006年12月(築20年) |
駐車場 |
- |
小学校学区 |
谷端小学校 |
中学校学区 |
滝野川紅葉中学校 |
- 学区データについて
- ※学区データは必ずしも正確とは限りません。詳細に関しては最寄店舗または各自治体の教育委員会に必ずご確認ください。
無料この物件に問い合わせ
- 日神パレステージ板橋 803号室

-
14万円
(共益費
8,000円)
- 敷
- 1ヶ月
- 礼
- 1ヶ月
- 保
- -
- 償
- -
日神パレステージ板橋 803号室の物件のお問い合わせ先・取り扱い店舗
ハウスコム 池袋西口店
- アクセス
-
山手線「池袋駅」西口徒歩1分
東京メトロ 丸ノ内線「池袋駅」D11出口徒歩1分
- 住所
- 〒171-0021 東京都豊島区西池袋1丁目19−6 松長ビル 2階
- 営業時間
- 10:00~18:00
- 定休日
- なし
- 営業エリア
- 豊島区 板橋区 新宿区 練馬区 文京区
- 取引態様
- 賃貸仲介業











