レオパレスアルプス 103号室(1階/1K)の賃貸物件(賃貸アパート)
神奈川県横浜市緑区にあるレオパレスアルプス 103号室は温水洗浄便座、ロフト付、照明器具付、家具付、オンライン相談可などが特徴です。最寄り駅の横浜線鴨居駅から徒歩12分です。レオパレスアルプス 103号室の詳細はハウスコム 菊名店までお気軽にお問い合わせください!
情報更新日:
次回更新予定日:
※次回更新予定日について:お店側では順次空室確認を行っていますが、次回更新予定日までに空室確認が行えない場合には、この物件情報は自動的に削除されます。
レオパレスアルプス 103号室の賃貸物件部屋概要
家賃 |
7.3万円
初期費用を |
|---|---|
共益費 |
5,500円
入居可能時期 |
敷金/礼金 |
- / 73,000円 |
保証金/ |
- / - |
最寄駅 |
|
所在地 |
神奈川県横浜市緑区鴨居 |
部屋番号 |
103号室 |
間取り |
1K |
専有面積 |
19.87㎡ |
築年数 |
2008年9月(築18年) |
階数 |
1階部分(地上2階建) |
方位・位置 |
ー / その他 |
物件種別 |
賃貸アパート |
構造 |
軽量鉄骨 |
駐車場 |
無 |
小学校学区 |
鴨居小学校 |
中学校学区 |
東鴨居中学校 |
他の空き部屋 |
ー |
- 学区データについて
- ※学区データは必ずしも正確とは限りません。詳細に関しては最寄店舗または各自治体の教育委員会に必ずご確認ください。
レオパレスアルプス 103号室の特徴
契約条件
敷金が無料なため、初期費用が比較的安くなる傾向にあります。
セキュリティ
来客時には居室内のテレビモニターにて訪問者の顔を確認することができます。
室内設備
電気コンロが備え付けられています。 トイレは、温水洗浄便座機能付きになります。 洗濯に便利な設備として、室内洗濯機置場があります。
居室状況
居室には、ロフトが設置されており大規模な収納スペースやセパレートされた寝室として活用できます。 エアコンが設置されています。 家具と照明器具が備え付けられており、入居後すぐ生活が始められます。 収納スペースとして、玄関にはシューズボックスがあります。
周辺施設
この物件の学区は、鴨居小学校区・東鴨居中学校区です。
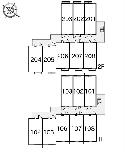
レオパレスアルプス 103号室の間取り
間取り:1K
間取詳細:1K
専有面積:19.87㎡
方位:ー
部屋位置:その他
レオパレスアルプス 103号室の設備
キッチン
電気コンロ
バス・トイレ
バス・トイレ別
温水洗浄便座
玄関
TVモニタ付インターホン
収納
シューズボックス
室内設備
エアコン
室内洗濯機置場
ロフト付
照明器具付
家具付
位置・立地
1階
インフラ
インターネット可
入居条件
オンライン相談可
オンライン内見可
ライフステージ
一人暮らしに人気の設備
カップルに人気の設備
家族に人気の設備
夫婦に人気の設備
三世代で人気の設備
トレンド
ミニマリスト
こだわり
雨の日でも洗濯したい
レオパレスアルプス 103号室の賃貸契約情報
毎月支払う |
家賃7.3万円/月共益費5,500円/月 |
|---|---|
初期費用 |
敷金-礼金73,000円保証金-敷引き償却金- |
更新料 |
- |
鍵交換費用 |
16,500円 |
室内清掃費用 |
41,800円 |
抗菌施工(任意) |
23,760円 |
駐車場料金 |
無 |
損保・ |
借家賠付きの火災保険にご加入いただきます。 |
保証会社 |
加入要 保証会社利用料:保証料:86990円(契約内容により100~120%で変動有)※記載金額は120%の場合 |
契約期間 |
2年 |
入居可能日 |
2026年03月中旬 |
フリーレント期間 |
- |
取引形態 |
一般媒介 |
備考 |
- |
レオパレスアルプス 103号室の建物情報
建物名称 |
レオパレスアルプス |
|---|---|
最寄駅 |
|
所在地 |
神奈川県横浜市緑区鴨居 |
階層 |
1階部分(地上2階建) |
構造 |
軽量鉄骨 |
築年数 |
2008年9月(築18年) |
駐車場 |
無 |
小学校学区 |
鴨居小学校 |
中学校学区 |
東鴨居中学校 |
- 学区データについて
- ※学区データは必ずしも正確とは限りません。詳細に関しては最寄店舗または各自治体の教育委員会に必ずご確認ください。
無料この物件に問い合わせ
- レオパレスアルプス 103号室

-
7.3万円
(共益費
5,500円)
- 敷
- -
- 礼
- 73,000円
- 保
- -
- 償
- -
レオパレスアルプス 103号室の物件のお問い合わせ先・取り扱い店舗
ハウスコム 菊名店
- アクセス
-
東急東横線「菊名駅」徒歩1分
- 住所
- 〒222-0011 神奈川県横浜市港北区菊名4丁目1−6 クレセント菊名 1階
- 営業時間
- 10:00~18:00
- 定休日
- なし
- 営業エリア
- 横浜市港北区、横浜市神奈川区、横浜市都筑区、横浜市鶴見区、横浜市緑区
- 取引態様
- 賃貸仲介業



























