エスリード京都吉祥院 0306号室(3階/1K)の賃貸物件(賃貸マンション)
京都府京都市南区にあるエスリード京都吉祥院 0306号室はシステムキッチン、温水洗浄便座、フローリング、2階以上、駐輪場などが特徴です。最寄り駅の東海道本線(JR西日本)西大路駅から徒歩6分です。エスリード京都吉祥院 0306号室の詳細はハウスコム 西院店までお気軽にお問い合わせください!
情報更新日:
次回更新予定日:
※次回更新予定日について:お店側では順次空室確認を行っていますが、次回更新予定日までに空室確認が行えない場合には、この物件情報は自動的に削除されます。
エスリード京都吉祥院 0306号室の賃貸物件部屋概要
家賃 |
6.56万円
初期費用を |
|---|---|
共益費 |
8,000円
入居可能時期 |
敷金/礼金 |
- / 73,600円 |
保証金/ |
- / - |
最寄駅 |
|
所在地 |
京都府京都市南区吉祥院西ノ庄東屋敷町 |
部屋番号 |
0306号室 |
間取り |
1K |
専有面積 |
24.30㎡ |
築年数 |
2019年3月(築7年) |
階数 |
3階部分(地上7階建) |
方位・位置 |
北西 / その他 |
物件種別 |
賃貸マンション |
構造 |
RC |
駐車場 |
- |
小学校学区 |
祥豊小学校 |
中学校学区 |
洛南中学校 |
他の空き部屋 |
***号室 405号室 507号室 |
- 学区データについて
- ※学区データは必ずしも正確とは限りません。詳細に関しては最寄店舗または各自治体の教育委員会に必ずご確認ください。
エスリード京都吉祥院 0306号室の特徴
-
一人暮らしに人気の設備

-
カップルに人気の設備

-
家族に人気の設備

-
夫婦に人気の設備

-
三世代で人気の設備

-
セキュリティ対策重視

-
外で子どもと遊びたい

-
身だしなみに気をつかいたい

-
雨の日でも洗濯したい

-
洋室で暮らしたい

-
寝るためだけの部屋

-
ガーデニングが好き

契約条件
ペットの飼育もご相談ください。 敷金が無料なため、初期費用が比較的安くなる傾向にあります。
セキュリティ
この物件の建物には、オートロックや防犯カメラや宅配ボックスが設置されており、来客時には居室内のテレビモニターにて訪問者の顔を確認することができます。
室内設備
システムキッチンには、2つ以上のガスコンロが備え付けられています。 トイレは、温水洗浄便座機能付きになります。 女性に嬉しい設備のシャワーの付いている洗面化粧台があります。 洗濯に便利な設備として、室内洗濯機置場があります。浴室乾燥機も設置されているので、梅雨時の生乾き臭も比較的防ぐことができます。
居室状況
お部屋の床は、フローリングとなっており、エアコンが設置されています。 収納スペースとして、基本的な居室にクローゼットを設置、玄関にはシューズボックスがあります。
建物設備共用部分
居室外の専有スペースとして、洗濯物を干すなどの用途として利用できるバルコニーがあります。 建物の共用スペースに、日々の出入に便利なエレベーターや、いざという時の防犯カメラや、急な外出や不在がちのご家庭の荷物受け取りに便利な宅配ボックスが設置されています。 駐輪場、バイク置き場が利用できます。
周辺施設
この物件の学区は、祥豊小学校区・洛南中学校区です。
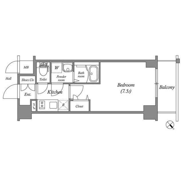
エスリード京都吉祥院 0306号室の間取り
間取り:1K
間取詳細:1K
専有面積:24.30㎡
方位:北西
部屋位置:その他
エスリード京都吉祥院 0306号室の設備
キッチン
システムキッチン
ガスコンロ
ガスコンロ二口以上
バス・トイレ
バス・トイレ別
浴室乾燥機
温水洗浄便座
独立洗面台
シャワー付洗面化粧台
玄関
TVモニタ付インターホン
オートロック
宅配ボックス
収納
クローゼット
シューズボックス
バルコニー
バルコニー
ルーフバルコニー
室内設備
エアコン
フローリング
室内洗濯機置場
位置・立地
2階以上
インフラ
CATV
BS
CS
都市ガス
建物設備
エレベーター
防犯カメラ
駐輪場
バイク置き場
分譲賃貸
入居条件
ペット可・相談
ライフステージ
一人暮らしに人気の設備
カップルに人気の設備
家族に人気の設備
夫婦に人気の設備
三世代で人気の設備
こだわり
セキュリティ対策重視
外で子どもと遊びたい
身だしなみに気をつかいたい
雨の日でも洗濯したい
洋室で暮らしたい
寝るためだけの部屋
趣味
ガーデニングが好き
エスリード京都吉祥院 0306号室の賃貸契約情報
毎月支払う |
家賃6.56万円/月共益費8,000円/月 |
|---|---|
初期費用 |
敷金-礼金73,600円保証金-敷引き償却金- |
更新料 |
- |
鍵交換費用 |
- |
室内清掃費用 |
- |
契約時ルームクリーニング代(不課税) |
33,000円 |
スマサポコンシェル入会金 |
5,500円 |
カギ代 |
24,200円 |
駐車場料金 |
- |
損保・ |
借家賠付きの火災保険にご加入いただきます。 |
保証会社 |
加入要 保証会社利用料:sumai保証 大手法人相談可 |
契約期間 |
1年 |
入居可能日 |
即入居可 |
フリーレント期間 |
- |
取引形態 |
一般媒介 |
備考 |
- |
エスリード京都吉祥院 0306号室の建物情報
建物名称 |
エスリード京都吉祥院 |
|---|---|
最寄駅 |
|
所在地 |
京都府京都市南区吉祥院西ノ庄東屋敷町 |
階層 |
3階部分(地上7階建) |
構造 |
RC |
築年数 |
2019年3月(築7年) |
駐車場 |
- |
小学校学区 |
祥豊小学校 |
中学校学区 |
洛南中学校 |
- 学区データについて
- ※学区データは必ずしも正確とは限りません。詳細に関しては最寄店舗または各自治体の教育委員会に必ずご確認ください。
無料この物件に問い合わせ
- エスリード京都吉祥院 0306号室

-
6.56万円
(共益費
8,000円)
- 敷
- -
- 礼
- 73,600円
- 保
- -
- 償
- -
エスリード京都吉祥院 0306号室の物件のお問い合わせ先・取り扱い店舗
ハウスコム 西院店
- アクセス
-
阪急京都線「西院駅」徒歩1分
- 住所
- 〒615-0012 京都府京都市右京区西院高山寺町13番地 西院阪急プラザ1F
- 営業時間
- 10:00~18:00
- 定休日
- 水曜日(年末年始休み12月25日から1月3日まで)
- 営業エリア
- 京都市右京区・京都市中京区・京都市下京区・京都市西京区・京都市上京区・京都市南区・京都市北区
- 取引態様
- 賃貸仲介業












