PLENDY-SHARE横浜ベイ 309号室(3階/1R)の賃貸物件(賃貸マンション)
神奈川県横浜市金沢区にあるPLENDY-SHARE横浜ベイ 309号室はTVモニタ付インターホン、宅配ボックス、照明器具付、デザイナーズ、2階以上などが特徴です。最寄り駅の京浜東北・根岸線新杉田駅から徒歩15分です。PLENDY-SHARE横浜ベイ 309号室の詳細はハウスコム 金沢文庫店までお気軽にお問い合わせください!
情報更新日:
次回更新予定日:
※次回更新予定日について:お店側では順次空室確認を行っていますが、次回更新予定日までに空室確認が行えない場合には、この物件情報は自動的に削除されます。
PLENDY-SHARE横浜ベイ 309号室の賃貸物件部屋概要
家賃 |
3.5万円
初期費用を |
|---|---|
共益費 |
-
入居可能時期 |
敷金/礼金 |
- / - |
保証金/ |
- / - |
最寄駅 |
|
所在地 |
神奈川県横浜市金沢区富岡東 |
部屋番号 |
309号室 |
間取り |
1R |
専有面積 |
15.99㎡ |
築年数 |
1991年12月(築35年) |
階数 |
3階部分(地上3階建) |
方位・位置 |
南西 / その他 |
物件種別 |
賃貸マンション |
構造 |
RC |
駐車場 |
無 |
小学校学区 |
小田小学校 |
中学校学区 |
小田中学校 |
他の空き部屋 |
101号室 204号室 206号室 301号室 |
- 学区データについて
- ※学区データは必ずしも正確とは限りません。詳細に関しては最寄店舗または各自治体の教育委員会に必ずご確認ください。
PLENDY-SHARE横浜ベイ 309号室の特徴
-
一人暮らしに人気の設備

-
家族に人気の設備

-
夫婦に人気の設備

-
三世代で人気の設備

-
セキュリティ対策重視

-
外で子どもと遊びたい

-
洋室で暮らしたい

-
コスパ重視のリフォーム部屋

-
オークション・通販が好き

-
ガーデニングが好き

契約条件
敷金と礼金が無料なため、初期費用が比較的安くなる傾向にあります。
セキュリティ
この物件の建物には、オートロックや防犯カメラや宅配ボックスが設置されており、来客時には居室内のテレビモニターにて訪問者の顔を確認することができます。
室内設備
キッチン設備として冷蔵庫が備え付けられています。
居室状況
お部屋の床は、フローリングとなっており、エアコンが設置されています。 照明器具が備え付けられており、インターネットも無料で入居後すぐ生活が始められます。 収納スペースとして、玄関にはシューズボックスがあります。
建物設備共用部分
居室外の専有スペースとして、洗濯物を干すなどの用途として利用できるバルコニーがあります。 建物の共用スペースに、いざという時の防犯カメラや、急な外出や不在がちのご家庭の荷物受け取りに便利な宅配ボックスが設置されています。 駐輪場、バイク置き場が利用できます。
周辺施設
この物件の学区は、小田小学校区・小田中学校区です。
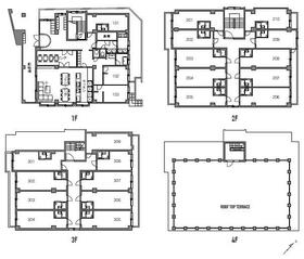
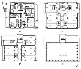
PLENDY-SHARE横浜ベイ 309号室の間取り
間取り:1R
間取詳細:1R
専有面積:15.99㎡
方位:南西
部屋位置:その他
PLENDY-SHARE横浜ベイ 309号室の設備
キッチン
冷蔵庫付
玄関
TVモニタ付インターホン
オートロック
宅配ボックス
収納
シューズボックス
バルコニー
バルコニー
ルーフバルコニー
室内設備
エアコン
フローリング
照明器具付
デザイナーズ
リノベーション済
位置・立地
2階以上
最上階
インフラ
都市ガス
建物設備
防犯カメラ
駐輪場
バイク置き場
ライフステージ
一人暮らしに人気の設備
家族に人気の設備
夫婦に人気の設備
三世代で人気の設備
こだわり
セキュリティ対策重視
外で子どもと遊びたい
洋室で暮らしたい
コスパ重視のリフォーム部屋
趣味
オークション・通販が好き
ガーデニングが好き
お得な条件
フリーレント
インターネット無料
PLENDY-SHARE横浜ベイ 309号室の賃貸契約情報
毎月支払う |
家賃3.5万円/月共益費- |
|---|---|
初期費用 |
敷金-礼金-保証金-敷引き償却金- |
更新料 |
35,000円 |
鍵交換費用 |
5,500円 |
室内清掃費用 |
- |
クリーニング費用(退去時払い) |
36,300円 |
駐車場料金 |
無 |
損保・ |
借家賠付きの火災保険にご加入いただきます。 |
保証会社 |
加入要 保証会社利用料:保証会社エポスまたはジェイリース※外国籍はナップ 初回保証料:月額総家賃の60%(外国籍の場合100%)、月額保証料:月額総家賃の1%(外国籍の場合2%)、更新料:入居2年目以降毎年10,000円 |
契約期間 |
2年 |
入居可能日 |
2026年03月上旬 |
フリーレント期間 |
2ヶ月 |
取引形態 |
一般媒介 |
備考 |
- |
PLENDY-SHARE横浜ベイ 309号室の建物情報
建物名称 |
PLENDY-SHARE横浜ベイ |
|---|---|
最寄駅 |
|
所在地 |
神奈川県横浜市金沢区富岡東 |
階層 |
3階部分(地上3階建) |
構造 |
RC |
築年数 |
1991年12月(築35年) |
駐車場 |
無 |
小学校学区 |
小田小学校 |
中学校学区 |
小田中学校 |
- 学区データについて
- ※学区データは必ずしも正確とは限りません。詳細に関しては最寄店舗または各自治体の教育委員会に必ずご確認ください。
無料この物件に問い合わせ
- PLENDY-SHARE横浜ベイ 309号室

-
3.5万円
(共益費
-)
- 敷
- -
- 礼
- -
- 保
- -
- 償
- -
PLENDY-SHARE横浜ベイ 309号室の物件のお問い合わせ先・取り扱い店舗
ハウスコム 金沢文庫店
- アクセス
-
京急本線「金沢文庫駅」東口徒歩1分
- 住所
- 〒236-0016 神奈川県横浜市金沢区谷津町373
- 営業時間
- 10:00~18:00
- 定休日
- 水曜日(年末年始は休業)
- 営業エリア
- 横浜市金沢区・磯子区・港南区・南区・栄区、横須賀市、逗子市、鎌倉市、葉山町
- 取引態様
- 賃貸仲介業










