北品川の完工年月(2007年3月)築の賃貸マンション ***号室(3階/2LDK)の賃貸物件(賃貸マンション)
東京都品川区にある北品川の完工年月(2007年3月)築の賃貸マンション ***号室はTVモニタ付インターホン、クローゼット、ウォークインクローゼット、床下暖房、インターネット可などが特徴です。最寄り駅の京急本線北品川駅から徒歩9分です。北品川の完工年月(2007年3月)築の賃貸マンション ***号室の詳細はハウスコム 五反田店までお気軽にお問い合わせください!
情報更新日:
次回更新予定日:
※次回更新予定日について:お店側では順次空室確認を行っていますが、次回更新予定日までに空室確認が行えない場合には、この物件情報は自動的に削除されます。
北品川の完工年月(2007年3月)築の賃貸マンション ***号室の賃貸物件部屋概要
家賃 |
39.5万円
初期費用を |
|---|---|
共益費 |
25,000円
入居可能時期 |
敷金/礼金 |
1ヶ月 / 1ヶ月 |
保証金/ |
- / - |
最寄駅 |
|
所在地 |
東京都品川区北品川 |
部屋番号 |
***号室 |
間取り |
2LDK(LDK16.4・洋7.8・洋6) |
専有面積 |
73.18㎡ |
築年数 |
2007年3月(築19年) |
階数 |
3階部分(地上3階地下1階建) |
方位・位置 |
北 / その他 |
物件種別 |
賃貸マンション |
構造 |
RC |
駐車場 |
33,000円 |
小学校学区 |
御殿山小学校 |
中学校学区 |
品川学園義務教育学校 |
他の空き部屋 |
ー |
- 学区データについて
- ※学区データは必ずしも正確とは限りません。詳細に関しては最寄店舗または各自治体の教育委員会に必ずご確認ください。
北品川の完工年月(2007年3月)築の賃貸マンション ***号室の特徴
-
一人暮らしに人気の設備

-
カップルに人気の設備

-
家族に人気の設備

-
夫婦に人気の設備

-
三世代で人気の設備

-
セキュリティ対策重視

-
外で子どもと遊びたい

-
雨の日でも洗濯したい

-
洋室で暮らしたい

-
料理が好き

-
服やおしゃれが好き

-
推し活グッズを飾りたい

-
ガーデニングが好き

契約条件
この物件は、2人入居もご契約できます。 また、ご契約時に保証人は不要です。
セキュリティ
この物件の建物には、オートロックや防犯カメラや宅配ボックスが設置されており、来客時には居室内のテレビモニターにて訪問者の顔を確認することができます。
室内設備
システムキッチンには、ガスコンロが備え付けられています。 お風呂とトイレは別です。お風呂には、追い焚き機能が備わっています。 トイレは、温水洗浄便座機能付きになります。 女性に嬉しい設備の独立した洗面化粧台があります。 洗濯に便利な設備として、室内洗濯機置場があります。浴室乾燥機も設置されているので、梅雨時の生乾き臭も比較的防ぐことができます。
居室状況
お部屋の床は、フローリングとなっており、エアコンと一部床下暖房が設置されています。 収納スペースとして、基本的な居室にクローゼットを設置、通常よりも収納力の高いウォークインクローゼットがあります。
建物設備共用部分
居室外の専有スペースとして、洗濯物を干すなどの用途として利用できるバルコニーがあります。 建物の共用スペースに、日々の出入に便利なエレベーターや、いざという時の防犯カメラや、急な外出や不在がちのご家庭の荷物受け取りに便利な宅配ボックスが設置されています。 駐輪場、バイク置き場が利用できます。
周辺施設
この物件の学区は、御殿山小学校区・品川学園義務教育学校区です。
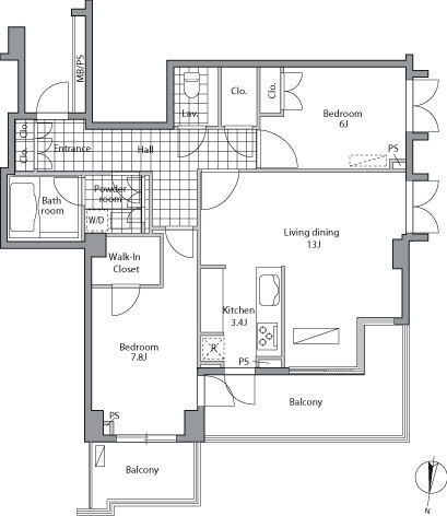
北品川の完工年月(2007年3月)築の賃貸マンション ***号室の間取り
間取り:2LDK
間取詳細:2LDK(LDK16.4・洋7.8・洋6)
専有面積:73.18㎡
方位:北
部屋位置:その他
北品川の完工年月(2007年3月)築の賃貸マンション ***号室の設備
キッチン
システムキッチン
カウンターキッチン
ガスコンロ
バス・トイレ
バス・トイレ別
追い焚き
浴室乾燥機
温水洗浄便座
独立洗面台
玄関
TVモニタ付インターホン
オートロック
宅配ボックス
収納
クローゼット
ウォークインクローゼット
バルコニー
バルコニー
ルーフバルコニー
室内設備
エアコン
フローリング
床下暖房
室内洗濯機置場
位置・立地
2階以上
最上階
インフラ
インターネット可
BS
CS
建物設備
エレベーター
防犯カメラ
駐輪場
バイク置き場
入居条件
2人入居可
オンライン相談可
オンライン内見可
保証人不要
ライフステージ
一人暮らしに人気の設備
カップルに人気の設備
家族に人気の設備
夫婦に人気の設備
三世代で人気の設備
こだわり
セキュリティ対策重視
外で子どもと遊びたい
雨の日でも洗濯したい
洋室で暮らしたい
趣味
料理が好き
服やおしゃれが好き
推し活グッズを飾りたい
ガーデニングが好き
北品川の完工年月(2007年3月)築の賃貸マンション ***号室の賃貸契約情報
毎月支払う |
家賃39.5万円/月共益費25,000円/月 |
|---|---|
初期費用 |
敷金1ヶ月 (39.5万円)礼金1ヶ月 (39.5万円)保証金-敷引き償却金- |
更新料 |
395,000円 |
鍵交換費用 |
22,000円 |
室内清掃費用 |
- |
入居者限定会員サービス会費/2年 |
11,000円 |
駐車場料金 |
33,000円 |
損保・ |
借家賠付きの火災保険にご加入いただきます。 |
保証会社 |
加入要 保証会社利用料:【IRS③】IUCレジデンシャルサポート |
契約期間 |
2年 |
入居可能日 |
相談 |
フリーレント期間 |
- |
取引形態 |
一般媒介 |
備考 |
- |
北品川の完工年月(2007年3月)築の賃貸マンション ***号室の建物情報
建物名称 |
北品川の完工年月(2007年3月)築の賃貸マンション |
|---|---|
最寄駅 |
|
所在地 |
東京都品川区北品川 |
階層 |
3階部分(地上3階地下1階建) |
構造 |
RC |
築年数 |
2007年3月(築19年) |
駐車場 |
33,000円 |
小学校学区 |
御殿山小学校 |
中学校学区 |
品川学園義務教育学校 |
- 学区データについて
- ※学区データは必ずしも正確とは限りません。詳細に関しては最寄店舗または各自治体の教育委員会に必ずご確認ください。
無料この物件に問い合わせ
- 北品川の完工年月(2007年3月)築の賃貸マンション ***号室

-
39.5万円
(共益費
25,000円)
- 敷
- 1ヶ月
- 礼
- 1ヶ月
- 保
- -
- 償
- -
北品川の完工年月(2007年3月)築の賃貸マンション ***号室の物件のお問い合わせ先・取り扱い店舗
ハウスコム 五反田店
- アクセス
-
山手線「五反田駅」東口徒歩1分
都営浅草線「五反田駅」A6出口より徒歩1分
- 住所
- 〒141-0022 東京都品川区東五反田1丁目12−12 落合ビル 2F
- 営業時間
- 10:00~18:00
- 定休日
- 水曜日
- 営業エリア
- 品川区,大田区,港区,目黒区
- 取引態様
- 賃貸仲介業











