クレイシアIDZ二子新地 403号室(4階/1DK)の賃貸物件(賃貸マンション)
神奈川県川崎市高津区にあるクレイシアIDZ二子新地 403号室は温水洗浄便座、オートロック、宅配ボックス、クローゼット、防犯カメラなどが特徴です。最寄り駅の東急田園都市線二子新地駅から徒歩5分です。クレイシアIDZ二子新地 403号室の詳細はハウスコム 自由が丘店までお気軽にお問い合わせください!
情報更新日:
次回更新予定日:
※次回更新予定日について:お店側では順次空室確認を行っていますが、次回更新予定日までに空室確認が行えない場合には、この物件情報は自動的に削除されます。
クレイシアIDZ二子新地 403号室の賃貸物件部屋概要
家賃 |
11.55万円
初期費用を |
|---|---|
共益費 |
12,000円
入居可能時期 |
敷金/礼金 |
1ヶ月 / 1ヶ月 |
保証金/ |
- / - |
最寄駅 |
|
所在地 |
神奈川県川崎市高津区二子 |
部屋番号 |
403号室 |
間取り |
1DK(洋3.1・DK5.9) |
専有面積 |
25.67㎡ |
築年数 |
2025年6月 |
階数 |
4階部分(地上7階建) |
方位・位置 |
東 / その他 |
物件種別 |
賃貸マンション |
構造 |
RC |
駐車場 |
- |
小学校学区 |
高津小学校 |
中学校学区 |
西高津中学校 |
他の空き部屋 |
ー |
- 学区データについて
- ※学区データは必ずしも正確とは限りません。詳細に関しては最寄店舗または各自治体の教育委員会に必ずご確認ください。
クレイシアIDZ二子新地 403号室の特徴
-
一人暮らしに人気の設備

-
カップルに人気の設備

-
家族に人気の設備

-
夫婦に人気の設備

-
三世代で人気の設備

-
外で子どもと遊びたい

-
雨の日でも洗濯したい

-
靴やスニーカーが好き

-
オークション・通販が好き

-
ガーデニングが好き

契約条件
この物件は、2人入居もご契約できます。
セキュリティ
この物件の建物には、オートロックや防犯カメラや宅配ボックスが設置されております。
室内設備
トイレは、温水洗浄便座機能付きになります。 洗濯に便利な設備として、浴室乾燥機も設置されているので、梅雨時の生乾き臭も比較的防ぐことができます。
居室状況
エアコンが設置されています。 インターネットも無料で入居後すぐ生活が始められます。 収納スペースとして、基本的な居室にクローゼットを設置、玄関にはシューズインクローゼットがあります。
建物設備共用部分
居室外の専有スペースとして、洗濯物を干すなどの用途として利用できるバルコニーがあります。 建物の共用スペースに、日々の出入に便利なエレベーターや、いざという時の防犯カメラや、急な外出や不在がちのご家庭の荷物受け取りに便利な宅配ボックスが設置されています。
周辺施設
この物件の学区は、高津小学校区・西高津中学校区です。
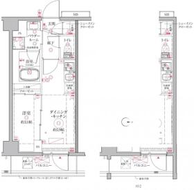
クレイシアIDZ二子新地 403号室の間取り
間取り:1DK
間取詳細:1DK(洋3.1・DK5.9)
専有面積:25.67㎡
方位:東
部屋位置:その他
クレイシアIDZ二子新地 403号室の設備
バス・トイレ
バス・トイレ別
浴室乾燥機
温水洗浄便座
玄関
オートロック
宅配ボックス
収納
クローゼット
シューズインクローゼット
バルコニー
バルコニー
ルーフバルコニー
室内設備
エアコン
位置・立地
2階以上
建物設備
エレベーター
防犯カメラ
入居条件
2人入居可
ライフステージ
一人暮らしに人気の設備
カップルに人気の設備
家族に人気の設備
夫婦に人気の設備
三世代で人気の設備
こだわり
外で子どもと遊びたい
雨の日でも洗濯したい
趣味
靴やスニーカーが好き
オークション・通販が好き
ガーデニングが好き
お得な条件
インターネット無料
クレイシアIDZ二子新地 403号室の賃貸契約情報
毎月支払う |
家賃11.55万円/月共益費12,000円/月 |
|---|---|
初期費用 |
敷金1ヶ月 (11.55万円)礼金1ヶ月 (11.55万円)保証金-敷引き償却金- |
更新料 |
115,500円 |
鍵交換費用 |
- |
室内清掃費用 |
- |
退去時エアコンクリーニング |
14,300円 |
カードキー発行 |
16,500円 |
退去時ハウスクリーニング |
55,000円 |
駐車場料金 |
- |
損保・ |
借家賠付きの火災保険にご加入いただきます。 |
保証会社 |
加入要 保証会社利用料:保証料(初回契約時)40%、保証料(年間)10,000円、その他プラン有(新日本信用保証の場合 口座振替手数料216円(税込)/月) |
契約期間 |
2年 |
入居可能日 |
2026年03月下旬 |
フリーレント期間 |
- |
取引形態 |
一般媒介 |
備考 |
- |
クレイシアIDZ二子新地 403号室の建物情報
建物名称 |
クレイシアIDZ二子新地 |
|---|---|
最寄駅 |
|
所在地 |
神奈川県川崎市高津区二子 |
階層 |
4階部分(地上7階建) |
構造 |
RC |
築年数 |
2025年6月 |
駐車場 |
- |
小学校学区 |
高津小学校 |
中学校学区 |
西高津中学校 |
- 学区データについて
- ※学区データは必ずしも正確とは限りません。詳細に関しては最寄店舗または各自治体の教育委員会に必ずご確認ください。
無料この物件に問い合わせ
- クレイシアIDZ二子新地 403号室

-
11.55万円
(共益費
12,000円)
- 敷
- 1ヶ月
- 礼
- 1ヶ月
- 保
- -
- 償
- -
クレイシアIDZ二子新地 403号室の物件のお問い合わせ先・取り扱い店舗
ハウスコム 自由が丘店
- アクセス
-
東急東横線「自由が丘駅」徒歩3分
東急大井町線「自由が丘駅」徒歩3分
- 住所
- 〒152-0035 東京都目黒区自由が丘1丁目14ー14 原田ビル1階
- 営業時間
- 10:00~18:00
- 定休日
- なし
- 営業エリア
- 世田谷区,大田区,目黒区
- 取引態様
- 賃貸仲介業













