エヴァーグリーン中野島 204号室(2階/1K)の賃貸物件(賃貸アパート)
神奈川県川崎市多摩区にあるエヴァーグリーン中野島 204号室は温水洗浄便座、クローゼット、照明器具付、デザイナーズ、防犯カメラなどが特徴です。最寄り駅の南武線中野島駅から徒歩3分です。エヴァーグリーン中野島 204号室の詳細はハウスコム 登戸店までお気軽にお問い合わせください!
情報更新日:
次回更新予定日:
※次回更新予定日について:お店側では順次空室確認を行っていますが、次回更新予定日までに空室確認が行えない場合には、この物件情報は自動的に削除されます。
エヴァーグリーン中野島 204号室の賃貸物件部屋概要
家賃 |
6.9万円
初期費用を |
|---|---|
共益費 |
5,000円
入居可能時期 |
敷金/礼金 |
- / - |
保証金/ |
- / - |
最寄駅 |
|
所在地 |
神奈川県川崎市多摩区中野島 |
部屋番号 |
204号室 |
間取り |
1K(洋5.6) |
専有面積 |
20.01㎡ |
築年数 |
2022年10月(築4年) |
階数 |
2階部分(地上2階建) |
方位・位置 |
南 / その他 |
物件種別 |
賃貸アパート |
構造 |
木造 |
駐車場 |
無 |
小学校学区 |
中野島小学校 |
中学校学区 |
中野島中学校 |
他の空き部屋 |
ー |
- 学区データについて
- ※学区データは必ずしも正確とは限りません。詳細に関しては最寄店舗または各自治体の教育委員会に必ずご確認ください。
エヴァーグリーン中野島 204号室の特徴
契約条件
法人契約・事務所のご利用もご相談ください。 敷金と礼金が無料なため、初期費用が比較的安くなる傾向にあります。
セキュリティ
この物件の建物には、防犯カメラが設置されており、来客時には居室内のテレビモニターにて訪問者の顔を確認することができます。
室内設備
IHコンロが備え付けられています。 トイレは、温水洗浄便座機能付きになります。 女性に嬉しい設備の独立した洗面化粧台があります。 洗濯に便利な設備として、浴室乾燥機も設置されているので、梅雨時の生乾き臭も比較的防ぐことができます。
居室状況
居室には、ロフトが設置されており大規模な収納スペースやセパレートされた寝室として活用できます。 エアコンが設置されています。 照明器具が備え付けられており、インターネットも無料で入居後すぐ生活が始められます。 収納スペースとして、基本的な居室にクローゼットを設置、玄関にはシューズボックスがあります。
建物設備共用部分
建物の共用スペースに、いざという時の防犯カメラが設置されています。
周辺施設
この物件の学区は、中野島小学校区・中野島中学校区です。
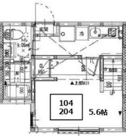
エヴァーグリーン中野島 204号室の間取り
間取り:1K
間取詳細:1K(洋5.6)
専有面積:20.01㎡
方位:南
部屋位置:その他
エヴァーグリーン中野島 204号室の設備
キッチン
IHコンロ
バス・トイレ
バス・トイレ別
浴室乾燥機
温水洗浄便座
独立洗面台
玄関
TVモニタ付インターホン
収納
クローゼット
シューズボックス
室内設備
エアコン
ロフト付
照明器具付
デザイナーズ
位置・立地
2階以上
最上階
南向き
インフラ
インターネット可
プロパンガス
建物設備
防犯カメラ
入居条件
事務所可・相談
ライフステージ
一人暮らしに人気の設備
カップルに人気の設備
家族に人気の設備
夫婦に人気の設備
三世代で人気の設備
こだわり
雨の日でも洗濯したい
寝るためだけの部屋
お得な条件
インターネット無料
エヴァーグリーン中野島 204号室の賃貸契約情報
毎月支払う |
家賃6.9万円/月共益費5,000円/月 |
|---|---|
初期費用 |
敷金-礼金-保証金-敷引き償却金- |
更新料 |
69,000円 |
鍵交換費用 |
29,700円 |
室内清掃費用 |
- |
トラサポまもろっか(2年) |
19,800円 |
駐車場料金 |
無 |
損保・ |
借家賠付きの火災保険にご加入いただきます。 |
保証会社 |
加入要 保証会社利用料:初回60%月額1.5% |
契約期間 |
2年 |
入居可能日 |
2026年04月上旬 |
フリーレント期間 |
- |
取引形態 |
一般媒介 |
備考 |
- |
エヴァーグリーン中野島 204号室の建物情報
建物名称 |
エヴァーグリーン中野島 |
|---|---|
最寄駅 |
|
所在地 |
神奈川県川崎市多摩区中野島 |
階層 |
2階部分(地上2階建) |
構造 |
木造 |
築年数 |
2022年10月(築4年) |
駐車場 |
無 |
小学校学区 |
中野島小学校 |
中学校学区 |
中野島中学校 |
- 学区データについて
- ※学区データは必ずしも正確とは限りません。詳細に関しては最寄店舗または各自治体の教育委員会に必ずご確認ください。
無料この物件に問い合わせ
- エヴァーグリーン中野島 204号室

-
6.9万円
(共益費
5,000円)
- 敷
- -
- 礼
- -
- 保
- -
- 償
- -
エヴァーグリーン中野島 204号室の物件のお問い合わせ先・取り扱い店舗
ハウスコム 登戸店
- アクセス
-
小田急小田原線「登戸駅」徒歩2分
南武線「登戸駅」徒歩1分
- 住所
- 〒214-0014 神奈川県川崎市多摩区登戸3414-2 DESIRE登戸3階
- 営業時間
- 10:00~18:00
- 定休日
- 水曜日
- 営業エリア
- 神奈川県川崎市(多摩区・麻生区・高津区)、東京都狛江市・稲城市・調布市
- 取引態様
- 賃貸仲介業






















