ザ・パークハビオ神泉 406号室(4階/1K)の賃貸物件(賃貸マンション)
東京都目黒区にあるザ・パークハビオ神泉 406号室は追い焚き、エアコン、インターネット可、ペット可・相談、オンライン相談可などが特徴です。最寄り駅の京王井の頭線神泉駅から徒歩7分です。ザ・パークハビオ神泉 406号室の詳細はハウスコム 渋谷店までお気軽にお問い合わせください!
情報更新日:
次回更新予定日:
※次回更新予定日について:お店側では順次空室確認を行っていますが、次回更新予定日までに空室確認が行えない場合には、この物件情報は自動的に削除されます。
ザ・パークハビオ神泉 406号室の賃貸物件部屋概要
家賃 |
14.8万円
初期費用を |
|---|---|
共益費 |
13,000円
入居可能時期 |
敷金/礼金 |
1ヶ月 / 1ヶ月 |
保証金/ |
- / - |
最寄駅 |
|
所在地 |
東京都目黒区駒場 |
部屋番号 |
406号室 |
間取り |
1K(洋7) |
専有面積 |
26.47㎡ |
築年数 |
2021年5月(築5年) |
階数 |
4階部分(地上7階地下1階建) |
方位・位置 |
東 / その他 |
物件種別 |
賃貸マンション |
構造 |
RC |
駐車場 |
- |
小学校学区 |
駒場小学校 |
中学校学区 |
第一中学校 |
他の空き部屋 |
210号室 210号室 304号室 304号室 307号室 307号室 318号室 318号室 406号室 410号室 410号室 503号室 503号室 |
- 学区データについて
- ※学区データは必ずしも正確とは限りません。詳細に関しては最寄店舗または各自治体の教育委員会に必ずご確認ください。
ザ・パークハビオ神泉 406号室の特徴
-
一人暮らしに人気の設備

-
カップルに人気の設備

-
家族に人気の設備

-
夫婦に人気の設備

-
三世代で人気の設備

-
セキュリティ対策重視

-
外で子どもと遊びたい

-
雨の日でも洗濯したい

-
洋室で暮らしたい

-
服やおしゃれが好き

-
ガーデニングが好き

契約条件
ペットの飼育や楽器演奏、法人契約・事務所のご利用もご相談ください。 また、ご契約時に保証人は不要です。
セキュリティ
この物件の建物には、オートロックや防犯カメラや宅配ボックスが設置されており、来客時には居室内のテレビモニターにて訪問者の顔を確認することができます。
室内設備
システムキッチンには、2つ以上のガスコンロが備え付けられています。 お風呂とトイレは別です。お風呂には、追い焚き機能が備わっています。 トイレは、温水洗浄便座機能付きになります。 女性に嬉しい設備の独立した洗面化粧台があります。 洗濯に便利な設備として、室内洗濯機置場があります。浴室乾燥機も設置されているので、梅雨時の生乾き臭も比較的防ぐことができます。
居室状況
お部屋の床は、フローリングとなっており、エアコンが設置されています。 照明器具が備え付けられており、入居後すぐ生活が始められます。 収納スペースとして、通常よりも収納力の高いウォークインクローゼット、玄関にはシューズボックスがあります。
建物設備共用部分
居室外の専有スペースとして、洗濯物を干すなどの用途として利用できるバルコニーがあります。 建物の共用スペースに、日々の出入に便利なエレベーターや、いざという時の防犯カメラや、急な外出や不在がちのご家庭の荷物受け取りに便利な宅配ボックスが設置されています。
周辺施設
この物件の学区は、駒場小学校区・第一中学校区です。
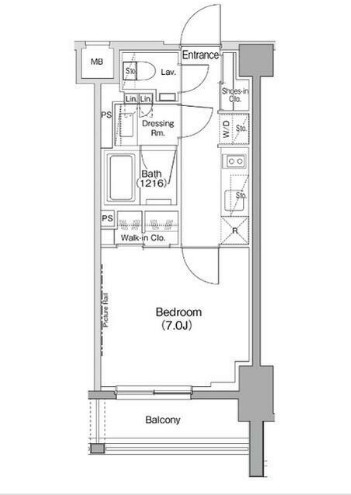
ザ・パークハビオ神泉 406号室の間取り
間取り:1K
間取詳細:1K(洋7)
専有面積:26.47㎡
方位:東
部屋位置:その他
ザ・パークハビオ神泉 406号室の設備
キッチン
システムキッチン
ガスコンロ
ガスコンロ二口以上
バス・トイレ
バス・トイレ別
追い焚き
浴室乾燥機
温水洗浄便座
独立洗面台
玄関
TVモニタ付インターホン
オートロック
宅配ボックス
収納
ウォークインクローゼット
シューズボックス
バルコニー
バルコニー
ルーフバルコニー
室内設備
エアコン
フローリング
室内洗濯機置場
照明器具付
位置・立地
2階以上
インフラ
インターネット可
BS
CS
都市ガス
建物設備
エレベーター
防犯カメラ
入居条件
ペット可・相談
楽器可・相談
事務所可・相談
オンライン相談可
オンライン内見可
保証人不要
即入居可
ライフステージ
一人暮らしに人気の設備
カップルに人気の設備
家族に人気の設備
夫婦に人気の設備
三世代で人気の設備
こだわり
セキュリティ対策重視
外で子どもと遊びたい
雨の日でも洗濯したい
洋室で暮らしたい
趣味
服やおしゃれが好き
ガーデニングが好き
ザ・パークハビオ神泉 406号室の賃貸契約情報
毎月支払う |
家賃14.8万円/月共益費13,000円/月 |
|---|---|
初期費用 |
敷金1ヶ月 (14.8万円)礼金1ヶ月 (14.8万円)保証金-敷引き償却金- |
更新料 |
148,000円 |
鍵交換費用 |
33,000円 |
室内清掃費用 |
- |
駐車場料金 |
- |
損保・ |
借家賠付きの火災保険にご加入いただきます。 |
保証会社 |
加入要 保証会社:SBIギャランティ 保証会社利用料:初回保証委託料:月額賃料等総額の40% 2年目以降:1年毎8000円 |
契約期間 |
2年 |
入居可能日 |
即入居可 |
フリーレント期間 |
- |
取引形態 |
一般媒介 |
備考 |
駐輪場:有料 ペット飼育時敷金積み増し料金(償却)有り |
ザ・パークハビオ神泉 406号室の建物情報
建物名称 |
ザ・パークハビオ神泉 |
|---|---|
最寄駅 |
|
所在地 |
東京都目黒区駒場 |
階層 |
4階部分(地上7階地下1階建) |
構造 |
RC |
築年数 |
2021年5月(築5年) |
駐車場 |
- |
小学校学区 |
駒場小学校 |
中学校学区 |
第一中学校 |
- 学区データについて
- ※学区データは必ずしも正確とは限りません。詳細に関しては最寄店舗または各自治体の教育委員会に必ずご確認ください。
無料この物件に問い合わせ
- ザ・パークハビオ神泉 406号室

-
14.8万円
(共益費
13,000円)
- 敷
- 1ヶ月
- 礼
- 1ヶ月
- 保
- -
- 償
- -
ザ・パークハビオ神泉 406号室の物件のお問い合わせ先・取り扱い店舗
ハウスコム 渋谷店
- アクセス
-
山手線「渋谷駅」徒歩1分
- 住所
- 〒150-0043 東京都渋谷区道玄坂2-30-4 玉久ビル6階
- 営業時間
- 10:00~18:00
- 定休日
- 火曜日・水曜日(年末年始休業)
- 営業エリア
- 主に渋谷区、港区、世田谷区、目黒区(その他地域もご紹介可能です)
- 取引態様
- 賃貸仲介業
























