フィールA渋谷 1209号室(12階/1K)の賃貸物件(賃貸マンション)
東京都渋谷区にあるフィールA渋谷 1209号室はTVモニタ付インターホン、オートロック、シューズボックス、バルコニー、CSなどが特徴です。最寄り駅の東京メトロ 半蔵門線渋谷駅から徒歩5分です。フィールA渋谷 1209号室の詳細はハウスコム 明大前店までお気軽にお問い合わせください!
情報更新日:
次回更新予定日:
※次回更新予定日について:お店側では順次空室確認を行っていますが、次回更新予定日までに空室確認が行えない場合には、この物件情報は自動的に削除されます。
フィールA渋谷 1209号室の賃貸物件部屋概要
家賃 |
22万円
初期費用を |
|---|---|
共益費 |
20,000円
入居可能時期 |
敷金/礼金 |
- / 1ヶ月 |
保証金/ |
- / - |
最寄駅 |
|
所在地 |
東京都渋谷区円山町 |
部屋番号 |
1209号室 |
間取り |
1K(洋14.6・K2.3) |
専有面積 |
41.38㎡ |
築年数 |
2004年2月(築22年) |
階数 |
12階部分(地上14階地下1階建) |
方位・位置 |
南東 / 角部屋 |
物件種別 |
賃貸マンション |
構造 |
RC |
駐車場 |
- |
小学校学区 |
神南小学校 |
中学校学区 |
松濤中学校 |
他の空き部屋 |
ー |
- 学区データについて
- ※学区データは必ずしも正確とは限りません。詳細に関しては最寄店舗または各自治体の教育委員会に必ずご確認ください。
フィールA渋谷 1209号室の特徴
契約条件
この物件は、2人入居やルームシェアもご契約できます。 敷金が無料なため、初期費用が比較的安くなる傾向にあります。
セキュリティ
この物件の建物には、オートロックや防犯カメラや宅配ボックスが設置されており、来客時には居室内のテレビモニターにて訪問者の顔を確認することができます。
室内設備
システムキッチンが備え付けられています。
居室状況
収納スペースとして、基本的な居室にクローゼットを設置、玄関にはシューズボックスがあります。
建物設備共用部分
居室外の専有スペースとして、洗濯物を干すなどの用途として利用できるバルコニーがあります。 建物の共用スペースに、いざという時の防犯カメラや、急な外出や不在がちのご家庭の荷物受け取りに便利な宅配ボックスや、居室内を常に清潔に保てる24時間利用可能なゴミ捨て置き場が設置されています。
周辺施設
この物件の学区は、神南小学校区・松濤中学校区です。
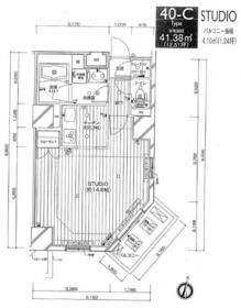
フィールA渋谷 1209号室の間取り
間取り:1K
間取詳細:1K(洋14.6・K2.3)
専有面積:41.38㎡
方位:南東
部屋位置:角部屋
フィールA渋谷 1209号室の設備
キッチン
システムキッチン
バス・トイレ
バス・トイレ別
玄関
TVモニタ付インターホン
オートロック
宅配ボックス
収納
クローゼット
シューズボックス
バルコニー
バルコニー
ルーフバルコニー
位置・立地
2階以上
角部屋
インフラ
BS
CS
建物設備
防犯カメラ
24時間ゴミ出しOK
入居条件
2人入居可
ルームシェア可・相談
ライフステージ
一人暮らしに人気の設備
カップルに人気の設備
家族に人気の設備
夫婦に人気の設備
三世代で人気の設備
こだわり
セキュリティ対策重視
外で子どもと遊びたい
趣味
ガーデニングが好き
フィールA渋谷 1209号室の賃貸契約情報
毎月支払う |
家賃22万円/月共益費20,000円/月 |
|---|---|
初期費用 |
敷金-礼金1ヶ月 (22万円)保証金-敷引き償却金- |
更新料 |
330,000円 |
鍵交換費用 |
- |
室内清掃費用 |
- |
ハウスクリーニング費用(退去時請求) |
55,000円 |
退去時鍵交換費用(契約時請求) |
29,700円 |
AMLクラブサポート費用(契約時請求) |
16,500円 |
駐車場料金 |
- |
損保・ |
借家賠付きの火災保険にご加入いただきます。 |
保証会社 |
加入要 保証会社利用料:家賃総額より50%~ |
契約期間 |
2年 |
入居可能日 |
2026年02月中旬 |
フリーレント期間 |
- |
取引形態 |
一般媒介 |
備考 |
- |
フィールA渋谷 1209号室の建物情報
建物名称 |
フィールA渋谷 |
|---|---|
最寄駅 |
|
所在地 |
東京都渋谷区円山町 |
階層 |
12階部分(地上14階地下1階建) |
構造 |
RC |
築年数 |
2004年2月(築22年) |
駐車場 |
- |
小学校学区 |
神南小学校 |
中学校学区 |
松濤中学校 |
- 学区データについて
- ※学区データは必ずしも正確とは限りません。詳細に関しては最寄店舗または各自治体の教育委員会に必ずご確認ください。
無料この物件に問い合わせ
- フィールA渋谷 1209号室

-
22万円
(共益費
20,000円)
- 敷
- -
- 礼
- 1ヶ月
- 保
- -
- 償
- -
フィールA渋谷 1209号室の物件のお問い合わせ先・取り扱い店舗
ハウスコム 明大前店
- アクセス
-
京王線「明大前駅」中央口徒歩1分
京王井の頭線「明大前駅」中央口徒歩1分
- 住所
- 〒156-0043 東京都世田谷区松原2丁目44−1 グランシーン明大前 1階
- 営業時間
- 10:00~18:00
- 定休日
- なし
- 営業エリア
- 世田谷区・杉並区・渋谷区・中野区・新宿区・三鷹市・調布市
- 取引態様
- 賃貸仲介業






















