アーバイル目白台 1002号室(10階/1K)の賃貸物件(賃貸マンション)
東京都豊島区にあるアーバイル目白台 1002号室はバス・トイレ別、シューズボックス、インターネット可、駐輪場、オンライン相談可などが特徴です。最寄り駅の東京メトロ 有楽町線護国寺駅から徒歩8分です。アーバイル目白台 1002号室の詳細はハウスコム 池袋西口店までお気軽にお問い合わせください!
情報更新日:
次回更新予定日:
※次回更新予定日について:お店側では順次空室確認を行っていますが、次回更新予定日までに空室確認が行えない場合には、この物件情報は自動的に削除されます。
アーバイル目白台 1002号室の賃貸物件部屋概要
家賃 |
9.4万円
初期費用を |
|---|---|
共益費 |
5,000円
入居可能時期 |
敷金/礼金 |
- / 1ヶ月 |
保証金/ |
- / - |
最寄駅 |
|
所在地 |
東京都豊島区雑司が谷 |
部屋番号 |
1002号室 |
間取り |
1K(洋7.3) |
専有面積 |
22.05㎡ |
築年数 |
2003年11月(築23年) |
階数 |
10階部分(地上11階建) |
方位・位置 |
南西 / その他 |
物件種別 |
賃貸マンション |
構造 |
SRC |
駐車場 |
- |
小学校学区 |
ー |
中学校学区 |
ー |
他の空き部屋 |
ー |
- 学区データについて
- ※学区データは必ずしも正確とは限りません。詳細に関しては最寄店舗または各自治体の教育委員会に必ずご確認ください。
アーバイル目白台 1002号室の特徴
契約条件
ペットの飼育もご相談ください。 敷金が無料なため、初期費用が比較的安くなる傾向にあります。
セキュリティ
この物件の建物には、オートロックや宅配ボックスが設置されており、来客時には居室内のテレビモニターにて訪問者の顔を確認することができます。
室内設備
システムキッチンが備え付けられています。 洗濯に便利な設備として、室内洗濯機置場があります。
居室状況
お部屋の床は、フローリングとなっており、エアコンが設置されています。 収納スペースとして、基本的な居室にクローゼットを設置、玄関にはシューズボックスがあります。
建物設備共用部分
居室外の専有スペースとして、洗濯物を干すなどの用途として利用できるバルコニーがあります。 建物の共用スペースに、日々の出入に便利なエレベーターや、急な外出や不在がちのご家庭の荷物受け取りに便利な宅配ボックスが設置されています。 駐輪場が利用できます。
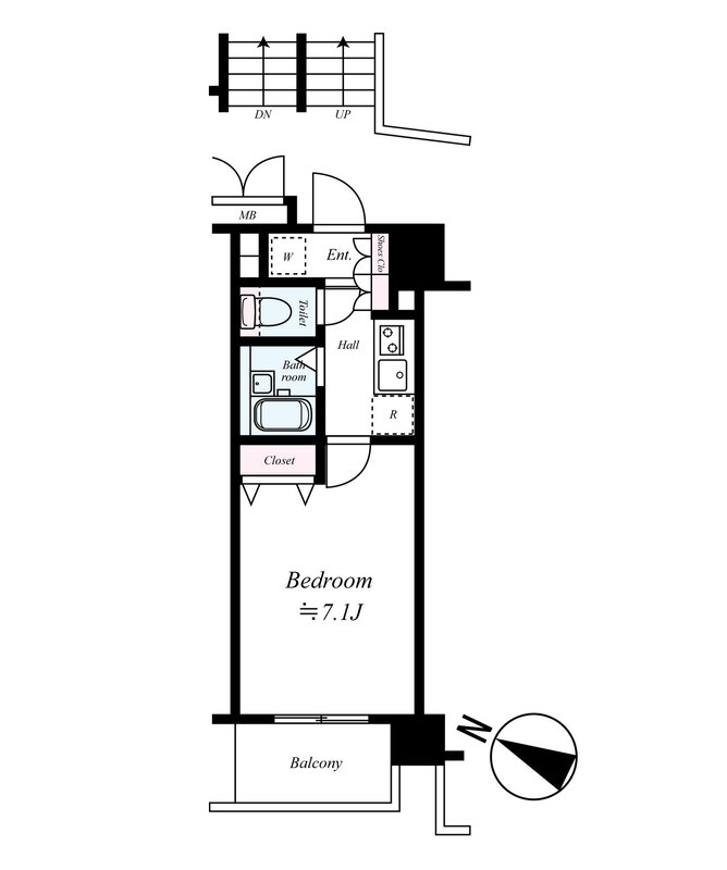
アーバイル目白台 1002号室の間取り
間取り:1K
間取詳細:1K(洋7.3)
専有面積:22.05㎡
方位:南西
部屋位置:その他
アーバイル目白台 1002号室の設備
キッチン
システムキッチン
バス・トイレ
バス・トイレ別
玄関
TVモニタ付インターホン
オートロック
宅配ボックス
収納
クローゼット
シューズボックス
バルコニー
バルコニー
ルーフバルコニー
室内設備
エアコン
フローリング
室内洗濯機置場
位置・立地
2階以上
インフラ
インターネット可
都市ガス
建物設備
エレベーター
駐輪場
分譲賃貸
入居条件
ペット可・相談
オンライン相談可
ライフステージ
一人暮らしに人気の設備
カップルに人気の設備
家族に人気の設備
夫婦に人気の設備
三世代で人気の設備
こだわり
外で子どもと遊びたい
雨の日でも洗濯したい
洋室で暮らしたい
趣味
ガーデニングが好き
アーバイル目白台 1002号室の賃貸契約情報
毎月支払う |
家賃9.4万円/月共益費5,000円/月 |
|---|---|
初期費用 |
敷金-礼金1ヶ月 (9.4万円)保証金-敷引き償却金- |
更新料 |
94,000円 |
鍵交換費用 |
33,000円 |
室内清掃費用 |
70,000円 |
抗菌代 |
16,500円 |
24時間サポート |
16,500円 |
リノシークラブ |
22,000円 |
駐車場料金 |
- |
損保・ |
借家賠付きの火災保険にご加入いただきます。 |
保証会社 |
加入要 保証会社利用料:初回保証料:総賃料の50% (年間保証料:15,000円) 引落手数料:330円/月 |
契約期間 |
2年 |
入居可能日 |
2026年04月 |
フリーレント期間 |
- |
取引形態 |
一般媒介 |
備考 |
保険:22000円/2年間 短期解約違約金(1年未満で1か月、半年未満で2か月分) ペット飼育可能(保証金1ヶ月償却) |
アーバイル目白台 1002号室の建物情報
建物名称 |
アーバイル目白台 |
|---|---|
最寄駅 |
|
所在地 |
東京都豊島区雑司が谷 |
階層 |
10階部分(地上11階建) |
構造 |
SRC |
築年数 |
2003年11月(築23年) |
駐車場 |
- |
小学校学区 |
ー |
中学校学区 |
ー |
- 学区データについて
- ※学区データは必ずしも正確とは限りません。詳細に関しては最寄店舗または各自治体の教育委員会に必ずご確認ください。
無料この物件に問い合わせ
- アーバイル目白台 1002号室

-
9.4万円
(共益費
5,000円)
- 敷
- -
- 礼
- 1ヶ月
- 保
- -
- 償
- -
アーバイル目白台 1002号室の物件のお問い合わせ先・取り扱い店舗
ハウスコム 池袋西口店
- アクセス
-
山手線「池袋駅」西口徒歩1分
東京メトロ 丸ノ内線「池袋駅」D11出口徒歩1分
- 住所
- 〒171-0021 東京都豊島区西池袋1丁目19−6 松長ビル 2階
- 営業時間
- 10:00~18:00
- 定休日
- なし
- 営業エリア
- 豊島区 板橋区 新宿区 練馬区 文京区
- 取引態様
- 賃貸仲介業























