新宿7丁目戸建て ***号室(1階/1LDK)の賃貸物件(賃貸一戸建て)
東京都新宿区にある新宿7丁目戸建て ***号室は専用庭付、室内洗濯機置場、ロフト付、1階、駐輪場などが特徴です。最寄り駅の都営大江戸線東新宿駅から徒歩8分です。新宿7丁目戸建て ***号室の詳細はハウスコム 高田馬場店までお気軽にお問い合わせください!
情報更新日:
次回更新予定日:
※次回更新予定日について:お店側では順次空室確認を行っていますが、次回更新予定日までに空室確認が行えない場合には、この物件情報は自動的に削除されます。
新宿7丁目戸建て ***号室の賃貸物件部屋概要
家賃 |
32万円
初期費用を |
|---|---|
共益費 |
10,000円
入居可能時期 |
敷金/礼金 |
1ヶ月 / 1ヶ月 |
保証金/ |
- / 1ヶ月 |
最寄駅 |
|
所在地 |
東京都新宿区新宿 |
部屋番号 |
***号室 |
間取り |
1LDK |
専有面積 |
78.27㎡ |
築年数 |
2005年5月(築21年) |
階数 |
1階部分(地上2階建) |
方位・位置 |
北西 / その他 |
物件種別 |
賃貸一戸建て |
構造 |
木造 |
駐車場 |
- |
小学校学区 |
天神小学校 |
中学校学区 |
新宿中学校 |
他の空き部屋 |
ー |
- 学区データについて
- ※学区データは必ずしも正確とは限りません。詳細に関しては最寄店舗または各自治体の教育委員会に必ずご確認ください。
新宿7丁目戸建て ***号室の特徴
-
一人暮らしに人気の設備

-
カップルに人気の設備

-
家族に人気の設備

-
夫婦に人気の設備

-
三世代で人気の設備

-
外で子どもと遊びたい

-
雨の日でも洗濯したい

-
緑のある環境が好き

-
ガーデニングが好き

-
家庭菜園が好き

室内設備
洗濯に便利な設備として、室内洗濯機置場があります。
居室状況
居室には、ロフトが設置されており大規模な収納スペースやセパレートされた寝室として活用できます。
建物設備共用部分
居室外の専有スペースとして、入居者専用の庭があり、家庭菜園や簡単なお庭遊びが楽しめます。 駐輪場が利用できます。
周辺施設
この物件の学区は、天神小学校区・新宿中学校区です。
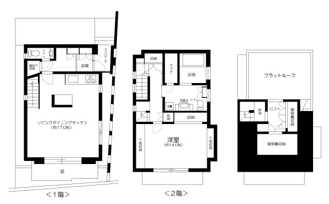
新宿7丁目戸建て ***号室の間取り
間取り:1LDK
間取詳細:1LDK
専有面積:78.27㎡
方位:北西
部屋位置:その他
新宿7丁目戸建て ***号室の設備
バス・トイレ
バス・トイレ別
バルコニー
専用庭付
室内設備
室内洗濯機置場
ロフト付
位置・立地
1階
インフラ
インターネット可
建物設備
駐輪場
ライフステージ
一人暮らしに人気の設備
カップルに人気の設備
家族に人気の設備
夫婦に人気の設備
三世代で人気の設備
こだわり
外で子どもと遊びたい
雨の日でも洗濯したい
趣味
緑のある環境が好き
ガーデニングが好き
家庭菜園が好き
新宿7丁目戸建て ***号室の賃貸契約情報
毎月支払う |
家賃32万円/月共益費10,000円/月 |
|---|---|
初期費用 |
敷金1ヶ月 (32万円)礼金1ヶ月 (32万円)保証金-敷引き償却金1ヶ月 |
更新料 |
320,000円 |
鍵交換費用 |
44,000円 |
室内清掃費用 |
- |
入居者サポート料 |
22,000円 |
駐車場料金 |
- |
損保・ |
借家賠付きの火災保険にご加入いただきます。 |
保証会社 |
加入要 保証会社利用料:当社指定の保証会社をご利用頂くことが契約条件となります。 |
契約期間 |
定期借家 5年 |
入居可能日 |
相談 |
フリーレント期間 |
- |
取引形態 |
一般媒介 |
備考 |
- |
新宿7丁目戸建て ***号室の建物情報
建物名称 |
新宿7丁目戸建て |
|---|---|
最寄駅 |
|
所在地 |
東京都新宿区新宿 |
階層 |
1階部分(地上2階建) |
構造 |
木造 |
築年数 |
2005年5月(築21年) |
駐車場 |
- |
小学校学区 |
天神小学校 |
中学校学区 |
新宿中学校 |
- 学区データについて
- ※学区データは必ずしも正確とは限りません。詳細に関しては最寄店舗または各自治体の教育委員会に必ずご確認ください。
無料この物件に問い合わせ
- 新宿7丁目戸建て ***号室

-
32万円
(共益費
10,000円)
- 敷
- 1ヶ月
- 礼
- 1ヶ月
- 保
- -
- 償
- 1ヶ月
新宿7丁目戸建て ***号室の物件のお問い合わせ先・取り扱い店舗
ハウスコム 高田馬場店
駅徒歩5分以内
土日営業
女性スタッフ在籍
- アクセス
-
山手線「高田馬場駅」徒歩5分
- 住所
- 〒169-0075 東京都新宿区高田馬場1-17-18 マルシメビル1階
- 営業時間
- 10:00~18:00
- 定休日
- 水曜日
- 営業エリア
- 新宿区 豊島区 杉並区 中野区 文京区
- 取引態様
- 賃貸仲介業
お問い合わせNo. HC5-5371175-1-0227

