ドリーム名東 2B号室(2階/2LDK)の賃貸物件(賃貸マンション)
愛知県名古屋市名東区にあるドリーム名東 2B号室は独立洗面台、エアコン、2階以上、エレベーター、駐輪場などが特徴です。最寄り駅の名古屋市営地下鉄 東山線一社駅から徒歩13分です。ドリーム名東 2B号室の詳細はハウスコム 藤が丘店までお気軽にお問い合わせください!
情報更新日:
次回更新予定日:
※次回更新予定日について:お店側では順次空室確認を行っていますが、次回更新予定日までに空室確認が行えない場合には、この物件情報は自動的に削除されます。
ドリーム名東 2B号室の賃貸物件部屋概要
家賃 |
8万円
初期費用を |
|---|---|
共益費 |
5,000円
入居可能時期 |
敷金/礼金 |
- / - |
保証金/ |
- / - |
最寄駅 |
|
所在地 |
愛知県名古屋市名東区名東本通 |
部屋番号 |
2B号室 |
間取り |
2LDK |
専有面積 |
58.61㎡ |
築年数 |
1987年11月(築39年) |
階数 |
2階部分(地上7階建) |
方位・位置 |
ー / その他 |
物件種別 |
賃貸マンション |
構造 |
RC |
駐車場 |
12,100円 |
小学校学区 |
名東小学校 |
中学校学区 |
神丘中学校 |
他の空き部屋 |
2A号室 2C号室 3C号室 4C号室 6C号室 7A号室 |
- 学区データについて
- ※学区データは必ずしも正確とは限りません。詳細に関しては最寄店舗または各自治体の教育委員会に必ずご確認ください。
ドリーム名東 2B号室の特徴
契約条件
敷金と礼金が無料なため、初期費用が比較的安くなる傾向にあります。
室内設備
女性に嬉しい設備の独立した洗面化粧台があります。 洗濯に便利な設備として、室内洗濯機置場があります。
居室状況
エアコンが設置されています。
建物設備共用部分
建物の共用スペースに、日々の出入に便利なエレベーターが設置されています。 駐輪場、バイク置き場が利用できます。
周辺施設
この物件の学区は、名東小学校区・神丘中学校区です。
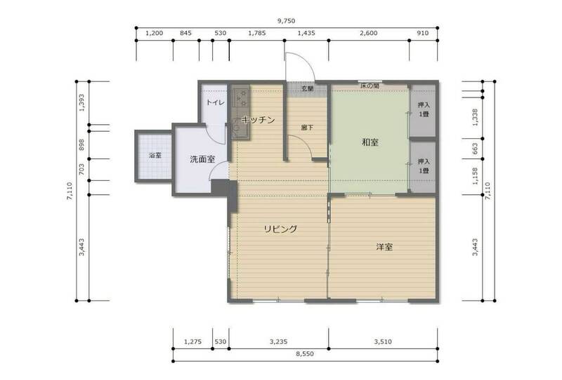
ドリーム名東 2B号室の間取り
間取り:2LDK
間取詳細:2LDK
専有面積:58.61㎡
方位:ー
部屋位置:その他
ドリーム名東 2B号室の設備
バス・トイレ
バス・トイレ別
独立洗面台
室内設備
エアコン
室内洗濯機置場
位置・立地
2階以上
インフラ
都市ガス
建物設備
エレベーター
駐輪場
バイク置き場
ライフステージ
一人暮らしに人気の設備
カップルに人気の設備
家族に人気の設備
夫婦に人気の設備
三世代で人気の設備
こだわり
雨の日でも洗濯したい
ドリーム名東 2B号室の賃貸契約情報
毎月支払う |
家賃8万円/月共益費5,000円/月 |
|---|---|
初期費用 |
敷金-礼金-保証金-敷引き償却金- |
更新料 |
- |
鍵交換費用 |
22,000円 |
室内清掃費用 |
- |
更新事務手数料 |
16,500円 |
駐車場料金 |
12,100円 |
損保・ |
借家賠付きの火災保険にご加入いただきます。 |
保証会社 |
加入要 保証会社利用料:K-net株式会社 |
契約期間 |
2年 |
入居可能日 |
2026年03月上旬 |
フリーレント期間 |
- |
取引形態 |
一般媒介 |
備考 |
- |
ドリーム名東 2B号室の建物情報
建物名称 |
ドリーム名東 |
|---|---|
最寄駅 |
|
所在地 |
愛知県名古屋市名東区名東本通 |
階層 |
2階部分(地上7階建) |
構造 |
RC |
築年数 |
1987年11月(築39年) |
駐車場 |
12,100円 |
小学校学区 |
名東小学校 |
中学校学区 |
神丘中学校 |
1/2 外観
- 学区データについて
- ※学区データは必ずしも正確とは限りません。詳細に関しては最寄店舗または各自治体の教育委員会に必ずご確認ください。
無料この物件に問い合わせ
- ドリーム名東 2B号室

-
8万円
(共益費
5,000円)
- 敷
- -
- 礼
- -
- 保
- -
- 償
- -
ドリーム名東 2B号室の物件のお問い合わせ先・取り扱い店舗
ハウスコム 藤が丘店
駅徒歩3分以内
駅徒歩5分以内
土日営業
- アクセス
-
名古屋市営地下鉄 東山線「藤が丘駅」徒歩2分
- 住所
- 〒465-0033 愛知県名古屋市名東区明が丘123−2 第一明が丘ビル 1階
- 営業時間
- 10:00~18:00
- 定休日
- 水曜日
- 営業エリア
- 名東区,長久手市,日進市,尾張旭市,瀬戸市、守山区
- 取引態様
- 賃貸仲介業
お問い合わせNo. HC5-5373167-2B-0059










