ザ・パークハウス南行徳レジデンス 606号室(6階/4LDK)の賃貸物件(賃貸マンション)
千葉県市川市にあるザ・パークハウス南行徳レジデンス 606号室はバス・トイレ別、温水洗浄便座、宅配ボックス、室内洗濯機置場、角部屋などが特徴です。最寄り駅の東京メトロ 東西線南行徳駅から徒歩11分です。ザ・パークハウス南行徳レジデンス 606号室の詳細はハウスコム 市川店までお気軽にお問い合わせください!
情報更新日:
次回更新予定日:
※次回更新予定日について:お店側では順次空室確認を行っていますが、次回更新予定日までに空室確認が行えない場合には、この物件情報は自動的に削除されます。
ザ・パークハウス南行徳レジデンス 606号室の賃貸物件部屋概要
家賃 |
23万円
初期費用を |
|---|---|
共益費 |
-
入居可能時期 |
敷金/礼金 |
2ヶ月 / 1ヶ月 |
保証金/ |
- / - |
最寄駅 |
|
所在地 |
千葉県市川市福栄 |
部屋番号 |
606号室 |
間取り |
4LDK(LDK19・洋4.5・洋5・洋5.5・洋7.3) |
専有面積 |
88.12㎡ |
築年数 |
2017年1月(築10年) |
階数 |
6階部分(地上6階建) |
方位・位置 |
南東 / 角部屋 |
物件種別 |
賃貸マンション |
構造 |
RC |
駐車場 |
無 |
小学校学区 |
福栄小学校 |
中学校学区 |
福栄中学校 |
他の空き部屋 |
ー |
- 学区データについて
- ※学区データは必ずしも正確とは限りません。詳細に関しては最寄店舗または各自治体の教育委員会に必ずご確認ください。
ザ・パークハウス南行徳レジデンス 606号室の特徴
-
一人暮らしに人気の設備

-
カップルに人気の設備

-
家族に人気の設備

-
夫婦に人気の設備

-
三世代で人気の設備

-
キッチン重視

-
外で子どもと遊びたい

-
身だしなみに気をつかいたい

-
雨の日でも洗濯したい

-
洋室で暮らしたい

-
自炊が多めなあなたに

-
料理が好き

-
服やおしゃれが好き

-
推し活グッズを飾りたい

-
ガーデニングが好き

セキュリティ
この物件の建物には、オートロックや宅配ボックスが設置されており、来客時には居室内のテレビモニターにて訪問者の顔を確認することができます。
室内設備
システムキッチンには、ガスコンロが設置されており、排水溝にディスポーザー、キッチン設備として食洗機が備え付けられています。 お風呂とトイレは別です。お風呂には、追い焚き機能が備わっています。 トイレは、温水洗浄便座機能付きになります。 女性に嬉しい設備の独立した洗面化粧台があります。 洗濯に便利な設備として、室内洗濯機置場があります。浴室乾燥機も設置されているので、梅雨時の生乾き臭も比較的防ぐことができます。
居室状況
お部屋の床は、フローリングとなっており、エアコンが設置されています。 収納スペースとして、通常よりも収納力の高いウォークインクローゼットがあります。
建物設備共用部分
居室外の専有スペースとして、洗濯物を干すなどの用途として利用できるバルコニーがあります。 建物の共用スペースに、日々の出入に便利なエレベーターや、急な外出や不在がちのご家庭の荷物受け取りに便利な宅配ボックスが設置されています。
周辺施設
この物件の学区は、福栄小学校区・福栄中学校区です。
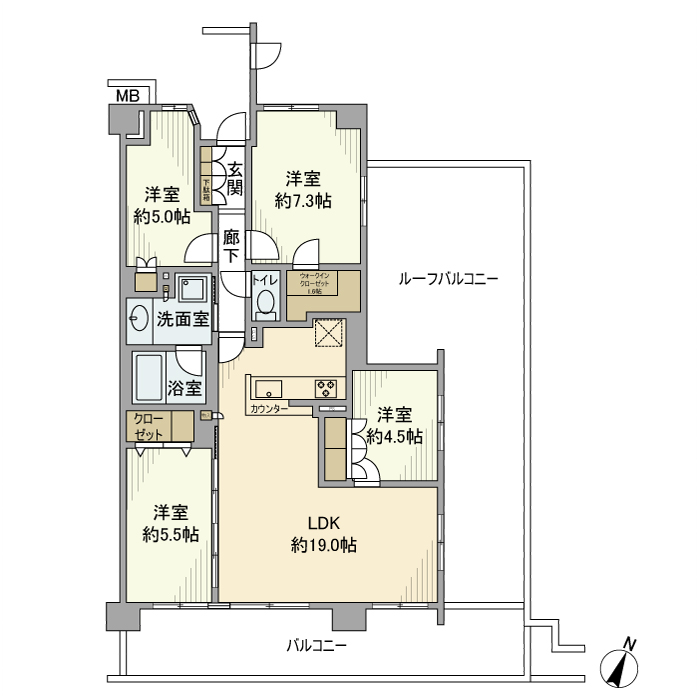
ザ・パークハウス南行徳レジデンス 606号室の間取り
間取り:4LDK
間取詳細:4LDK(LDK19・洋4.5・洋5・洋5.5・洋7.3)
専有面積:88.12㎡
方位:南東
部屋位置:角部屋
ザ・パークハウス南行徳レジデンス 606号室の設備
キッチン
システムキッチン
カウンターキッチン
ガスコンロ
ディスポーザー
食洗機
バス・トイレ
バス・トイレ別
追い焚き
浴室乾燥機
温水洗浄便座
独立洗面台
玄関
TVモニタ付インターホン
オートロック
宅配ボックス
収納
ウォークインクローゼット
バルコニー
バルコニー
ルーフバルコニー
室内設備
エアコン
フローリング
室内洗濯機置場
位置・立地
2階以上
最上階
角部屋
インフラ
CATV
都市ガス
建物設備
エレベーター
分譲賃貸
ライフステージ
一人暮らしに人気の設備
カップルに人気の設備
家族に人気の設備
夫婦に人気の設備
三世代で人気の設備
こだわり
キッチン重視
外で子どもと遊びたい
身だしなみに気をつかいたい
雨の日でも洗濯したい
洋室で暮らしたい
自炊が多めなあなたに
趣味
料理が好き
服やおしゃれが好き
推し活グッズを飾りたい
ガーデニングが好き
ザ・パークハウス南行徳レジデンス 606号室の賃貸契約情報
毎月支払う |
家賃23万円/月共益費- |
|---|---|
初期費用 |
敷金2ヶ月 (46万円)礼金1ヶ月 (23万円)保証金-敷引き償却金- |
更新料 |
- |
鍵交換費用 |
- |
室内清掃費用 |
- |
駐車場登録料 1台(利用時のみ) |
11,000円 |
除菌施工料(契約時のみ) |
19,800円 |
駐車場料金 |
無 |
損保・ |
借家賠付きの火災保険にご加入いただきます。 |
保証会社 |
加入要 保証会社利用料:保証会社 要:初回 賃料総額100%+月額 賃料総額2%(最低1,000円) |
契約期間 |
定期借家 3年 |
入居可能日 |
相談 |
フリーレント期間 |
- |
取引形態 |
一般媒介 |
備考 |
- |
ザ・パークハウス南行徳レジデンス 606号室の建物情報
建物名称 |
ザ・パークハウス南行徳レジデンス |
|---|---|
最寄駅 |
|
所在地 |
千葉県市川市福栄 |
階層 |
6階部分(地上6階建) |
構造 |
RC |
築年数 |
2017年1月(築10年) |
駐車場 |
無 |
小学校学区 |
福栄小学校 |
中学校学区 |
福栄中学校 |
- 学区データについて
- ※学区データは必ずしも正確とは限りません。詳細に関しては最寄店舗または各自治体の教育委員会に必ずご確認ください。
無料この物件に問い合わせ
- ザ・パークハウス南行徳レジデンス 606号室

-
23万円
(共益費
-)
- 敷
- 2ヶ月
- 礼
- 1ヶ月
- 保
- -
- 償
- -
ザ・パークハウス南行徳レジデンス 606号室の物件のお問い合わせ先・取り扱い店舗
ハウスコム 市川店
- アクセス
-
総武本線「市川駅」北口徒歩3分
- 住所
- 〒272-0034 千葉県市川市市川1丁目12−8 北澤ビル 1階
- 営業時間
- 10:00~18:00
- 定休日
- 水曜日
- 営業エリア
- 市川市,船橋市松戸市,江戸川区,葛飾区,浦安市,習志野市,,鎌ヶ谷市,
- 取引態様
- 賃貸仲介業

















