パークアクシス金山WEST 701号室(7階/4LDK)の賃貸物件(賃貸マンション)
愛知県名古屋市中区にあるパークアクシス金山WEST 701号室はシステムキッチン、オートロック、シューズボックス、フローリング、2人入居可などが特徴です。最寄り駅の名古屋市営地下鉄 名城線金山駅から徒歩12分です。パークアクシス金山WEST 701号室の詳細はハウスコム 中村公園店までお気軽にお問い合わせください!
情報更新日:
次回更新予定日:
※次回更新予定日について:お店側では順次空室確認を行っていますが、次回更新予定日までに空室確認が行えない場合には、この物件情報は自動的に削除されます。
パークアクシス金山WEST 701号室の賃貸物件部屋概要
家賃 |
14.8万円
初期費用を |
|---|---|
共益費 |
15,000円
入居可能時期 |
敷金/礼金 |
1ヶ月 / 1ヶ月 |
保証金/ |
- / - |
最寄駅 |
|
所在地 |
愛知県名古屋市中区正木 |
部屋番号 |
701号室 |
間取り |
4LDK(和6・洋6.6・洋5.3・洋5・LDK16.4) |
専有面積 |
85.56㎡ |
築年数 |
2006年2月(築20年) |
階数 |
7階部分(地上14階建) |
方位・位置 |
南 / 角部屋 |
物件種別 |
賃貸マンション |
構造 |
RC |
駐車場 |
無 |
小学校学区 |
正木小学校 |
中学校学区 |
伊勢山中学校 |
他の空き部屋 |
505号室 704号室 ***号室 |
- 学区データについて
- ※学区データは必ずしも正確とは限りません。詳細に関しては最寄店舗または各自治体の教育委員会に必ずご確認ください。
パークアクシス金山WEST 701号室の特徴
-
一人暮らしに人気の設備

-
カップルに人気の設備

-
家族に人気の設備

-
夫婦に人気の設備

-
三世代で人気の設備

-
外で子どもと遊びたい

-
雨の日でも洗濯したい

-
苦手な冬を暖かく過ごしたい

-
洋室で暮らしたい

-
料理が好き

-
推し活グッズを飾りたい

-
ガーデニングが好き

契約条件
この物件は、2人入居もご契約できます。 ペットの飼育もご相談ください。 また、保証会社との契約が必要となる場合があります。
セキュリティ
この物件の建物には、オートロックや宅配ボックスが設置されております。
室内設備
システムキッチンには、ガスコンロが備え付けられています。 お風呂とトイレは別です。お風呂には、追い焚き機能が備わっています。 女性に嬉しい設備のシャワーの付いている洗面化粧台があります。 洗濯に便利な設備として、室内洗濯機置場があります。浴室乾燥機も設置されているので、梅雨時の生乾き臭も比較的防ぐことができます。
居室状況
居室には、和室の居室もあり、子育てやリラックススペースとしての利用もできます。 お部屋の床は、フローリングとなっており、エアコンと一部床下暖房が設置されています。 収納スペースとして、基本的な居室にクローゼットを設置、玄関にはシューズボックスがあります。
建物設備共用部分
居室外の専有スペースとして、洗濯物を干すなどの用途として利用できるバルコニーがあります。 建物の共用スペースに、日々の出入に便利なエレベーターや、急な外出や不在がちのご家庭の荷物受け取りに便利な宅配ボックスが設置されています。 バイク置き場が利用できます。
周辺施設
この物件の学区は、正木小学校区・伊勢山中学校区です。
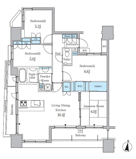
パークアクシス金山WEST 701号室の間取り
間取り:4LDK
間取詳細:4LDK(和6・洋6.6・洋5.3・洋5・LDK16.4)
専有面積:85.56㎡
方位:南
部屋位置:角部屋
パークアクシス金山WEST 701号室の設備
キッチン
システムキッチン
カウンターキッチン
ガスコンロ
バス・トイレ
バス・トイレ別
追い焚き
浴室乾燥機
独立洗面台
シャワー付洗面化粧台
玄関
オートロック
宅配ボックス
収納
クローゼット
シューズボックス
バルコニー
バルコニー
ルーフバルコニー
室内設備
エアコン
フローリング
床下暖房
室内洗濯機置場
和室あり
位置・立地
2階以上
角部屋
南向き
インフラ
インターネット可
建物設備
エレベーター
バイク置き場
入居条件
ペット可・相談
2人入居可
保証会社利用可
即入居可
ライフステージ
一人暮らしに人気の設備
カップルに人気の設備
家族に人気の設備
夫婦に人気の設備
三世代で人気の設備
こだわり
外で子どもと遊びたい
雨の日でも洗濯したい
苦手な冬を暖かく過ごしたい
洋室で暮らしたい
趣味
料理が好き
推し活グッズを飾りたい
ガーデニングが好き
パークアクシス金山WEST 701号室の賃貸契約情報
毎月支払う |
家賃14.8万円/月共益費15,000円/月 |
|---|---|
初期費用 |
敷金1ヶ月 (14.8万円)礼金1ヶ月 (14.8万円)保証金-敷引き償却金- |
更新料 |
- |
鍵交換費用 |
- |
室内清掃費用 |
- |
室内清掃費 |
112,939円 |
鍵交換費 |
16,500円 |
駐車場料金 |
無 |
損保・ |
借家賠付きの火災保険にご加入いただきます。 |
保証会社 |
利用可 保証会社:オリコ 保証会社利用料:初回保証料:総賃料の50% 更新保証料10000円/年 |
契約期間 |
2年 |
入居可能日 |
即入居可 |
フリーレント期間 |
- |
取引形態 |
一般媒介 |
備考 |
火災保険要加入/口座振替事務手数料:110円/室内清掃費:94116円/鍵交換費:16500円 |
パークアクシス金山WEST 701号室の建物情報
建物名称 |
パークアクシス金山WEST |
|---|---|
最寄駅 |
|
所在地 |
愛知県名古屋市中区正木 |
階層 |
7階部分(地上14階建) |
構造 |
RC |
築年数 |
2006年2月(築20年) |
駐車場 |
無 |
小学校学区 |
正木小学校 |
中学校学区 |
伊勢山中学校 |
- 学区データについて
- ※学区データは必ずしも正確とは限りません。詳細に関しては最寄店舗または各自治体の教育委員会に必ずご確認ください。
無料この物件に問い合わせ
- パークアクシス金山WEST 701号室

-
14.8万円
(共益費
15,000円)
- 敷
- 1ヶ月
- 礼
- 1ヶ月
- 保
- -
- 償
- -
パークアクシス金山WEST 701号室の物件のお問い合わせ先・取り扱い店舗
ハウスコム 中村公園店
- アクセス
-
名古屋市営地下鉄 東山線「中村公園駅」徒歩1分
- 住所
- 〒453-0811 愛知県名古屋市中村区太閤通9丁目9 横田ビル 1階
- 営業時間
- 10:00~18:00
- 定休日
- なし(年末年始休業12月25日~1月3日)
- 営業エリア
- 中村区 中川区 西区 中区 港区 海部郡 あま市 清須市
- 取引態様
- 賃貸仲介業















