ブランドール北見方 201号室(2階/1R)の賃貸物件(賃貸アパート)
神奈川県川崎市高津区にあるブランドール北見方 201号室はIHコンロ、浴室乾燥機、フローリング、角部屋、BSなどが特徴です。最寄り駅の東急田園都市線二子新地駅から徒歩14分です。ブランドール北見方 201号室の詳細はハウスコム 祖師ヶ谷大蔵店までお気軽にお問い合わせください!
情報更新日:
次回更新予定日:
※次回更新予定日について:お店側では順次空室確認を行っていますが、次回更新予定日までに空室確認が行えない場合には、この物件情報は自動的に削除されます。
ブランドール北見方 201号室の賃貸物件部屋概要
家賃 |
6万円
初期費用を |
|---|---|
共益費 |
3,000円
入居可能時期 |
敷金/礼金 |
- / - |
保証金/ |
- / - |
最寄駅 |
|
所在地 |
神奈川県川崎市高津区北見方 |
部屋番号 |
201号室 |
間取り |
1R(洋4.3) |
専有面積 |
15.02㎡ |
築年数 |
2019年1月(築8年) |
階数 |
2階部分(地上2階建) |
方位・位置 |
南東 / 角部屋 |
物件種別 |
賃貸アパート |
構造 |
木造 |
駐車場 |
無 |
小学校学区 |
東高津小学校 |
中学校学区 |
東高津中学校 |
他の空き部屋 |
ー |
- 学区データについて
- ※学区データは必ずしも正確とは限りません。詳細に関しては最寄店舗または各自治体の教育委員会に必ずご確認ください。
ブランドール北見方 201号室の特徴
契約条件
敷金と礼金が無料なため、初期費用が比較的安くなる傾向にあります。
セキュリティ
来客時には居室内のテレビモニターにて訪問者の顔を確認することができます。
室内設備
IHコンロが設置されており、キッチン設備として冷蔵庫が備え付けられています。 トイレは、温水洗浄便座機能付きになります。 洗濯に便利な設備として、室内洗濯機置場があります。浴室乾燥機も設置されているので、梅雨時の生乾き臭も比較的防ぐことができます。
居室状況
居室には、ロフトが設置されており大規模な収納スペースやセパレートされた寝室として活用できます。 お部屋の床は、フローリングとなっており、エアコンが設置されています。 収納スペースとして、玄関にはシューズボックスがあります。
周辺施設
この物件の学区は、東高津小学校区・東高津中学校区です。
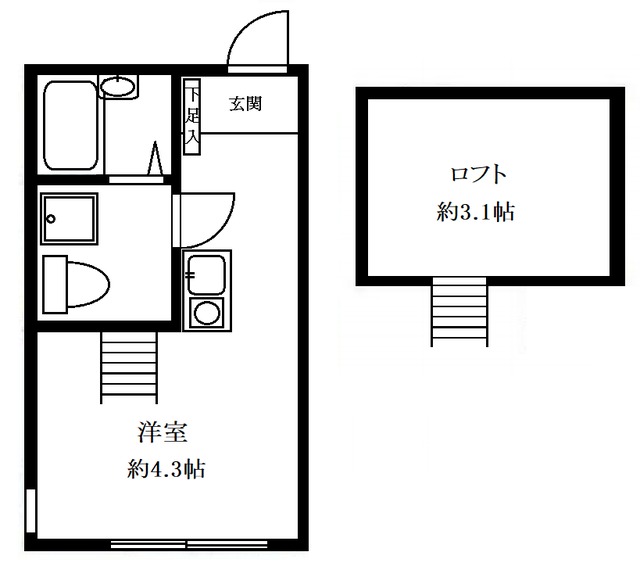
ブランドール北見方 201号室の間取り
間取り:1R
間取詳細:1R(洋4.3)
専有面積:15.02㎡
方位:南東
部屋位置:角部屋
ブランドール北見方 201号室の設備
キッチン
IHコンロ
冷蔵庫付
バス・トイレ
バス・トイレ別
浴室乾燥機
温水洗浄便座
玄関
TVモニタ付インターホン
収納
シューズボックス
室内設備
エアコン
フローリング
室内洗濯機置場
ロフト付
位置・立地
2階以上
最上階
角部屋
インフラ
BS
プロパンガス
ライフステージ
一人暮らしに人気の設備
カップルに人気の設備
家族に人気の設備
夫婦に人気の設備
三世代で人気の設備
こだわり
雨の日でも洗濯したい
洋室で暮らしたい
ブランドール北見方 201号室の賃貸契約情報
毎月支払う |
家賃6万円/月共益費3,000円/月 |
|---|---|
初期費用 |
敷金-礼金-保証金-敷引き償却金- |
更新料 |
60,000円 |
鍵交換費用 |
- |
室内清掃費用 |
- |
室内清掃費 |
49,500円 |
駐車場料金 |
無 |
損保・ |
借家賠付きの火災保険にご加入いただきます。 |
保証会社 |
加入要 保証会社利用料:エポスカード /家賃保証会社利用費用:60% |
契約期間 |
2年 |
入居可能日 |
相談 |
フリーレント期間 |
- |
取引形態 |
一般媒介 |
備考 |
- |
ブランドール北見方 201号室の建物情報
建物名称 |
ブランドール北見方 |
|---|---|
最寄駅 |
|
所在地 |
神奈川県川崎市高津区北見方 |
階層 |
2階部分(地上2階建) |
構造 |
木造 |
築年数 |
2019年1月(築8年) |
駐車場 |
無 |
小学校学区 |
東高津小学校 |
中学校学区 |
東高津中学校 |
- 学区データについて
- ※学区データは必ずしも正確とは限りません。詳細に関しては最寄店舗または各自治体の教育委員会に必ずご確認ください。
無料この物件に問い合わせ
- ブランドール北見方 201号室

-
6万円
(共益費
3,000円)
- 敷
- -
- 礼
- -
- 保
- -
- 償
- -
ブランドール北見方 201号室の物件のお問い合わせ先・取り扱い店舗
ハウスコム 祖師ヶ谷大蔵店
- アクセス
-
小田急小田原線「祖師ヶ谷大蔵駅」徒歩1分
- 住所
- 〒157-0073 東京都世田谷区砧6丁目37−5 振興会館 2階
- 営業時間
- 10:00~18:00
- 定休日
- 水曜日
- 営業エリア
- 世田谷区 狛江市 調布市
- 取引態様
- 賃貸仲介業


































