ロイヤルヒルズ丘上 402号室(4階/1DK)の賃貸物件(賃貸マンション)
愛知県名古屋市千種区にあるロイヤルヒルズ丘上 402号室は独立洗面台、シャワー付洗面化粧台、フローリング、駐輪場、オンライン内見可などが特徴です。最寄り駅の名古屋市営地下鉄 東山線覚王山駅から徒歩5分です。ロイヤルヒルズ丘上 402号室の詳細はハウスコム 星ヶ丘店までお気軽にお問い合わせください!
情報更新日:
次回更新予定日:
※次回更新予定日について:お店側では順次空室確認を行っていますが、次回更新予定日までに空室確認が行えない場合には、この物件情報は自動的に削除されます。
ロイヤルヒルズ丘上 402号室の賃貸物件部屋概要
家賃 |
6.8万円
初期費用を |
|---|---|
共益費 |
4,500円
入居可能時期 |
敷金/礼金 |
- / - |
保証金/ |
- / - |
最寄駅 |
|
所在地 |
愛知県名古屋市千種区丘上町 |
部屋番号 |
402号室 |
間取り |
1DK(DK5・洋8) |
専有面積 |
32.00㎡ |
築年数 |
1990年2月(築37年) |
階数 |
4階部分(地上5階建) |
方位・位置 |
南 / 角部屋 |
物件種別 |
賃貸マンション |
構造 |
RC |
駐車場 |
空無し |
小学校学区 |
田代小学校 |
中学校学区 |
城山中学校 |
他の空き部屋 |
203号室 ***号室 302号室 303号室 |
- 学区データについて
- ※学区データは必ずしも正確とは限りません。詳細に関しては最寄店舗または各自治体の教育委員会に必ずご確認ください。
ロイヤルヒルズ丘上 402号室の特徴
-
一人暮らしに人気の設備

-
カップルに人気の設備

-
家族に人気の設備

-
夫婦に人気の設備

-
三世代で人気の設備

-
外で子どもと遊びたい

-
雨の日でも洗濯したい

-
洋室で暮らしたい

-
コスパ重視のリフォーム部屋

-
ガーデニングが好き

契約条件
法人契約・事務所のご利用もご相談ください。 敷金と礼金が無料なため、初期費用が比較的安くなる傾向にあります。 お支払いは、初期費用と家賃がクレジットカードにて決済できます。
セキュリティ
この物件の建物には、防犯カメラが設置されており、来客時には居室内のテレビモニターにて訪問者の顔を確認することができます。
室内設備
IHコンロが備え付けられています。 トイレは、温水洗浄便座機能付きになります。 女性に嬉しい設備のシャワーの付いている洗面化粧台があります。 洗濯に便利な設備として、室内洗濯機置場があります。
居室状況
お部屋の床は、フローリングとなっています。インターネットも無料で入居後すぐ生活が始められます。 収納スペースとして、玄関にはシューズボックスがあります。
建物設備共用部分
居室外の専有スペースとして、洗濯物を干すなどの用途として利用できるバルコニーがあります。 建物の共用スペースに、いざという時の防犯カメラが設置されています。 駐輪場が利用できます。
周辺施設
この物件の学区は、田代小学校区・城山中学校区です。
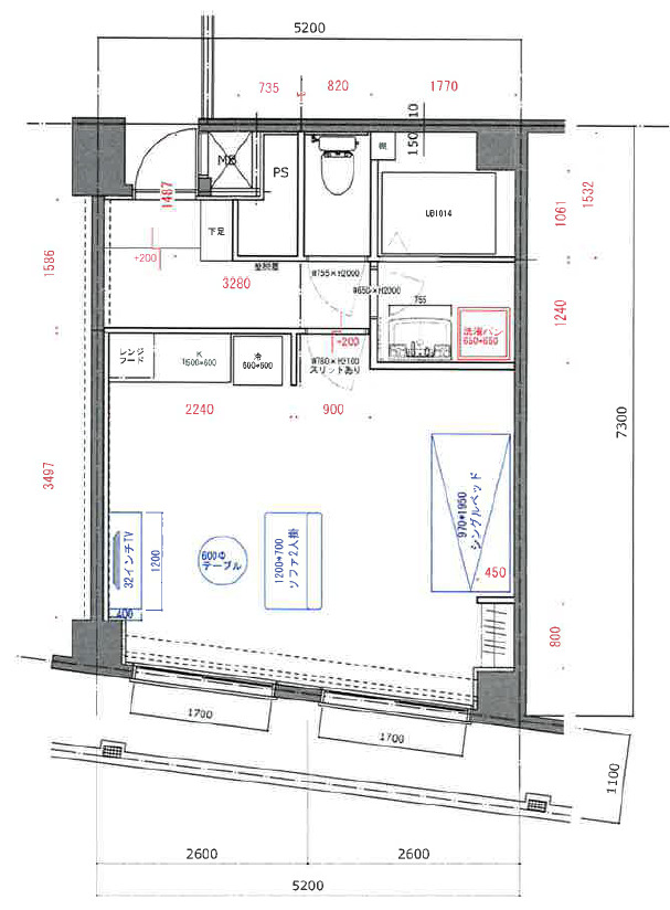
ロイヤルヒルズ丘上 402号室の間取り
間取り:1DK
間取詳細:1DK(DK5・洋8)
専有面積:32.00㎡
方位:南
部屋位置:角部屋
ロイヤルヒルズ丘上 402号室の設備
キッチン
IHコンロ
バス・トイレ
バス・トイレ別
温水洗浄便座
独立洗面台
シャワー付洗面化粧台
玄関
TVモニタ付インターホン
収納
シューズボックス
バルコニー
バルコニー
ルーフバルコニー
室内設備
フローリング
室内洗濯機置場
リノベーション済
位置・立地
2階以上
角部屋
南向き
インフラ
インターネット可
CATV
都市ガス
建物設備
防犯カメラ
駐輪場
入居条件
LGBTフレンドリー
事務所可・相談
オンライン相談可
オンライン内見可
即入居可
ライフステージ
一人暮らしに人気の設備
カップルに人気の設備
家族に人気の設備
夫婦に人気の設備
三世代で人気の設備
こだわり
外で子どもと遊びたい
雨の日でも洗濯したい
洋室で暮らしたい
コスパ重視のリフォーム部屋
趣味
ガーデニングが好き
お得な条件
インターネット無料
初期費用カード決済可
家賃カード決済可
ロイヤルヒルズ丘上 402号室の賃貸契約情報
毎月支払う |
家賃6.8万円/月共益費4,500円/月 |
|---|---|
初期費用 |
敷金-礼金-保証金-敷引き償却金- |
更新料 |
- |
鍵交換費用 |
- |
室内清掃費用 |
50,000円 |
駐車場料金 |
空無し |
損保・ |
借家賠付きの火災保険にご加入いただきます。 |
保証会社 |
加入要 保証会社:ジェイリース 保証会社利用料:月額総賃料の50%、更新料1年毎1万円 |
契約期間 |
2年 |
入居可能日 |
即入居可 |
フリーレント期間 |
- |
取引形態 |
一般媒介 |
備考 |
火災保険加入要 法人契約は礼金1ヶ月 短期違約金1年以内解約で家賃2か月分必要 |
ロイヤルヒルズ丘上 402号室の建物情報
建物名称 |
ロイヤルヒルズ丘上 |
|---|---|
最寄駅 |
|
所在地 |
愛知県名古屋市千種区丘上町 |
階層 |
4階部分(地上5階建) |
構造 |
RC |
築年数 |
1990年2月(築37年) |
駐車場 |
空無し |
小学校学区 |
田代小学校 |
中学校学区 |
城山中学校 |
- 学区データについて
- ※学区データは必ずしも正確とは限りません。詳細に関しては最寄店舗または各自治体の教育委員会に必ずご確認ください。
無料この物件に問い合わせ
- ロイヤルヒルズ丘上 402号室

-
6.8万円
(共益費
4,500円)
- 敷
- -
- 礼
- -
- 保
- -
- 償
- -
ロイヤルヒルズ丘上 402号室の物件のお問い合わせ先・取り扱い店舗
ハウスコム 星ヶ丘店
- アクセス
-
名古屋市営地下鉄 東山線「星ヶ丘駅」徒歩1分
- 住所
- 〒464-0026 愛知県名古屋市千種区井上町129−1 エストレヤビル 1階
- 営業時間
- 10:00~18:00
- 定休日
- なし
- 営業エリア
- 千種区,名東区,長久手市,天白区,日進市,昭和区,守山区,尾張旭市
- 取引態様
- 賃貸仲介業




















