ザ・パークハビオSOHO横浜関内 1406号室(14階/1LDK)の賃貸物件(賃貸マンション)
神奈川県横浜市中区にあるザ・パークハビオSOHO横浜関内 1406号室はTVモニタ付インターホン、バルコニー、ペット可・相談、楽器可・相談、即入居可などが特徴です。最寄り駅の京浜東北・根岸線関内駅から徒歩5分です。ザ・パークハビオSOHO横浜関内 1406号室の詳細はハウスコム 横浜店までお気軽にお問い合わせください!
情報更新日:
次回更新予定日:
※次回更新予定日について:お店側では順次空室確認を行っていますが、次回更新予定日までに空室確認が行えない場合には、この物件情報は自動的に削除されます。
ザ・パークハビオSOHO横浜関内 1406号室の賃貸物件部屋概要
家賃 |
25.5万円
初期費用を |
|---|---|
共益費 |
25,000円
入居可能時期 |
敷金/礼金 |
1ヶ月 / - |
保証金/ |
- / - |
最寄駅 |
|
所在地 |
神奈川県横浜市中区羽衣町 |
部屋番号 |
1406号室 |
間取り |
1LDK(LDK17.4) |
専有面積 |
54.20㎡ |
築年数 |
新築 |
階数 |
14階部分(地上15階地下1階建) |
方位・位置 |
南東 / 角部屋 |
物件種別 |
賃貸マンション |
構造 |
RC |
駐車場 |
無 |
小学校学区 |
本町小学校 |
中学校学区 |
横浜吉田中学校 |
他の空き部屋 |
1201号室 1206号室 1302号室 1403号室 1405号室 1502号室 1503号室 1504号室 1506号室 202号室 203号室 402号室 404号室 604号室 904号室 906号室 |
- 学区データについて
- ※学区データは必ずしも正確とは限りません。詳細に関しては最寄店舗または各自治体の教育委員会に必ずご確認ください。
ザ・パークハビオSOHO横浜関内 1406号室の特徴
-
一人暮らしに人気の設備

-
カップルに人気の設備

-
家族に人気の設備

-
夫婦に人気の設備

-
三世代で人気の設備

-
セキュリティ対策重視

-
タイパ重視

-
外で子どもと遊びたい

-
雨の日でも洗濯したい

-
洋室で暮らしたい

-
オークション・通販が好き

-
ガーデニングが好き

契約条件
ペットの飼育や楽器演奏もご相談ください。 礼金が無料なため、初期費用が比較的安くなる傾向にあります。
セキュリティ
この物件の建物には、オートロックや防犯カメラや宅配ボックスが設置されており、来客時には居室内のテレビモニターにて訪問者の顔を確認することができます。
室内設備
システムキッチンが備え付けられています。 トイレは、温水洗浄便座機能付きになります。 女性に嬉しい設備の独立した洗面化粧台があります。 洗濯に便利な設備として、室内洗濯機置場があります。浴室乾燥機も設置されているので、梅雨時の生乾き臭も比較的防ぐことができます。
居室状況
お部屋の床は、フローリングとなっています。インターネットも無料で入居後すぐ生活が始められます。 収納スペースとして、玄関にはシューズボックスがあります。
建物設備共用部分
居室外の専有スペースとして、洗濯物を干すなどの用途として利用できるバルコニーがあります。 建物の共用スペースに、日々の出入に便利なエレベーターや、いざという時の防犯カメラや、急な外出や不在がちのご家庭の荷物受け取りに便利な宅配ボックスや、居室内を常に清潔に保てる24時間利用可能なゴミ捨て置き場が設置されています。
周辺施設
この物件の学区は、本町小学校区・横浜吉田中学校区です。
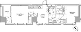
ザ・パークハビオSOHO横浜関内 1406号室の間取り
間取り:1LDK
間取詳細:1LDK(LDK17.4)
専有面積:54.20㎡
方位:南東
部屋位置:角部屋
ザ・パークハビオSOHO横浜関内 1406号室の設備
キッチン
システムキッチン
バス・トイレ
バス・トイレ別
浴室乾燥機
温水洗浄便座
独立洗面台
玄関
TVモニタ付インターホン
オートロック
宅配ボックス
収納
シューズボックス
バルコニー
バルコニー
ルーフバルコニー
室内設備
フローリング
室内洗濯機置場
位置・立地
2階以上
角部屋
インフラ
インターネット可
都市ガス
建物設備
エレベーター
防犯カメラ
24時間ゴミ出しOK
入居条件
ペット可・相談
楽器可・相談
即入居可
ライフステージ
一人暮らしに人気の設備
カップルに人気の設備
家族に人気の設備
夫婦に人気の設備
三世代で人気の設備
こだわり
セキュリティ対策重視
タイパ重視
外で子どもと遊びたい
雨の日でも洗濯したい
洋室で暮らしたい
趣味
オークション・通販が好き
ガーデニングが好き
お得な条件
インターネット無料
ザ・パークハビオSOHO横浜関内 1406号室の賃貸契約情報
毎月支払う |
家賃25.5万円/月共益費25,000円/月 |
|---|---|
初期費用 |
敷金1ヶ月 (25.5万円)礼金-保証金-敷引き償却金- |
更新料 |
255,000円 |
鍵交換費用 |
- |
室内清掃費用 |
- |
M-REALプレミアム会費2年 |
19,800円 |
駐車場料金 |
無 |
損保・ |
借家賠付きの火災保険にご加入いただきます。 |
保証会社 |
加入要 保証会社利用料:当社指定:初期費用は賃料等の50%、月次保証料は賃料等の1%。その他保証会社条件有 |
契約期間 |
2年 |
入居可能日 |
即入居可 |
フリーレント期間 |
- |
取引形態 |
一般媒介 |
備考 |
- |
ザ・パークハビオSOHO横浜関内 1406号室の建物情報
建物名称 |
ザ・パークハビオSOHO横浜関内 |
|---|---|
最寄駅 |
|
所在地 |
神奈川県横浜市中区羽衣町 |
階層 |
14階部分(地上15階地下1階建) |
構造 |
RC |
築年数 |
新築 |
駐車場 |
無 |
小学校学区 |
本町小学校 |
中学校学区 |
横浜吉田中学校 |
- 学区データについて
- ※学区データは必ずしも正確とは限りません。詳細に関しては最寄店舗または各自治体の教育委員会に必ずご確認ください。
無料この物件に問い合わせ
- ザ・パークハビオSOHO横浜関内 1406号室

-
25.5万円
(共益費
25,000円)
- 敷
- 1ヶ月
- 礼
- -
- 保
- -
- 償
- -
ザ・パークハビオSOHO横浜関内 1406号室の物件のお問い合わせ先・取り扱い店舗
ハウスコム 横浜店
- アクセス
-
東海道本線(JR東日本)「横浜駅」徒歩5分
- 住所
- 〒220-0005 神奈川県横浜市西区南幸2丁目20−2 共栄ビル 1F
- 営業時間
- 10:00~18:00
- 定休日
- なし
- 営業エリア
- 横浜市全域
- 取引態様
- 賃貸仲介業













