ALTERNA横濱阪東橋 604号室(6階/1K)の賃貸物件(賃貸マンション)
神奈川県横浜市南区にあるALTERNA横濱阪東橋 604号室はガスコンロ、独立洗面台、シューズボックス、インターネット可、24時間ゴミ出しOKなどが特徴です。最寄り駅の横浜市営地下鉄 ブルーライン阪東橋駅から徒歩5分です。ALTERNA横濱阪東橋 604号室の詳細はハウスコム 関内店までお気軽にお問い合わせください!
情報更新日:
次回更新予定日:
※次回更新予定日について:お店側では順次空室確認を行っていますが、次回更新予定日までに空室確認が行えない場合には、この物件情報は自動的に削除されます。
ALTERNA横濱阪東橋 604号室の賃貸物件部屋概要
家賃 |
11.2万円
初期費用を |
|---|---|
共益費 |
10,000円
入居可能時期 |
敷金/礼金 |
- / - |
保証金/ |
- / - |
最寄駅 |
|
所在地 |
神奈川県横浜市南区高根町 |
部屋番号 |
604号室 |
間取り |
1K(洋9.4・K0) |
専有面積 |
27.53㎡ |
築年数 |
2022年1月(築5年) |
階数 |
6階部分(地上11階建) |
方位・位置 |
ー / その他 |
物件種別 |
賃貸マンション |
構造 |
RC |
駐車場 |
- |
小学校学区 |
南吉田小学校 |
中学校学区 |
横浜吉田中学校 |
他の空き部屋 |
1001号室 101号室 102号室 103号室 1102号室 1106号室 409号室 805号室 904号室 910号室 |
- 学区データについて
- ※学区データは必ずしも正確とは限りません。詳細に関しては最寄店舗または各自治体の教育委員会に必ずご確認ください。
ALTERNA横濱阪東橋 604号室の特徴
-
一人暮らしに人気の設備

-
カップルに人気の設備

-
家族に人気の設備

-
夫婦に人気の設備

-
三世代で人気の設備

-
セキュリティ対策重視

-
外で子どもと遊びたい

-
雨の日でも洗濯したい

-
洋室で暮らしたい

-
オークション・通販が好き

-
ガーデニングが好き

契約条件
ご契約時に保証人は不要です。 敷金と礼金が無料なため、初期費用が比較的安くなる傾向にあります。
セキュリティ
この物件の建物には、オートロックや防犯カメラや宅配ボックスが設置されており、来客時には居室内のテレビモニターにて訪問者の顔を確認することができます。
室内設備
システムキッチンには、2つ以上のガスコンロが備え付けられています。 トイレは、温水洗浄便座機能付きになります。 女性に嬉しい設備の独立した洗面化粧台があります。 洗濯に便利な設備として、室内洗濯機置場があります。
居室状況
お部屋の床は、フローリングとなっており、エアコンが設置されています。 インターネットも無料で入居後すぐ生活が始められます。 収納スペースとして、基本的な居室にクローゼットを設置、玄関にはシューズボックスがあります。
建物設備共用部分
居室外の専有スペースとして、洗濯物を干すなどの用途として利用できるバルコニーがあります。 建物の共用スペースに、日々の出入に便利なエレベーターや、いざという時の防犯カメラや、急な外出や不在がちのご家庭の荷物受け取りに便利な宅配ボックスや、居室内を常に清潔に保てる24時間利用可能なゴミ捨て置き場が設置されています。 駐輪場が利用できます。
周辺施設
この物件の学区は、南吉田小学校区・横浜吉田中学校区です。
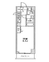
ALTERNA横濱阪東橋 604号室の間取り
間取り:1K
間取詳細:1K(洋9.4・K0)
専有面積:27.53㎡
方位:ー
部屋位置:その他
ALTERNA横濱阪東橋 604号室の設備
キッチン
システムキッチン
ガスコンロ
ガスコンロ二口以上
バス・トイレ
バス・トイレ別
温水洗浄便座
独立洗面台
玄関
TVモニタ付インターホン
オートロック
宅配ボックス
収納
クローゼット
シューズボックス
バルコニー
バルコニー
ルーフバルコニー
室内設備
エアコン
フローリング
室内洗濯機置場
位置・立地
2階以上
インフラ
インターネット可
都市ガス
建物設備
エレベーター
防犯カメラ
24時間ゴミ出しOK
駐輪場
入居条件
オンライン相談可
オンライン内見可
保証人不要
ライフステージ
一人暮らしに人気の設備
カップルに人気の設備
家族に人気の設備
夫婦に人気の設備
三世代で人気の設備
こだわり
セキュリティ対策重視
外で子どもと遊びたい
雨の日でも洗濯したい
洋室で暮らしたい
趣味
オークション・通販が好き
ガーデニングが好き
お得な条件
インターネット無料
ALTERNA横濱阪東橋 604号室の賃貸契約情報
毎月支払う |
家賃11.2万円/月共益費10,000円/月 |
|---|---|
初期費用 |
敷金-礼金-保証金-敷引き償却金- |
更新料 |
112,000円 |
鍵交換費用 |
24,200円 |
室内清掃費用 |
41,800円 |
Goodプレミアムα登録料 |
3,300円 |
Goodプレミアムα |
16,500円 |
駐車場料金 |
- |
損保・ |
借家賠付きの火災保険にご加入いただきます。 |
保証会社 |
加入要 保証会社利用料:①【クレディセゾン】初回:総賃料50% 月次保証料:総賃料の1% ②【新日本信用保証】初回:総賃料の50% 月次保証料:総賃料の1% |
契約期間 |
2年 |
入居可能日 |
2026年04月下旬 |
フリーレント期間 |
- |
取引形態 |
一般媒介 |
備考 |
契約日より1年以内に本契約を解除する場合違約金として家賃1ヵ月分。 退去時にルームクリーニング代として41800円を申し受け致します。 |
ALTERNA横濱阪東橋 604号室の建物情報
建物名称 |
ALTERNA横濱阪東橋 |
|---|---|
最寄駅 |
|
所在地 |
神奈川県横浜市南区高根町 |
階層 |
6階部分(地上11階建) |
構造 |
RC |
築年数 |
2022年1月(築5年) |
駐車場 |
- |
小学校学区 |
南吉田小学校 |
中学校学区 |
横浜吉田中学校 |
- 学区データについて
- ※学区データは必ずしも正確とは限りません。詳細に関しては最寄店舗または各自治体の教育委員会に必ずご確認ください。
無料この物件に問い合わせ
- ALTERNA横濱阪東橋 604号室

-
11.2万円
(共益費
10,000円)
- 敷
- -
- 礼
- -
- 保
- -
- 償
- -
ALTERNA横濱阪東橋 604号室の物件のお問い合わせ先・取り扱い店舗
ハウスコム 関内店
- アクセス
-
根岸線「関内駅」徒歩1分
- 住所
- 〒231-0017 神奈川県横浜市中区港町4-15-1 フィル・パーク関内駅前Ⅱ5階
- 営業時間
- 10:00~18:00
- 定休日
- なし
- 営業エリア
- 横浜市中区・西区・南区・保土ヶ谷区・神奈川区・磯子区
- 取引態様
- 賃貸仲介業









