ARECX八幡 ***号室(4階/2LDK)の賃貸物件(賃貸マンション)
千葉県市原市にあるARECX八幡 ***号室は温水洗浄便座、クローゼット、室内洗濯機置場、平面駐車場、オンライン内見可などが特徴です。最寄り駅の内房線八幡宿駅から徒歩4分です。ARECX八幡 ***号室の詳細はハウスコム 千葉店までお気軽にお問い合わせください!
情報更新日:
次回更新予定日:
※次回更新予定日について:お店側では順次空室確認を行っていますが、次回更新予定日までに空室確認が行えない場合には、この物件情報は自動的に削除されます。
ARECX八幡 ***号室の賃貸物件部屋概要
家賃 |
9万円
初期費用を |
|---|---|
共益費 |
4,000円
入居可能時期 |
敷金/礼金 |
1ヶ月 / - |
保証金/ |
- / - |
最寄駅 |
|
所在地 |
千葉県市原市八幡 |
部屋番号 |
***号室 |
間取り |
2LDK |
専有面積 |
58.30㎡ |
築年数 |
1988年5月(築38年) |
階数 |
4階部分(地上9階建) |
方位・位置 |
南西 / その他 |
物件種別 |
賃貸マンション |
構造 |
RC |
駐車場 |
空無し |
小学校学区 |
八幡小学校 |
中学校学区 |
八幡中学校 |
他の空き部屋 |
***号室 ***号室 |
- 学区データについて
- ※学区データは必ずしも正確とは限りません。詳細に関しては最寄店舗または各自治体の教育委員会に必ずご確認ください。
ARECX八幡 ***号室の特徴
契約条件
この物件は、2人入居もご契約できます。 礼金が無料なため、初期費用が比較的安くなる傾向にあります。
セキュリティ
この物件の建物には、オートロックが設置されております。
室内設備
システムキッチンには、ガスコンロが備え付けられています。 トイレは、温水洗浄便座機能付きになります。 女性に嬉しい設備の独立した洗面化粧台があります。 洗濯に便利な設備として、室内洗濯機置場があります。
居室状況
お部屋の床は、フローリングとなっており、エアコンが設置されています。 収納スペースとして、基本的な居室にクローゼットを設置、玄関にはシューズボックスがあります。
建物設備共用部分
居室外の専有スペースとして、洗濯物を干すなどの用途として利用できるバルコニーがあります。 建物の共用スペースに、日々の出入に便利なエレベーターが設置されています。 平面駐車場があります。駐輪場、バイク置き場が利用できます。
周辺施設
この物件の学区は、八幡小学校区・八幡中学校区です。
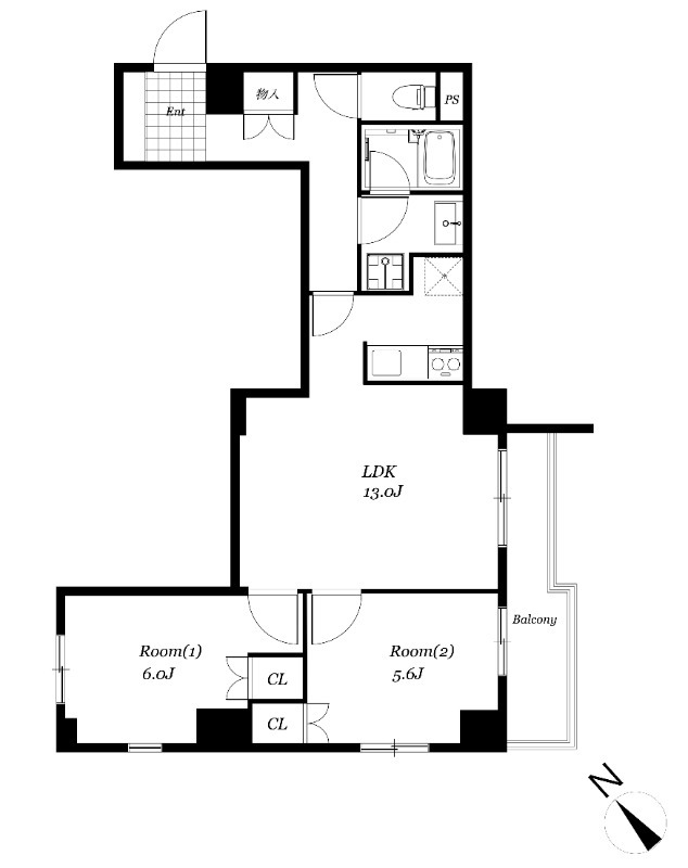
ARECX八幡 ***号室の間取り
間取り:2LDK
間取詳細:2LDK
専有面積:58.30㎡
方位:南西
部屋位置:その他
ARECX八幡 ***号室の設備
キッチン
システムキッチン
ガスコンロ
バス・トイレ
バス・トイレ別
温水洗浄便座
独立洗面台
玄関
オートロック
収納
クローゼット
シューズボックス
バルコニー
バルコニー
ルーフバルコニー
室内設備
エアコン
フローリング
室内洗濯機置場
位置・立地
2階以上
インフラ
都市ガス
建物設備
エレベーター
駐車場
平面駐車場
駐輪場
バイク置き場
入居条件
2人入居可
オンライン相談可
オンライン内見可
ライフステージ
一人暮らしに人気の設備
カップルに人気の設備
家族に人気の設備
夫婦に人気の設備
三世代で人気の設備
こだわり
外で子どもと遊びたい
雨の日でも洗濯したい
洋室で暮らしたい
趣味
ガーデニングが好き
ARECX八幡 ***号室の賃貸契約情報
毎月支払う |
家賃9万円/月共益費4,000円/月 |
|---|---|
初期費用 |
敷金1ヶ月 (9万円)礼金-保証金-敷引き償却金- |
更新料 |
90,000円 |
鍵交換費用 |
16,500円 |
室内清掃費用 |
- |
駐車場料金 |
空無し |
損保・ |
借家賠付きの火災保険にご加入いただきます。 |
保証会社 |
加入要 保証会社利用料:初回:総賃料×30%~更新:1万円/年 |
契約期間 |
2年 |
入居可能日 |
相談 |
フリーレント期間 |
- |
取引形態 |
一般媒介 |
備考 |
- |
ARECX八幡 ***号室の建物情報
建物名称 |
ARECX八幡 |
|---|---|
最寄駅 |
|
所在地 |
千葉県市原市八幡 |
階層 |
4階部分(地上9階建) |
構造 |
RC |
築年数 |
1988年5月(築38年) |
駐車場 |
空無し |
小学校学区 |
八幡小学校 |
中学校学区 |
八幡中学校 |
- 学区データについて
- ※学区データは必ずしも正確とは限りません。詳細に関しては最寄店舗または各自治体の教育委員会に必ずご確認ください。
無料この物件に問い合わせ
- ARECX八幡 ***号室

-
9万円
(共益費
4,000円)
- 敷
- 1ヶ月
- 礼
- -
- 保
- -
- 償
- -
ARECX八幡 ***号室の物件のお問い合わせ先・取り扱い店舗
ハウスコム 千葉店
- アクセス
-
総武本線「千葉駅」東口徒歩1分
総武線・中央線各駅停車「千葉駅」東口徒歩1分
- 住所
- 〒260-0015 千葉県千葉市中央区富士見1丁目2−11 勝山ビル 4階
- 営業時間
- 10:00~18:00
- 定休日
- なし
- 営業エリア
- 千葉市内~千葉県内全域
- 取引態様
- 賃貸仲介業



















