レオパレス新城 104号室(1階/1K)の賃貸物件(賃貸アパート)
愛知県新城市にあるレオパレス新城 104号室はバス・トイレ別、温水洗浄便座、エアコン、家具付、1階などが特徴です。最寄り駅の飯田線茶臼山駅から徒歩2分です。レオパレス新城 104号室の詳細はハウスコム 豊橋店までお気軽にお問い合わせください!
情報更新日:
次回更新予定日:
※次回更新予定日について:お店側では順次空室確認を行っていますが、次回更新予定日までに空室確認が行えない場合には、この物件情報は自動的に削除されます。
レオパレス新城 104号室の賃貸物件部屋概要
家賃 |
5.8万円
初期費用を |
|---|---|
共益費 |
5,000円
入居可能時期 |
敷金/礼金 |
- / 58,000円 |
保証金/ |
- / - |
最寄駅 |
|
所在地 |
愛知県新城市富沢 |
部屋番号 |
104号室 |
間取り |
1K |
専有面積 |
26.49㎡ |
築年数 |
2001年6月(築25年) |
階数 |
1階部分(地上2階建) |
方位・位置 |
ー / その他 |
物件種別 |
賃貸アパート |
構造 |
木造 |
駐車場 |
7,150円 |
小学校学区 |
東郷西小学校 |
中学校学区 |
東郷中学校 |
他の空き部屋 |
105号室 202号室 204号室 |
- 学区データについて
- ※学区データは必ずしも正確とは限りません。詳細に関しては最寄店舗または各自治体の教育委員会に必ずご確認ください。
レオパレス新城 104号室の特徴
契約条件
敷金が無料なため、初期費用が比較的安くなる傾向にあります。
室内設備
トイレは、温水洗浄便座機能付きになります。 洗濯に便利な設備として、室内洗濯機置場があります。
居室状況
エアコンが設置されています。 家具が備え付けられており、入居後すぐ生活が始められます。
周辺施設
この物件の学区は、東郷西小学校区・東郷中学校区です。
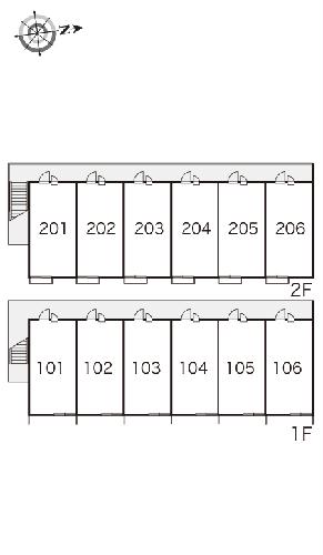
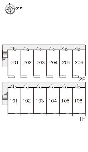
レオパレス新城 104号室の間取り
間取り:1K
間取詳細:1K
専有面積:26.49㎡
方位:ー
部屋位置:その他
レオパレス新城 104号室の設備
バス・トイレ
バス・トイレ別
温水洗浄便座
収納
トランクルーム
室内設備
エアコン
室内洗濯機置場
家具付
位置・立地
1階
ライフステージ
一人暮らしに人気の設備
カップルに人気の設備
家族に人気の設備
夫婦に人気の設備
三世代で人気の設備
こだわり
雨の日でも洗濯したい
寝るためだけの部屋
レオパレス新城 104号室の賃貸契約情報
毎月支払う |
家賃5.8万円/月共益費5,000円/月 |
|---|---|
初期費用 |
敷金-礼金58,000円保証金-敷引き償却金- |
更新料 |
- |
鍵交換費用 |
16,500円 |
室内清掃費用 |
41,800円 |
抗菌施工(任意) |
23,760円 |
駐車場料金 |
7,150円 |
損保・ |
借家賠付きの火災保険にご加入いただきます。 |
保証会社 |
加入要 保証会社利用料:保証料:53150円(契約内容により100~120%で変動有)※記載金額は120%の場合 |
契約期間 |
- |
入居可能日 |
即入居可 |
フリーレント期間 |
- |
取引形態 |
一般媒介 |
備考 |
- |
レオパレス新城 104号室の建物情報
建物名称 |
レオパレス新城 |
|---|---|
最寄駅 |
|
所在地 |
愛知県新城市富沢 |
階層 |
1階部分(地上2階建) |
構造 |
木造 |
築年数 |
2001年6月(築25年) |
駐車場 |
7,150円 |
小学校学区 |
東郷西小学校 |
中学校学区 |
東郷中学校 |
- 学区データについて
- ※学区データは必ずしも正確とは限りません。詳細に関しては最寄店舗または各自治体の教育委員会に必ずご確認ください。
無料この物件に問い合わせ
- レオパレス新城 104号室

-
5.8万円
(共益費
5,000円)
- 敷
- -
- 礼
- 58,000円
- 保
- -
- 償
- -
レオパレス新城 104号室の物件のお問い合わせ先・取り扱い店舗
ハウスコム 豊橋店
水曜日営業
土日営業
年中無休(年末年始などを除く)
- アクセス
-
東海道本線(JR東海)「豊橋駅」西口徒歩9分
- 住所
- 〒441-8023 愛知県豊橋市八通町105
- 営業時間
- 10:00~18:00
- 定休日
- なし
- 営業エリア
- 豊橋市,豊川市,田原市,湖西市,新城市,蒲郡市,
- 取引態様
- 賃貸仲介業
お問い合わせNo. HC5-2056787-104-0094















