レオパレスウエスト ヴァリー 210号室(2階/1K)の賃貸物件(賃貸アパート)
静岡県富士市にあるレオパレスウエスト ヴァリー 210号室はバス・トイレ別、エアコン、家具付、平面駐車場、保証人不要などが特徴です。最寄り駅の東海道・山陽新幹線(JR東海・東海道新幹線)新富士駅から徒歩25分です。レオパレスウエスト ヴァリー 210号室の詳細はハウスコム 富士店までお気軽にお問い合わせください!
情報更新日:
次回更新予定日:
※次回更新予定日について:お店側では順次空室確認を行っていますが、次回更新予定日までに空室確認が行えない場合には、この物件情報は自動的に削除されます。
レオパレスウエスト ヴァリー 210号室の賃貸物件部屋概要
家賃 |
4.8万円
初期費用を |
|---|---|
共益費 |
4,000円
入居可能時期 |
敷金/礼金 |
- / - |
保証金/ |
- / - |
最寄駅 |
|
所在地 |
静岡県富士市五貫島 |
部屋番号 |
210号室 |
間取り |
1K |
専有面積 |
23.18㎡ |
築年数 |
2006年3月(築20年) |
階数 |
2階部分(地上2階建) |
方位・位置 |
ー / その他 |
物件種別 |
賃貸アパート |
構造 |
木造 |
駐車場 |
5,500円 |
小学校学区 |
富士南小学校 |
中学校学区 |
富士南中学校 |
他の空き部屋 |
109号室 205号室 |
- 学区データについて
- ※学区データは必ずしも正確とは限りません。詳細に関しては最寄店舗または各自治体の教育委員会に必ずご確認ください。
レオパレスウエスト ヴァリー 210号室の特徴
契約条件
ご契約時に保証人は不要です。 敷金と礼金が無料なため、初期費用が比較的安くなる傾向にあります。
セキュリティ
この物件の建物には、宅配ボックスが設置されており、来客時には居室内のテレビモニターにて訪問者の顔を確認することができます。
室内設備
電気コンロが備え付けられています。 洗濯に便利な設備として、室内洗濯機置場があります。
居室状況
エアコンが設置されています。 家具が備え付けられており、入居後すぐ生活が始められます。
建物設備共用部分
建物の共用スペースに、急な外出や不在がちのご家庭の荷物受け取りに便利な宅配ボックスが設置されています。 平面駐車場があります。駐輪場が利用できます。
周辺施設
この物件の学区は、富士南小学校区・富士南中学校区です。
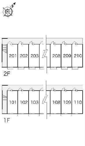
レオパレスウエスト ヴァリー 210号室の間取り
間取り:1K
間取詳細:1K
専有面積:23.18㎡
方位:ー
部屋位置:その他
レオパレスウエスト ヴァリー 210号室の設備
キッチン
電気コンロ
バス・トイレ
バス・トイレ別
玄関
TVモニタ付インターホン
宅配ボックス
室内設備
エアコン
室内洗濯機置場
家具付
位置・立地
2階以上
最上階
インフラ
インターネット可
プロパンガス
建物設備
駐車場
平面駐車場
駐輪場
入居条件
保証人不要
ライフステージ
一人暮らしに人気の設備
カップルに人気の設備
家族に人気の設備
夫婦に人気の設備
三世代で人気の設備
こだわり
雨の日でも洗濯したい
寝るためだけの部屋
レオパレスウエスト ヴァリー 210号室の賃貸契約情報
毎月支払う |
家賃4.8万円/月共益費4,000円/月 |
|---|---|
初期費用 |
敷金-礼金-保証金-敷引き償却金- |
更新料 |
- |
鍵交換費用 |
16,500円 |
室内清掃費用 |
41,800円 |
抗菌施工(任意) |
23,760円 |
駐車場料金 |
5,500円 |
損保・ |
借家賠付きの火災保険にご加入いただきます。 |
保証会社 |
加入要 保証会社利用料:保証料:53390円(契約内容により100~120%で変動有)※記載金額は120%の場合 |
契約期間 |
- |
入居可能日 |
即入居可 |
フリーレント期間 |
- |
取引形態 |
一般媒介 |
備考 |
鍵交換費10450円、抗菌施工(任意)18040円から23760円(税込)/環境維持費550円/月、更新手数料16500円/2年(税込)/基本清掃料:31350円(税込) |
レオパレスウエスト ヴァリー 210号室の建物情報
建物名称 |
レオパレスウエスト ヴァリー |
|---|---|
最寄駅 |
|
所在地 |
静岡県富士市五貫島 |
階層 |
2階部分(地上2階建) |
構造 |
木造 |
築年数 |
2006年3月(築20年) |
駐車場 |
5,500円 |
小学校学区 |
富士南小学校 |
中学校学区 |
富士南中学校 |
- 学区データについて
- ※学区データは必ずしも正確とは限りません。詳細に関しては最寄店舗または各自治体の教育委員会に必ずご確認ください。
無料この物件に問い合わせ
- レオパレスウエスト ヴァリー 210号室

-
4.8万円
(共益費
4,000円)
- 敷
- -
- 礼
- -
- 保
- -
- 償
- -
レオパレスウエスト ヴァリー 210号室の物件のお問い合わせ先・取り扱い店舗
ハウスコム 富士店
- アクセス
-
東海道本線(JR東海)「富士駅」徒歩16分
- 住所
- 〒416-0906 静岡県富士市本市場220−7
- 営業時間
- 10:00~18:00
- 定休日
- なし
- 営業エリア
- 富士市、富士宮市 静岡市清水区 沼津市
- 取引態様
- 賃貸仲介業



























