レオパレスラ ヴェルジェⅡ 203号室(2階/1K)の賃貸物件(賃貸アパート)
神奈川県秦野市にあるレオパレスラ ヴェルジェⅡ 203号室は温水洗浄便座、宅配ボックス、シューズボックス、最上階、オンライン内見可などが特徴です。最寄り駅の小田急小田原線東海大学前駅からバスで10分、町内会館前から徒歩5分です。レオパレスラ ヴェルジェⅡ 203号室の詳細はハウスコム 秦野店までお気軽にお問い合わせください!
情報更新日:
次回更新予定日:
※次回更新予定日について:お店側では順次空室確認を行っていますが、次回更新予定日までに空室確認が行えない場合には、この物件情報は自動的に削除されます。
レオパレスラ ヴェルジェⅡ 203号室の賃貸物件部屋概要
家賃 |
4.5万円
初期費用を |
|---|---|
共益費 |
5,000円
入居可能時期 |
敷金/礼金 |
- / - |
保証金/ |
- / - |
最寄駅 |
|
所在地 |
神奈川県秦野市南矢名 |
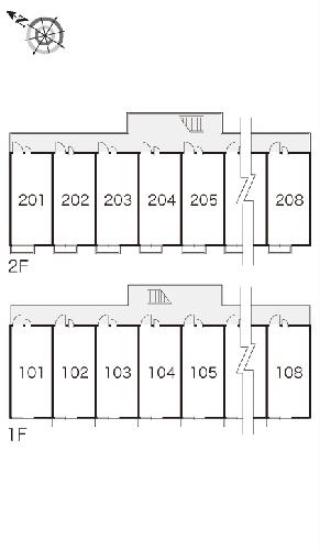
部屋番号 |
203号室 |
間取り |
1K |
専有面積 |
23.18㎡ |
築年数 |
2006年7月(築20年) |
階数 |
2階部分(地上2階建) |
方位・位置 |
ー / その他 |
物件種別 |
賃貸アパート |
構造 |
木造 |
駐車場 |
6,050円 |
小学校学区 |
大根小学校 |
中学校学区 |
大根中学校 |
他の空き部屋 |
101号室 102号室 103号室 104号室 105号室 106号室 108号室 204号室 206号室 207号室 |
- 学区データについて
- ※学区データは必ずしも正確とは限りません。詳細に関しては最寄店舗または各自治体の教育委員会に必ずご確認ください。
レオパレスラ ヴェルジェⅡ 203号室の特徴
契約条件
敷金と礼金が無料なため、初期費用が比較的安くなる傾向にあります。
セキュリティ
この物件の建物には、宅配ボックスが設置されており、来客時には居室内のテレビモニターにて訪問者の顔を確認することができます。
室内設備
トイレは、温水洗浄便座機能付きになります。 洗濯に便利な設備として、室内洗濯機置場があります。
居室状況
エアコンが設置されています。 収納スペースとして、玄関にはシューズボックスがあります。
建物設備共用部分
建物の共用スペースに、急な外出や不在がちのご家庭の荷物受け取りに便利な宅配ボックスが設置されています。
周辺施設
この物件の学区は、大根小学校区・大根中学校区です。
レオパレスラ ヴェルジェⅡ 203号室の間取り
間取り:1K
間取詳細:1K
専有面積:23.18㎡
方位:ー
部屋位置:その他
レオパレスラ ヴェルジェⅡ 203号室の設備
バス・トイレ
バス・トイレ別
温水洗浄便座
玄関
TVモニタ付インターホン
宅配ボックス
収納
シューズボックス
室内設備
エアコン
室内洗濯機置場
位置・立地
2階以上
最上階
インフラ
インターネット可
入居条件
オンライン相談可
オンライン内見可
即入居可
ライフステージ
一人暮らしに人気の設備
カップルに人気の設備
家族に人気の設備
夫婦に人気の設備
三世代で人気の設備
こだわり
雨の日でも洗濯したい
寝るためだけの部屋
レオパレスラ ヴェルジェⅡ 203号室の賃貸契約情報
毎月支払う |
家賃4.5万円/月共益費5,000円/月 |
|---|---|
初期費用 |
敷金-礼金-保証金-敷引き償却金- |
更新料 |
- |
鍵交換費用 |
16,500円 |
室内清掃費用 |
41,800円 |
抗菌施工(任意) |
23,760円 |
駐車場料金 |
6,050円 |
損保・ |
借家賠付きの火災保険にご加入いただきます。 |
保証会社 |
加入要 保証会社利用料:保証料:44390円(契約内容により100~120%で変動有)※記載金額は120%の場合 |
契約期間 |
- |
入居可能日 |
即入居可 |
フリーレント期間 |
- |
取引形態 |
一般媒介 |
備考 |
鍵交換費10450円、退去時清掃費41800円、抗菌施工(任意)18040円から23760円(税込)/環境維持費550円/月、更新手数料16500円/2年(税込)/退去時清掃費:41800円(税込) |
レオパレスラ ヴェルジェⅡ 203号室の建物情報
建物名称 |
レオパレスラ ヴェルジェⅡ |
|---|---|
最寄駅 |
|
所在地 |
神奈川県秦野市南矢名 |
階層 |
2階部分(地上2階建) |
構造 |
木造 |
築年数 |
2006年7月(築20年) |
駐車場 |
6,050円 |
小学校学区 |
大根小学校 |
中学校学区 |
大根中学校 |
- 学区データについて
- ※学区データは必ずしも正確とは限りません。詳細に関しては最寄店舗または各自治体の教育委員会に必ずご確認ください。
無料この物件に問い合わせ
- レオパレスラ ヴェルジェⅡ 203号室

-
4.5万円
(共益費
5,000円)
- 敷
- -
- 礼
- -
- 保
- -
- 償
- -
レオパレスラ ヴェルジェⅡ 203号室の物件のお問い合わせ先・取り扱い店舗
ハウスコム 秦野店
- アクセス
-
小田急小田原線「秦野駅」徒歩1分
- 住所
- 〒257-0034 神奈川県秦野市大秦町1−1 小田急マルシェ秦野 2階
- 営業時間
- 10:00~18:00
- 定休日
- 水曜日
- 営業エリア
- 秦野市 伊勢原市 平塚市 南足柄市 足柄上郡中井町 開成町 松田町 大井町 足柄上郡二宮町
- 取引態様
- 賃貸仲介業



















