RJR堺筋本町タワー ***号室(10階/2LDK)の賃貸物件(賃貸マンション)
大阪府大阪市中央区にあるRJR堺筋本町タワー ***号室は宅配ボックス、防犯カメラ、バイク置き場、耐震構造、免震構造などが特徴です。最寄り駅の大阪メトロ 中央線堺筋本町駅から徒歩1分です。RJR堺筋本町タワー ***号室の詳細はミニミニ FC南森町店までお気軽にお問い合わせください!
情報更新日:
次回更新予定日:
※次回更新予定日について:お店側では順次空室確認を行っていますが、次回更新予定日までに空室確認が行えない場合には、この物件情報は自動的に削除されます。
RJR堺筋本町タワー ***号室の賃貸物件部屋概要
家賃 |
16.5万円
初期費用を |
|---|---|
共益費 |
10,000円
入居可能時期 |
敷金/礼金 |
1ヶ月 / 2ヶ月 |
保証金/ |
- / - |
最寄駅 |
|
所在地 |
大阪府大阪市中央区南本町 |
部屋番号 |
***号室 |
間取り |
2LDK(LDK13.8・洋4.4・洋4) |
専有面積 |
52.98㎡ |
築年数 |
2021年1月(築6年) |
階数 |
10階部分(地上37階地下1階建) |
方位・位置 |
西 / その他 |
物件種別 |
賃貸マンション |
構造 |
RC |
駐車場 |
無 |
小学校学区 |
開平小学校 |
中学校学区 |
東中学校 |
他の空き部屋 |
***号室 ***号室 ***号室 ***号室 |
- 学区データについて
- ※学区データは必ずしも正確とは限りません。詳細に関しては最寄店舗または各自治体の教育委員会に必ずご確認ください。
RJR堺筋本町タワー ***号室の特徴
-
一人暮らしに人気の設備

-
カップルに人気の設備

-
家族に人気の設備

-
夫婦に人気の設備

-
三世代で人気の設備

-
地震対策された建物

-
セキュリティ対策重視

-
外で子どもと遊びたい

-
雨の日でも洗濯したい

-
洋室で暮らしたい

-
推し活グッズを飾りたい

-
オークション・通販が好き

-
ガーデニングが好き

契約条件
この物件は、2人入居もご契約できます。
セキュリティ
この物件の建物には、オートロックや防犯カメラや宅配ボックスが設置されており、来客時には居室内のテレビモニターにて訪問者の顔を確認することができます。
室内設備
システムキッチンには、2つ以上のガスコンロが備え付けられています。 お風呂とトイレは別です。お風呂には、追い焚き機能が備わっています。 トイレは、温水洗浄便座機能付きになります。 女性に嬉しい設備のシャワーの付いている洗面化粧台があります。 洗濯に便利な設備として、室内洗濯機置場があります。浴室乾燥機も設置されているので、梅雨時の生乾き臭も比較的防ぐことができます。
居室状況
お部屋の床は、フローリングとなっており、エアコンが設置されています。 インターネットも無料で入居後すぐ生活が始められます。 収納スペースとして、基本的な居室にクローゼットを設置、玄関にはシューズボックスがあります。
建物設備共用部分
居室外の専有スペースとして、洗濯物を干すなどの用途として利用できるバルコニーがあります。 建物の共用スペースに、日々の出入に便利なエレベーターや、いざという時の防犯カメラや、急な外出や不在がちのご家庭の荷物受け取りに便利な宅配ボックスが設置されています。 駐輪場、バイク置き場が利用できます。 この物件の建物は、建物全体をしっかり固定することで、地震の揺れに耐えるように設計された耐震構造の建築物です。
周辺施設
この物件の学区は、開平小学校区・東中学校区です。
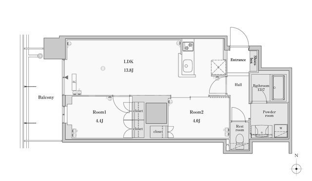
RJR堺筋本町タワー ***号室の間取り
間取り:2LDK
間取詳細:2LDK(LDK13.8・洋4.4・洋4)
専有面積:52.98㎡
方位:西
部屋位置:その他
RJR堺筋本町タワー ***号室の設備
キッチン
システムキッチン
カウンターキッチン
ガスコンロ
ガスコンロ二口以上
バス・トイレ
バス・トイレ別
追い焚き
浴室乾燥機
温水洗浄便座
独立洗面台
シャワー付洗面化粧台
玄関
TVモニタ付インターホン
オートロック
宅配ボックス
収納
クローゼット
シューズボックス
バルコニー
バルコニー
ルーフバルコニー
室内設備
エアコン
フローリング
室内洗濯機置場
位置・立地
2階以上
インフラ
インターネット可
BS
CS
都市ガス
建物設備
エレベーター
防犯カメラ
駐輪場
バイク置き場
耐震構造
免震構造
入居条件
2人入居可
オンライン相談可
オンライン内見可
即入居可
ライフステージ
一人暮らしに人気の設備
カップルに人気の設備
家族に人気の設備
夫婦に人気の設備
三世代で人気の設備
トレンド
地震対策された建物
こだわり
セキュリティ対策重視
外で子どもと遊びたい
雨の日でも洗濯したい
洋室で暮らしたい
趣味
推し活グッズを飾りたい
オークション・通販が好き
ガーデニングが好き
お得な条件
インターネット無料
RJR堺筋本町タワー ***号室の賃貸契約情報
毎月支払う |
家賃16.5万円/月共益費10,000円/月 |
|---|---|
初期費用 |
敷金1ヶ月 (16.5万円)礼金2ヶ月 (33万円)保証金-敷引き償却金- |
更新料 |
165,000円 |
鍵交換費用 |
- |
室内清掃費用 |
- |
口座振替事務手数料 |
110円 |
駐車場料金 |
無 |
損保・ |
借家賠付きの火災保険にご加入いただきます。 |
保証会社 |
加入要 保証会社利用料:エポス 初回40% 毎月総賃料の1% |
契約期間 |
2年 |
入居可能日 |
即入居可 |
フリーレント期間 |
- |
取引形態 |
一般媒介 |
備考 |
- |
RJR堺筋本町タワー ***号室の建物情報
建物名称 |
RJR堺筋本町タワー |
|---|---|
最寄駅 |
|
所在地 |
大阪府大阪市中央区南本町 |
階層 |
10階部分(地上37階地下1階建) |
構造 |
RC |
築年数 |
2021年1月(築6年) |
駐車場 |
無 |
小学校学区 |
開平小学校 |
中学校学区 |
東中学校 |
- 学区データについて
- ※学区データは必ずしも正確とは限りません。詳細に関しては最寄店舗または各自治体の教育委員会に必ずご確認ください。
無料この物件に問い合わせ
- RJR堺筋本町タワー ***号室

-
16.5万円
(共益費
10,000円)
- 敷
- 1ヶ月
- 礼
- 2ヶ月
- 保
- -
- 償
- -
RJR堺筋本町タワー ***号室の物件のお問い合わせ先・取り扱い店舗
ミニミニ FC南森町店
- アクセス
-
大阪メトロ 谷町線「南森町駅」徒歩1分
大阪メトロ 堺筋線「南森町駅」徒歩1分
JR東西線「大阪天満宮駅」徒歩2分
- 住所
- 〒530-0041 大阪府大阪市北区天神橋2-3-19 AXIS南森町ⅢBLD. 1F
- 営業時間
- 10:00~18:00
- 定休日
- なし
- 営業エリア
- 大阪市北区,大阪市都島区,大阪市中央区,大阪市旭区,大阪市淀川区,大阪市福島区,大阪市西区,大阪市東淀川区
- 取引態様
- 賃貸仲介業





























