エレガンス東高円寺 403号室(4階/1R)の賃貸物件(賃貸マンション)
東京都杉並区にあるエレガンス東高円寺 403号室はバルコニー、2階以上、南向き、分譲賃貸、オンライン相談可などが特徴です。最寄り駅の東京メトロ 丸ノ内線東高円寺駅から徒歩3分です。エレガンス東高円寺 403号室の詳細はハウスコム 高円寺店までお気軽にお問い合わせください!
情報更新日:
次回更新予定日:
※次回更新予定日について:お店側では順次空室確認を行っていますが、次回更新予定日までに空室確認が行えない場合には、この物件情報は自動的に削除されます。
エレガンス東高円寺 403号室の賃貸物件部屋概要
家賃 |
8.2万円
初期費用を |
|---|---|
共益費 |
15,000円
入居可能時期 |
敷金/礼金 |
1ヶ月 / 1ヶ月 |
保証金/ |
- / 1ヶ月 |
最寄駅 |
|
所在地 |
東京都杉並区和田 |
部屋番号 |
403号室 |
間取り |
1R |
専有面積 |
22.23㎡ |
築年数 |
1992年8月(築34年) |
階数 |
4階部分(地上7階地下1階建) |
方位・位置 |
南 / 角部屋 |
物件種別 |
賃貸マンション |
構造 |
RC |
駐車場 |
無 |
小学校学区 |
杉並第十小学校 |
中学校学区 |
高南中学校 |
他の空き部屋 |
403号室 |
- 学区データについて
- ※学区データは必ずしも正確とは限りません。詳細に関しては最寄店舗または各自治体の教育委員会に必ずご確認ください。
エレガンス東高円寺 403号室の特徴
-
一人暮らしに人気の設備

-
カップルに人気の設備

-
家族に人気の設備

-
夫婦に人気の設備

-
三世代で人気の設備

-
外で子どもと遊びたい

-
身だしなみに気をつかいたい

-
雨の日でも洗濯したい

-
洋室で暮らしたい

-
ガーデニングが好き

室内設備
システムキッチンには、IHコンロが備え付けられています。 トイレは、温水洗浄便座機能付きになります。 女性に嬉しい設備の独立した洗面化粧台があります。 洗濯に便利な設備として、室内洗濯機置場があります。浴室乾燥機も設置されているので、梅雨時の生乾き臭も比較的防ぐことができます。
居室状況
お部屋の床は、フローリングとなっており、エアコンが設置されています。
建物設備共用部分
居室外の専有スペースとして、洗濯物を干すなどの用途として利用できるバルコニーがあります。
周辺施設
この物件の学区は、杉並第十小学校区・高南中学校区です。
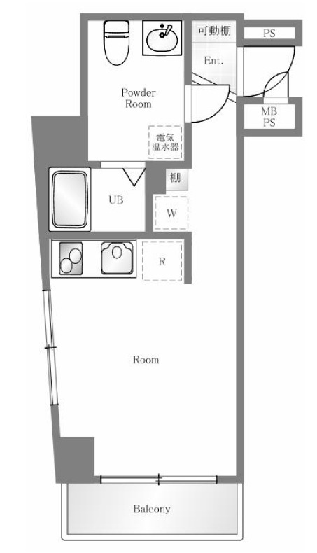
エレガンス東高円寺 403号室の間取り
間取り:1R
間取詳細:1R
専有面積:22.23㎡
方位:南
部屋位置:角部屋
エレガンス東高円寺 403号室の設備
キッチン
システムキッチン
IHコンロ
バス・トイレ
バス・トイレ別
浴室乾燥機
温水洗浄便座
独立洗面台
バルコニー
バルコニー
ルーフバルコニー
室内設備
エアコン
フローリング
室内洗濯機置場
位置・立地
2階以上
角部屋
南向き
建物設備
分譲賃貸
入居条件
オンライン相談可
オンライン内見可
ライフステージ
一人暮らしに人気の設備
カップルに人気の設備
家族に人気の設備
夫婦に人気の設備
三世代で人気の設備
こだわり
外で子どもと遊びたい
身だしなみに気をつかいたい
雨の日でも洗濯したい
洋室で暮らしたい
趣味
ガーデニングが好き
エレガンス東高円寺 403号室の賃貸契約情報
毎月支払う |
家賃8.2万円/月共益費15,000円/月 |
|---|---|
初期費用 |
敷金1ヶ月 (8.2万円)礼金1ヶ月 (8.2万円)保証金-敷引き償却金1ヶ月 |
更新料 |
82,000円 |
鍵交換費用 |
33,000円 |
室内清掃費用 |
- |
24時間駆けつけサービス(2年) |
16,500円 |
入居時抗菌費用 |
13,200円 |
駐車場料金 |
無 |
損保・ |
借家賠付きの火災保険にご加入いただきます。 |
保証会社 |
加入要 保証会社利用料:初回:総賃料50%~ 継続:10000円/年 |
契約期間 |
2年 |
入居可能日 |
2026年03月上旬 |
フリーレント期間 |
- |
取引形態 |
一般媒介 |
備考 |
- |
エレガンス東高円寺 403号室の建物情報
建物名称 |
エレガンス東高円寺 |
|---|---|
最寄駅 |
|
所在地 |
東京都杉並区和田 |
階層 |
4階部分(地上7階地下1階建) |
構造 |
RC |
築年数 |
1992年8月(築34年) |
駐車場 |
無 |
小学校学区 |
杉並第十小学校 |
中学校学区 |
高南中学校 |
- 学区データについて
- ※学区データは必ずしも正確とは限りません。詳細に関しては最寄店舗または各自治体の教育委員会に必ずご確認ください。
無料この物件に問い合わせ
- エレガンス東高円寺 403号室

-
8.2万円
(共益費
15,000円)
- 敷
- 1ヶ月
- 礼
- 1ヶ月
- 保
- -
- 償
- 1ヶ月
エレガンス東高円寺 403号室の物件のお問い合わせ先・取り扱い店舗
ハウスコム 高円寺店
- アクセス
-
中央本線(JR東日本)「高円寺駅」北口徒歩1分
- 住所
- 〒166-0002 東京都杉並区高円寺北2-4-5 ロータリービル2階
- 営業時間
- 10:00~18:00
- 定休日
- 水曜日
- 営業エリア
- 【杉並区・中野区・練馬区・新宿区・世田谷区・武蔵野市】
- 取引態様
- 賃貸仲介業


