リテラス川崎ウエスト 502号室(5階/1LDK)の賃貸物件(賃貸マンション)
神奈川県川崎市川崎区にあるリテラス川崎ウエスト 502号室はバス・トイレ別、宅配ボックス、ルーフバルコニー、フローリング、2階以上などが特徴です。最寄り駅の南武線八丁畷駅から徒歩4分です。リテラス川崎ウエスト 502号室の詳細はハウスコム 鶴見店までお気軽にお問い合わせください!
情報更新日:
次回更新予定日:
※次回更新予定日について:お店側では順次空室確認を行っていますが、次回更新予定日までに空室確認が行えない場合には、この物件情報は自動的に削除されます。
リテラス川崎ウエスト 502号室の賃貸物件部屋概要
家賃 |
16.9万円
初期費用を |
|---|---|
共益費 |
18,000円
入居可能時期 |
敷金/礼金 |
1ヶ月 / - |
保証金/ |
- / - |
最寄駅 |
|
所在地 |
神奈川県川崎市川崎区堤根 |
部屋番号 |
502号室 |
間取り |
1LDK(LDK13.5・洋4.9) |
専有面積 |
41.88㎡ |
築年数 |
新築 |
階数 |
5階部分(地上5階建) |
方位・位置 |
南西 / その他 |
物件種別 |
賃貸マンション |
構造 |
RC |
駐車場 |
15,400円 |
小学校学区 |
川崎小学校 |
中学校学区 |
川崎中学校 |
他の空き部屋 |
116号室 117号室 119号室 202号室 219号室 220号室 223号室 302号室 314号室 316号室 318号室 319号室 320号室 323号室 402号室 413号室 416号室 |
- 学区データについて
- ※学区データは必ずしも正確とは限りません。詳細に関しては最寄店舗または各自治体の教育委員会に必ずご確認ください。
リテラス川崎ウエスト 502号室の特徴
-
一人暮らしに人気の設備

-
カップルに人気の設備

-
家族に人気の設備

-
夫婦に人気の設備

-
三世代で人気の設備

-
外で子どもと遊びたい

-
身だしなみに気をつかいたい

-
雨の日でも洗濯したい

-
洋室で暮らしたい

-
料理が好き

-
推し活グッズを飾りたい

-
オークション・通販が好き

-
ガーデニングが好き

契約条件
この物件は、2人入居もご契約できます。 また、ご契約時に保証人は不要です。 礼金が無料なため、初期費用が比較的安くなる傾向にあります。
セキュリティ
この物件の建物には、オートロックや防犯カメラや宅配ボックスが設置されております。
室内設備
システムキッチンには、ガスコンロが備え付けられています。 お風呂とトイレは別です。お風呂には、追い焚き機能が備わっています。 トイレは、温水洗浄便座機能付きになります。 女性に嬉しい設備の独立した洗面化粧台があります。 洗濯に便利な設備として、室内洗濯機置場があります。浴室乾燥機も設置されているので、梅雨時の生乾き臭も比較的防ぐことができます。
居室状況
お部屋の床は、フローリングとなっており、エアコンが設置されています。 インターネットも無料で入居後すぐ生活が始められます。 収納スペースとして、基本的な居室にクローゼットを設置、玄関にはシューズボックスがあります。
建物設備共用部分
居室外の専有スペースとして、洗濯物を干すなどの用途として利用できるバルコニーがあります。 建物の共用スペースに、日々の出入に便利なエレベーターや、いざという時の防犯カメラや、急な外出や不在がちのご家庭の荷物受け取りに便利な宅配ボックスが設置されています。 駐輪場、バイク置き場が利用できます。
周辺施設
この物件の学区は、川崎小学校区・川崎中学校区です。
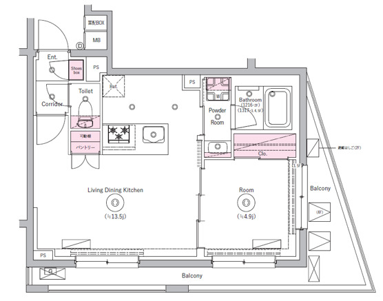
リテラス川崎ウエスト 502号室の間取り
間取り:1LDK
間取詳細:1LDK(LDK13.5・洋4.9)
専有面積:41.88㎡
方位:南西
部屋位置:その他
リテラス川崎ウエスト 502号室の設備
キッチン
システムキッチン
カウンターキッチン
ガスコンロ
バス・トイレ
バス・トイレ別
追い焚き
浴室乾燥機
温水洗浄便座
独立洗面台
玄関
オートロック
宅配ボックス
収納
クローゼット
シューズボックス
トランクルーム
バルコニー
バルコニー
ルーフバルコニー
室内設備
エアコン
フローリング
室内洗濯機置場
位置・立地
2階以上
最上階
インフラ
インターネット可
都市ガス
建物設備
エレベーター
防犯カメラ
駐輪場
バイク置き場
分譲賃貸
入居条件
2人入居可
保証人不要
ライフステージ
一人暮らしに人気の設備
カップルに人気の設備
家族に人気の設備
夫婦に人気の設備
三世代で人気の設備
こだわり
外で子どもと遊びたい
身だしなみに気をつかいたい
雨の日でも洗濯したい
洋室で暮らしたい
趣味
料理が好き
推し活グッズを飾りたい
オークション・通販が好き
ガーデニングが好き
お得な条件
フリーレント
インターネット無料
リテラス川崎ウエスト 502号室の賃貸契約情報
毎月支払う |
家賃16.9万円/月共益費18,000円/月 |
|---|---|
初期費用 |
敷金1ヶ月 (16.9万円)礼金-保証金-敷引き償却金- |
更新料 |
169,000円 |
鍵交換費用 |
- |
室内清掃費用 |
82,500円 |
駐車場料金 |
15,400円 |
損保・ |
借家賠付きの火災保険にご加入いただきます。 |
保証会社 |
加入要 保証会社:エルズサポート 保証会社利用料:初回50%、月額保証料700円、月額事務手数料330円~ 外国籍の方:GTNを利用。初回保証料100%(最低保証料40,000円)、月額保証料1,000円 |
契約期間 |
2年 |
入居可能日 |
2026年03月上旬 |
フリーレント期間 |
1ヶ月 |
取引形態 |
一般媒介 |
備考 |
- |
リテラス川崎ウエスト 502号室の建物情報
建物名称 |
リテラス川崎ウエスト |
|---|---|
最寄駅 |
|
所在地 |
神奈川県川崎市川崎区堤根 |
階層 |
5階部分(地上5階建) |
構造 |
RC |
築年数 |
新築 |
駐車場 |
15,400円 |
小学校学区 |
川崎小学校 |
中学校学区 |
川崎中学校 |
- 学区データについて
- ※学区データは必ずしも正確とは限りません。詳細に関しては最寄店舗または各自治体の教育委員会に必ずご確認ください。
無料この物件に問い合わせ
- リテラス川崎ウエスト 502号室

-
16.9万円
(共益費
18,000円)
- 敷
- 1ヶ月
- 礼
- -
- 保
- -
- 償
- -
リテラス川崎ウエスト 502号室の物件のお問い合わせ先・取り扱い店舗
ハウスコム 鶴見店
- アクセス
-
京浜東北・根岸線「鶴見駅」西口徒歩1分
- 住所
- 〒230-0062 神奈川県横浜市鶴見区豊岡町2−2 鶴見フーガ2 3階
- 営業時間
- 10:00~18:00
- 定休日
- 木曜日
- 営業エリア
- 鶴見区・神奈川区・川崎区・幸区
- 取引態様
- 賃貸仲介業


























