エクセル滝頭 407号室(4階/2DK)の賃貸物件(賃貸マンション)
神奈川県横浜市磯子区にあるエクセル滝頭 407号室は温水洗浄便座、ルーフバルコニー、室内洗濯機置場、2階以上、保証人不要などが特徴です。最寄り駅の京浜東北・根岸線根岸駅から徒歩17分です。エクセル滝頭 407号室の詳細はハウスコム 上大岡店までお気軽にお問い合わせください!
情報更新日:
次回更新予定日:
※次回更新予定日について:お店側では順次空室確認を行っていますが、次回更新予定日までに空室確認が行えない場合には、この物件情報は自動的に削除されます。
エクセル滝頭 407号室の賃貸物件部屋概要
家賃 |
9万円
初期費用を |
|---|---|
共益費 |
5,000円
入居可能時期 |
敷金/礼金 |
1ヶ月 / - |
保証金/ |
- / - |
最寄駅 |
|
所在地 |
神奈川県横浜市磯子区滝頭 |
部屋番号 |
407号室 |
間取り |
2DK |
専有面積 |
44.26㎡ |
築年数 |
1990年10月(築36年) |
階数 |
4階部分(地上5階地下1階建) |
方位・位置 |
ー / その他 |
物件種別 |
賃貸マンション |
構造 |
RC |
駐車場 |
- |
小学校学区 |
ー |
中学校学区 |
ー |
他の空き部屋 |
ー |
- 学区データについて
- ※学区データは必ずしも正確とは限りません。詳細に関しては最寄店舗または各自治体の教育委員会に必ずご確認ください。
エクセル滝頭 407号室の特徴
契約条件
この物件は、2人入居もご契約できます。 また、ご契約時に保証人は不要です。 礼金が無料なため、初期費用が比較的安くなる傾向にあります。
セキュリティ
来客時には居室内のテレビモニターにて訪問者の顔を確認することができます。
室内設備
トイレは、温水洗浄便座機能付きになります。 洗濯に便利な設備として、室内洗濯機置場があります。
居室状況
エアコンが設置されています。 照明器具が備え付けられており、入居後すぐ生活が始められます。 収納スペースとして、玄関にはシューズボックスがあります。
建物設備共用部分
居室外の専有スペースとして、洗濯物を干すなどの用途として利用できるバルコニーがあります。 建物の共用スペースに、日々の出入に便利なエレベーターが設置されています。
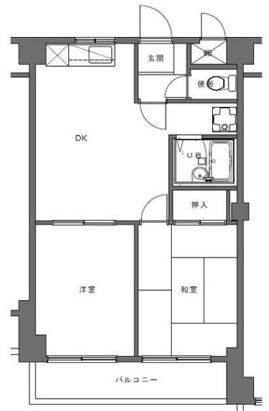
エクセル滝頭 407号室の間取り
間取り:2DK
間取詳細:2DK
専有面積:44.26㎡
方位:ー
部屋位置:その他
エクセル滝頭 407号室の設備
バス・トイレ
バス・トイレ別
温水洗浄便座
玄関
TVモニタ付インターホン
収納
シューズボックス
バルコニー
バルコニー
ルーフバルコニー
室内設備
エアコン
室内洗濯機置場
照明器具付
位置・立地
2階以上
建物設備
エレベーター
入居条件
2人入居可
保証人不要
ライフステージ
一人暮らしに人気の設備
カップルに人気の設備
家族に人気の設備
夫婦に人気の設備
三世代で人気の設備
こだわり
外で子どもと遊びたい
雨の日でも洗濯したい
趣味
ガーデニングが好き
エクセル滝頭 407号室の賃貸契約情報
毎月支払う |
家賃9万円/月共益費5,000円/月 |
|---|---|
初期費用 |
敷金1ヶ月 (9万円)礼金-保証金-敷引き償却金- |
更新料 |
90,000円 |
鍵交換費用 |
22,000円 |
室内清掃費用 |
- |
駐車場料金 |
- |
損保・ |
借家賠付きの火災保険にご加入いただきます。 |
保証会社 |
加入要 保証会社利用料:初回保証料として賃料等総額の50%、月額保証料として賃料等総額の1%、年間保証料10,500円 |
契約期間 |
2年 |
入居可能日 |
2026年03月中旬 |
フリーレント期間 |
- |
取引形態 |
一般媒介 |
備考 |
- |
エクセル滝頭 407号室の建物情報
建物名称 |
エクセル滝頭 |
|---|---|
最寄駅 |
|
所在地 |
神奈川県横浜市磯子区滝頭 |
階層 |
4階部分(地上5階地下1階建) |
構造 |
RC |
築年数 |
1990年10月(築36年) |
駐車場 |
- |
小学校学区 |
ー |
中学校学区 |
ー |
- 学区データについて
- ※学区データは必ずしも正確とは限りません。詳細に関しては最寄店舗または各自治体の教育委員会に必ずご確認ください。
無料この物件に問い合わせ
- エクセル滝頭 407号室

-
9万円
(共益費
5,000円)
- 敷
- 1ヶ月
- 礼
- -
- 保
- -
- 償
- -
エクセル滝頭 407号室の物件のお問い合わせ先・取り扱い店舗
ハウスコム 上大岡店
- アクセス
-
京急本線「上大岡駅」徒歩2分
- 住所
- 〒233-0002 神奈川県横浜市港南区上大岡西1丁目11−7 第10オーヴァルビル 1階
- 営業時間
- 10:00~18:00
- 定休日
- なし
- 営業エリア
- 横浜市南区,横浜市港南区,横浜市磯子区
- 取引態様
- 賃貸仲介業
















