レオパレスサニーハウスうるまⅡ 102号室(1階/1K)の賃貸物件(賃貸マンション)
沖縄県うるま市にあるレオパレスサニーハウスうるまⅡ 102号室は電気コンロ、バス・トイレ別、エアコン、1階、保証人不要などが特徴です。最寄り駅の沖縄都市モノレール県庁前駅からバスで91分、西田場から徒歩4分です。レオパレスサニーハウスうるまⅡ 102号室の詳細はハウスコム 小禄店までお気軽にお問い合わせください!
情報更新日:
次回更新予定日:
※次回更新予定日について:お店側では順次空室確認を行っていますが、次回更新予定日までに空室確認が行えない場合には、この物件情報は自動的に削除されます。
レオパレスサニーハウスうるまⅡ 102号室の賃貸物件部屋概要
家賃 |
4.6万円
初期費用を |
|---|---|
共益費 |
6,500円
入居可能時期 |
敷金/礼金 |
- / 69,000円 |
保証金/ |
- / - |
最寄駅 |
|
所在地 |
沖縄県うるま市みどり町 |
部屋番号 |
102号室 |
間取り |
1K |
専有面積 |
23.18㎡ |
築年数 |
2004年12月(築22年) |
階数 |
1階部分(地上2階建) |
方位・位置 |
ー / その他 |
物件種別 |
賃貸マンション |
構造 |
RC |
駐車場 |
無 |
小学校学区 |
天願小学校 |
中学校学区 |
あげな中学校 |
他の空き部屋 |
101号室 106号室 |
- 学区データについて
- ※学区データは必ずしも正確とは限りません。詳細に関しては最寄店舗または各自治体の教育委員会に必ずご確認ください。
レオパレスサニーハウスうるまⅡ 102号室の特徴
契約条件
この物件は、入居者が学生限定もしくは歓迎で2人入居もご契約できます。 また、ご契約時に保証人は不要です。 敷金が無料なため、初期費用が比較的安くなる傾向にあります。
セキュリティ
この物件の建物には、宅配ボックスが設置されております。
室内設備
電気コンロが備え付けられています。 洗濯に便利な設備として、室内洗濯機置場があります。
居室状況
エアコンが設置されています。
建物設備共用部分
建物の共用スペースに、急な外出や不在がちのご家庭の荷物受け取りに便利な宅配ボックスが設置されています。
周辺施設
この物件の学区は、天願小学校区・あげな中学校区です。
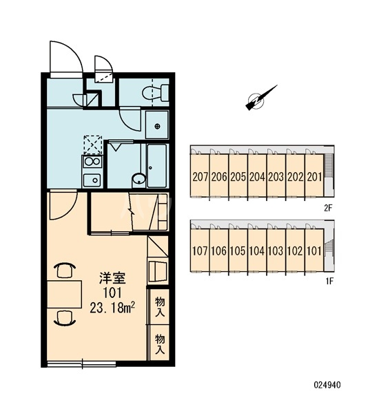
レオパレスサニーハウスうるまⅡ 102号室の間取り
間取り:1K
間取詳細:1K
専有面積:23.18㎡
方位:ー
部屋位置:その他
レオパレスサニーハウスうるまⅡ 102号室の設備
キッチン
電気コンロ
バス・トイレ
バス・トイレ別
玄関
宅配ボックス
室内設備
エアコン
室内洗濯機置場
位置・立地
1階
インフラ
インターネット可
入居条件
2人入居可
学生限定・歓迎
保証人不要
ライフステージ
一人暮らしに人気の設備
カップルに人気の設備
家族に人気の設備
夫婦に人気の設備
三世代で人気の設備
こだわり
雨の日でも洗濯したい
寝るためだけの部屋
レオパレスサニーハウスうるまⅡ 102号室の賃貸契約情報
毎月支払う |
家賃4.6万円/月共益費6,500円/月 |
|---|---|
初期費用 |
敷金-礼金69,000円保証金-敷引き償却金- |
更新料 |
- |
鍵交換費用 |
16,500円 |
室内清掃費用 |
41,800円 |
抗菌施工(任意) |
23,760円 |
駐車場料金 |
無 |
損保・ |
借家賠付きの火災保険にご加入いただきます。 |
保証会社 |
加入要 保証会社利用料:保証料:63590円(契約内容により100~120%で変動有)※記載金額は120%の場合 |
契約期間 |
- |
入居可能日 |
2026年04月中旬 |
フリーレント期間 |
- |
取引形態 |
一般媒介 |
備考 |
鍵交換費16500円、退去時清掃費41800円、抗菌施工(任意)18040円から23760円(税込)/環境維持費550円/月、更新手数料16500円/2年(税込)/火災保険要加入 |
レオパレスサニーハウスうるまⅡ 102号室の建物情報
建物名称 |
レオパレスサニーハウスうるまⅡ |
|---|---|
最寄駅 |
|
所在地 |
沖縄県うるま市みどり町 |
階層 |
1階部分(地上2階建) |
構造 |
RC |
築年数 |
2004年12月(築22年) |
駐車場 |
無 |
小学校学区 |
天願小学校 |
中学校学区 |
あげな中学校 |
- 学区データについて
- ※学区データは必ずしも正確とは限りません。詳細に関しては最寄店舗または各自治体の教育委員会に必ずご確認ください。
無料この物件に問い合わせ
- レオパレスサニーハウスうるまⅡ 102号室

-
4.6万円
(共益費
6,500円)
- 敷
- -
- 礼
- 69,000円
- 保
- -
- 償
- -
レオパレスサニーハウスうるまⅡ 102号室の物件のお問い合わせ先・取り扱い店舗
ハウスコム 小禄店
- アクセス
-
沖縄都市モノレール「小禄駅」徒歩5分
- 住所
- 〒901-0154 沖縄県那覇市赤嶺1丁目5−5 レールビューパレス 1階
- 営業時間
- 10:00~18:00
- 定休日
- 水曜日
- 営業エリア
- 那覇市・豊見城市・糸満市・南城市・南風原町・与那原町・八重瀬町
- 取引態様
- 賃貸仲介業





















