ルーエ五条堀川 601号室(6階/1LDK)の賃貸物件(賃貸マンション)
京都府京都市下京区にあるルーエ五条堀川 601号室はガスコンロ、宅配ボックス、シューズボックス、室内洗濯機置場、2人入居可などが特徴です。最寄り駅の京都市営地下鉄 烏丸線五条駅から徒歩10分です。ルーエ五条堀川 601号室の詳細はクラスモ FC四条烏丸店までお気軽にお問い合わせください!
情報更新日:
次回更新予定日:
※次回更新予定日について:お店側では順次空室確認を行っていますが、次回更新予定日までに空室確認が行えない場合には、この物件情報は自動的に削除されます。
ルーエ五条堀川 601号室の賃貸物件部屋概要
家賃 |
11.8万円
初期費用を |
|---|---|
共益費 |
12,000円
入居可能時期 |
敷金/礼金 |
130,000円 / 260,000円 |
保証金/ |
- / - |
最寄駅 |
|
所在地 |
京都府京都市下京区柿本町 |
部屋番号 |
601号室 |
間取り |
1LDK(洋5.2・LDK11) |
専有面積 |
40.04㎡ |
築年数 |
2015年2月(築11年) |
階数 |
6階部分(地上7階建) |
方位・位置 |
東 / その他 |
物件種別 |
賃貸マンション |
構造 |
RC |
駐車場 |
空無し |
小学校学区 |
下京雅小学校 |
中学校学区 |
下京中学校 |
他の空き部屋 |
***号室 206号室 ***号室 503号室 |
- 学区データについて
- ※学区データは必ずしも正確とは限りません。詳細に関しては最寄店舗または各自治体の教育委員会に必ずご確認ください。
ルーエ五条堀川 601号室の特徴
契約条件
この物件は、2人入居もご契約できます。 お支払いは、初期費用がクレジットカードにて決済できます。
セキュリティ
この物件の建物には、オートロックや防犯カメラや宅配ボックスが設置されており、来客時には居室内のテレビモニターにて訪問者の顔を確認することができます。
室内設備
システムキッチンには、ガスコンロが備え付けられています。 トイレは、温水洗浄便座機能付きになります。 女性に嬉しい設備のシャワーの付いている洗面化粧台があります。 洗濯に便利な設備として、室内洗濯機置場があります。浴室乾燥機も設置されているので、梅雨時の生乾き臭も比較的防ぐことができます。
居室状況
お部屋の床は、全居室フローリングとなっており、エアコンが設置されています。 収納スペースとして、基本的な居室にクローゼットを設置、通常よりも収納力の高いウォークインクローゼット、玄関にはシューズボックスがあります。
建物設備共用部分
居室外の専有スペースとして、洗濯物を干すなどの用途として利用できるバルコニーがあります。 建物の共用スペースに、日々の出入に便利なエレベーターや、いざという時の防犯カメラや、急な外出や不在がちのご家庭の荷物受け取りに便利な宅配ボックスが設置されています。 駐輪場、バイク置き場が利用できます。
周辺施設
この物件の学区は、下京雅小学校区・下京中学校区です。近くには、徒歩7分(538m)でドラッグストアがあります。
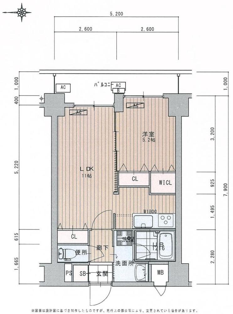
ルーエ五条堀川 601号室の間取り
間取り:1LDK
間取詳細:1LDK(洋5.2・LDK11)
専有面積:40.04㎡
方位:東
部屋位置:その他
ルーエ五条堀川 601号室の設備
キッチン
システムキッチン
ガスコンロ
バス・トイレ
バス・トイレ別
浴室乾燥機
温水洗浄便座
独立洗面台
シャワー付洗面化粧台
玄関
TVモニタ付インターホン
オートロック
宅配ボックス
収納
クローゼット
ウォークインクローゼット
シューズボックス
バルコニー
バルコニー
室内設備
エアコン
フローリング
全居室フローリング
室内洗濯機置場
位置・立地
2階以上
インフラ
インターネット可
BS
CS
都市ガス
建物設備
エレベーター
防犯カメラ
24時間換気システム
駐輪場
バイク置き場
入居条件
2人入居可
ライフステージ
一人暮らしに人気の設備
カップルに人気の設備
家族に人気の設備
夫婦に人気の設備
三世代で人気の設備
こだわり
セキュリティ対策重視
雨の日でも洗濯したい
洋室で暮らしたい
趣味
服やおしゃれが好き
お得な条件
初期費用カード決済可
ルーエ五条堀川 601号室の賃貸契約情報
毎月支払う |
家賃11.8万円/月共益費12,000円/月 |
|---|---|
初期費用 |
敷金130,000円礼金260,000円保証金-敷引き償却金- |
更新料 |
1ヶ月 |
鍵交換費用 |
29,700円 |
室内清掃費用 |
52,862円 |
駐車場料金 |
空無し |
損保・ |
借家賠付きの火災保険にご加入いただきます。 |
保証会社 |
加入要 保証会社:レジデントアシスタンス 保証会社利用料:初回契約時:50%、更新時:9,600円、口座振替手数料110円/月額 |
契約期間 |
2年 |
入居可能日 |
相談 |
フリーレント期間 |
- |
取引形態 |
一般媒介 |
備考 |
弊社は来店不要のオンライン内見、オンライン申込みが可能です。各種クレジットカード決済もご利用可能です。 |
ルーエ五条堀川 601号室の建物情報
建物名称 |
ルーエ五条堀川 |
|---|---|
最寄駅 |
|
所在地 |
京都府京都市下京区柿本町 |
階層 |
6階部分(地上7階建) |
構造 |
RC |
築年数 |
2015年2月(築11年) |
駐車場 |
空無し |
小学校学区 |
下京雅小学校 |
中学校学区 |
下京中学校 |
- 学区データについて
- ※学区データは必ずしも正確とは限りません。詳細に関しては最寄店舗または各自治体の教育委員会に必ずご確認ください。
無料この物件に問い合わせ
- ルーエ五条堀川 601号室

-
11.8万円
(共益費
12,000円)
- 敷
- 130,000円
- 礼
- 260,000円
- 保
- -
- 償
- -
ルーエ五条堀川 601号室の物件のお問い合わせ先・取り扱い店舗
クラスモ FC四条烏丸店
- アクセス
-
京都市営地下鉄 烏丸線「四条駅」徒歩3分
阪急京都線「烏丸駅」徒歩3分
京都市営地下鉄 烏丸線「烏丸御池駅」徒歩13分
- 住所
- 〒600-8492 京都府京都市下京区月鉾町47-4 四条廣田ビル1F
- 営業時間
- 10:00~19:00
- 定休日
- なし(年末年始)
- 営業エリア
- 京都市内全域 北区・上京区・中京区・下京区・東山区・右京区 左京区・南区・伏見区・西京区・山科区
- 取引態様
- 賃貸仲介業・FC店






































