ELPIS・Kira(エルピス・キラ) 301号室(3階/1LDK)の賃貸物件(賃貸マンション)
静岡県浜松市中央区にあるELPIS・Kira(エルピス・キラ) 301号室はシステムキッチン、TVモニタ付インターホン、クローゼット、CS、平面駐車場などが特徴です。最寄り駅の遠州鉄道上島駅からバスで31分、開成中学入り口から徒歩5分です。ELPIS・Kira(エルピス・キラ) 301号室の詳細はハウスコム 浜松店までお気軽にお問い合わせください!
情報更新日:
次回更新予定日:
※次回更新予定日について:お店側では順次空室確認を行っていますが、次回更新予定日までに空室確認が行えない場合には、この物件情報は自動的に削除されます。
ELPIS・Kira(エルピス・キラ) 301号室の賃貸物件部屋概要
家賃 |
7.4万円
初期費用を |
|---|---|
共益費 |
4,000円
入居可能時期 |
敷金/礼金 |
- / 1ヶ月 |
保証金/ |
- / - |
最寄駅 |
|
所在地 |
静岡県浜松市中央区高丘西 |
部屋番号 |
301号室 |
間取り |
1LDK(洋6.3・LDK16.6) |
専有面積 |
56.97㎡ |
築年数 |
2023年3月(築3年) |
階数 |
3階部分(地上4階建) |
方位・位置 |
南東 / 角部屋 |
物件種別 |
賃貸マンション |
構造 |
RC |
駐車場 |
空有 賃料に含む |
小学校学区 |
ー |
中学校学区 |
ー |
他の空き部屋 |
402号室 |
- 学区データについて
- ※学区データは必ずしも正確とは限りません。詳細に関しては最寄店舗または各自治体の教育委員会に必ずご確認ください。
ELPIS・Kira(エルピス・キラ) 301号室の特徴
-
一人暮らしに人気の設備

-
カップルに人気の設備

-
家族に人気の設備

-
夫婦に人気の設備

-
三世代で人気の設備

-
外で子どもと遊びたい

-
雨の日でも洗濯したい

-
洋室で暮らしたい

-
料理が好き

-
服やおしゃれが好き

-
推し活グッズを飾りたい

-
ガーデニングが好き

契約条件
この物件は、2人入居もご契約できます。 また、ご契約時に保証人は不要です。 敷金が無料なため、初期費用が比較的安くなる傾向にあります。
セキュリティ
この物件の建物には、オートロックが設置されており、来客時には居室内のテレビモニターにて訪問者の顔を確認することができます。
室内設備
システムキッチンには、ガスコンロが備え付けられています。 お風呂とトイレは別です。お風呂には、追い焚き機能が備わっています。 トイレは、温水洗浄便座機能付きになります。 女性に嬉しい設備のシャワーの付いている洗面化粧台があります。 洗濯に便利な設備として、室内洗濯機置場があります。
居室状況
お部屋の床は、フローリングとなっており、エアコンが設置されています。 インターネットも無料で入居後すぐ生活が始められます。 収納スペースとして、基本的な居室にクローゼットを設置、通常よりも収納力の高いウォークインクローゼット、玄関にはシューズボックスがあります。
建物設備共用部分
居室外の専有スペースとして、洗濯物を干すなどの用途として利用できるバルコニーがあります。 平面駐車場があります。駐輪場が利用できます。
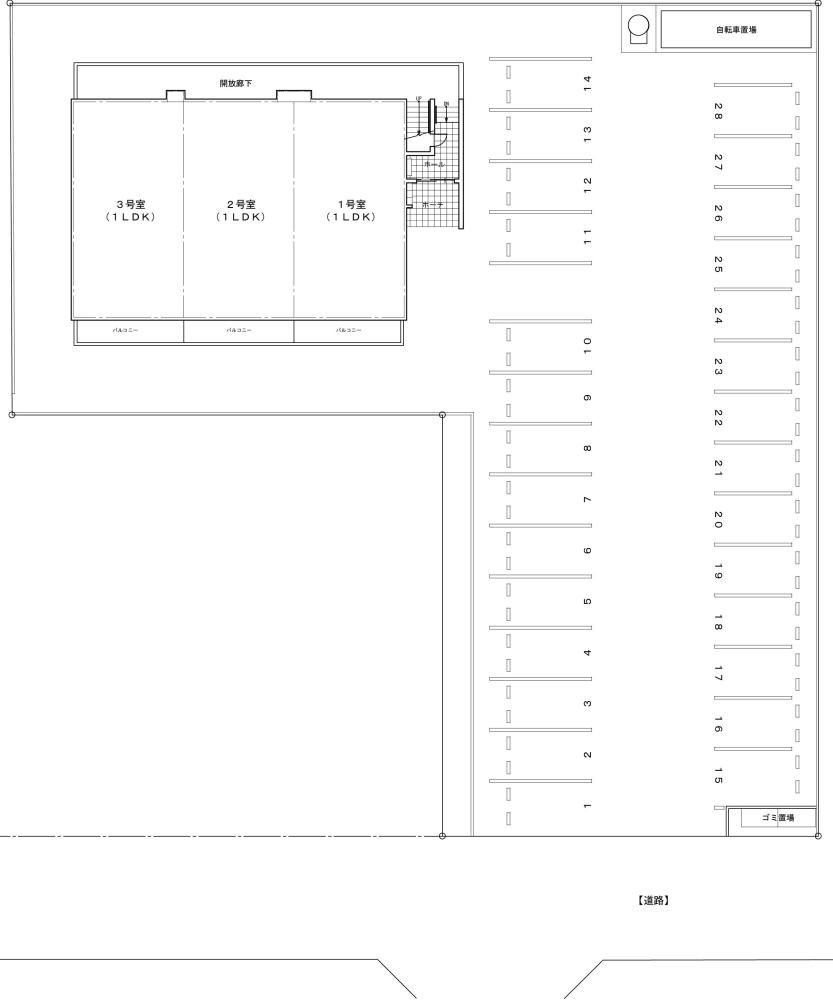
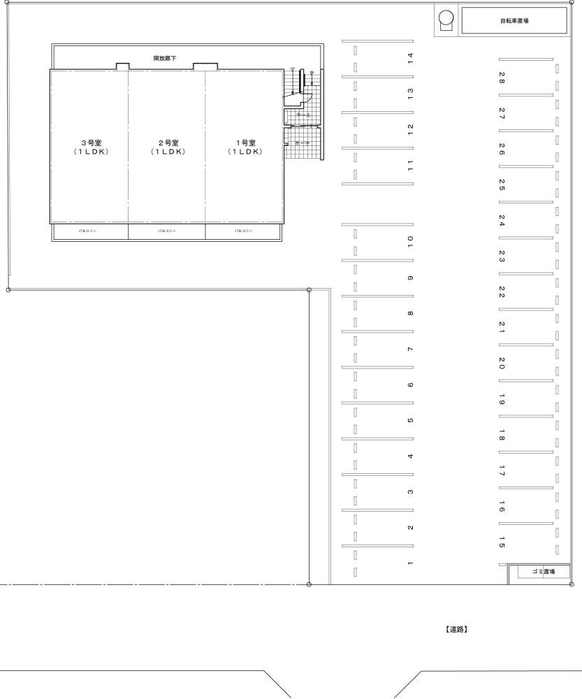
ELPIS・Kira(エルピス・キラ) 301号室の間取り
間取り:1LDK
間取詳細:1LDK(洋6.3・LDK16.6)
専有面積:56.97㎡
方位:南東
部屋位置:角部屋
ELPIS・Kira(エルピス・キラ) 301号室の設備
キッチン
システムキッチン
カウンターキッチン
ガスコンロ
バス・トイレ
バス・トイレ別
追い焚き
温水洗浄便座
独立洗面台
シャワー付洗面化粧台
玄関
TVモニタ付インターホン
オートロック
収納
クローゼット
ウォークインクローゼット
シューズボックス
バルコニー
バルコニー
ルーフバルコニー
室内設備
エアコン
フローリング
室内洗濯機置場
位置・立地
2階以上
角部屋
インフラ
BS
CS
プロパンガス
建物設備
駐車場
平面駐車場
駐輪場
入居条件
2人入居可
オンライン相談可
オンライン内見可
保証人不要
ライフステージ
一人暮らしに人気の設備
カップルに人気の設備
家族に人気の設備
夫婦に人気の設備
三世代で人気の設備
こだわり
外で子どもと遊びたい
雨の日でも洗濯したい
洋室で暮らしたい
趣味
料理が好き
服やおしゃれが好き
推し活グッズを飾りたい
ガーデニングが好き
お得な条件
インターネット無料
ELPIS・Kira(エルピス・キラ) 301号室の賃貸契約情報
毎月支払う |
家賃7.4万円/月共益費4,000円/月 |
|---|---|
初期費用 |
敷金-礼金1ヶ月 (7.4万円)保証金-敷引き償却金- |
更新料 |
30,000円 |
鍵交換費用 |
- |
室内清掃費用 |
- |
契約一時金 |
100,000円 |
ICカード代 |
6,600円 |
駐車場料金 |
空有 賃料に含む |
損保・ |
借家賠付きの火災保険にご加入いただきます。 |
保証会社 |
加入要 保証会社:JACCS 保証会社利用料:初回保証料:20000円 月額保証料:家賃総額の1.5% |
契約期間 |
2年 |
入居可能日 |
2026年04月 |
フリーレント期間 |
- |
取引形態 |
一般媒介 |
備考 |
契約一時金100000円 ICカード代6600円 自治会費850円/月 緊急サポート24:1100円/月 2台目駐車場5500円/月 駐輪場220円/月 火災保険20000円/2年 |
ELPIS・Kira(エルピス・キラ) 301号室の建物情報
建物名称 |
ELPIS・Kira(エルピス・キラ) |
|---|---|
最寄駅 |
|
所在地 |
静岡県浜松市中央区高丘西 |
階層 |
3階部分(地上4階建) |
構造 |
RC |
築年数 |
2023年3月(築3年) |
駐車場 |
空有 賃料に含む |
小学校学区 |
ー |
中学校学区 |
ー |
- 学区データについて
- ※学区データは必ずしも正確とは限りません。詳細に関しては最寄店舗または各自治体の教育委員会に必ずご確認ください。
無料この物件に問い合わせ
- ELPIS・Kira(エルピス・キラ) 301号室

-
7.4万円
(共益費
4,000円)
- 敷
- -
- 礼
- 1ヶ月
- 保
- -
- 償
- -
ELPIS・Kira(エルピス・キラ) 301号室の物件のお問い合わせ先・取り扱い店舗
ハウスコム 浜松店
- アクセス
-
東海道本線(JR東海)「浜松駅」より車で10分、浜松学院高等学校前
- 住所
- 〒430-0906 静岡県浜松市中央区住吉2丁目2−19
- 営業時間
- 10:00~18:00
- 定休日
- 水曜日
- 営業エリア
- 浜松市《中央区》,浜松市《浜名区》,浜松市《天竜区》,湖西市,磐田市
- 取引態様
- 賃貸仲介業







