メイクスアート桜木町 505号室(5階/1LDK)の賃貸物件(賃貸マンション)
神奈川県横浜市西区にあるメイクスアート桜木町 505号室はクローゼット、室内洗濯機置場、デザイナーズ、ペット可・相談、楽器可・相談などが特徴です。最寄り駅の京浜東北・根岸線桜木町駅から徒歩7分です。メイクスアート桜木町 505号室の詳細はハウスコム 横浜店までお気軽にお問い合わせください!
情報更新日:
次回更新予定日:
※次回更新予定日について:お店側では順次空室確認を行っていますが、次回更新予定日までに空室確認が行えない場合には、この物件情報は自動的に削除されます。
メイクスアート桜木町 505号室の賃貸物件部屋概要
家賃 |
17.5万円
初期費用を |
|---|---|
共益費 |
12,000円
入居可能時期 |
敷金/礼金 |
1ヶ月 / 1ヶ月 |
保証金/ |
- / - |
最寄駅 |
|
所在地 |
神奈川県横浜市西区宮崎町 |
部屋番号 |
505号室 |
間取り |
1LDK |
専有面積 |
38.04㎡ |
築年数 |
新築 |
階数 |
5階部分(地上5階建) |
方位・位置 |
北 / 角部屋 |
物件種別 |
賃貸マンション |
構造 |
RC |
駐車場 |
- |
小学校学区 |
本町小学校 |
中学校学区 |
横浜吉田中学校 |
他の空き部屋 |
101号室 102号室 103号室 104号室 105号室 106号室 201号室 203号室 204号室 205号室 206号室 207号室 208号室 301号室 302号室 303号室 304号室 305号室 306号室 307号室 308号室 401号室 402号室 403号室 404号室 406号室 407号室 408号室 501号室 502号室 503号室 504号室 |
- 学区データについて
- ※学区データは必ずしも正確とは限りません。詳細に関しては最寄店舗または各自治体の教育委員会に必ずご確認ください。
メイクスアート桜木町 505号室の特徴
-
一人暮らしに人気の設備

-
カップルに人気の設備

-
家族に人気の設備

-
夫婦に人気の設備

-
三世代で人気の設備

-
タイパ重視

-
外で子どもと遊びたい

-
雨の日でも洗濯したい

-
洋室で暮らしたい

-
オークション・通販が好き

-
ガーデニングが好き

契約条件
ペットの飼育や楽器演奏もご相談ください。
セキュリティ
この物件の建物には、防犯カメラや宅配ボックスが設置されております。
室内設備
システムキッチンが備え付けられています。 洗濯に便利な設備として、室内洗濯機置場があります。浴室乾燥機も設置されているので、梅雨時の生乾き臭も比較的防ぐことができます。
居室状況
お部屋の床は、フローリングとなっており、エアコンが設置されています。 インターネットも無料で入居後すぐ生活が始められます。 収納スペースとして、基本的な居室にクローゼットを設置、玄関にはシューズボックスがあります。
建物設備共用部分
居室外の専有スペースとして、洗濯物を干すなどの用途として利用できるバルコニーがあります。 建物の共用スペースに、日々の出入に便利なエレベーターや、いざという時の防犯カメラや、急な外出や不在がちのご家庭の荷物受け取りに便利な宅配ボックスや、居室内を常に清潔に保てる24時間利用可能なゴミ捨て置き場が設置されています。
周辺施設
この物件の学区は、本町小学校区・横浜吉田中学校区です。
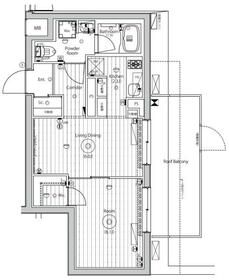
メイクスアート桜木町 505号室の間取り
間取り:1LDK
間取詳細:1LDK
専有面積:38.04㎡
方位:北
部屋位置:角部屋
メイクスアート桜木町 505号室の設備
キッチン
システムキッチン
バス・トイレ
浴室乾燥機
玄関
宅配ボックス
収納
クローゼット
シューズボックス
バルコニー
バルコニー
ルーフバルコニー
室内設備
エアコン
フローリング
室内洗濯機置場
デザイナーズ
位置・立地
2階以上
最上階
角部屋
インフラ
BS
CS
建物設備
エレベーター
防犯カメラ
24時間ゴミ出しOK
入居条件
ペット可・相談
楽器可・相談
ライフステージ
一人暮らしに人気の設備
カップルに人気の設備
家族に人気の設備
夫婦に人気の設備
三世代で人気の設備
こだわり
タイパ重視
外で子どもと遊びたい
雨の日でも洗濯したい
洋室で暮らしたい
趣味
オークション・通販が好き
ガーデニングが好き
お得な条件
インターネット無料
メイクスアート桜木町 505号室の賃貸契約情報
毎月支払う |
家賃17.5万円/月共益費12,000円/月 |
|---|---|
初期費用 |
敷金1ヶ月 (17.5万円)礼金1ヶ月 (17.5万円)保証金-敷引き償却金- |
更新料 |
262,500円 |
鍵交換費用 |
- |
室内清掃費用 |
- |
駐車場料金 |
- |
損保・ |
借家賠付きの火災保険にご加入いただきます。 |
保証会社 |
加入要 保証会社利用料:初回保証委託料:賃料+管理費の80%最低保証料20,000円 手数料:月額賃料の1%※継続保証料無 |
契約期間 |
2年 |
入居可能日 |
2026年03月 |
フリーレント期間 |
- |
取引形態 |
一般媒介 |
備考 |
- |
メイクスアート桜木町 505号室の建物情報
建物名称 |
メイクスアート桜木町 |
|---|---|
最寄駅 |
|
所在地 |
神奈川県横浜市西区宮崎町 |
階層 |
5階部分(地上5階建) |
構造 |
RC |
築年数 |
新築 |
駐車場 |
- |
小学校学区 |
本町小学校 |
中学校学区 |
横浜吉田中学校 |
- 学区データについて
- ※学区データは必ずしも正確とは限りません。詳細に関しては最寄店舗または各自治体の教育委員会に必ずご確認ください。
無料この物件に問い合わせ
- メイクスアート桜木町 505号室

-
17.5万円
(共益費
12,000円)
- 敷
- 1ヶ月
- 礼
- 1ヶ月
- 保
- -
- 償
- -
メイクスアート桜木町 505号室の物件のお問い合わせ先・取り扱い店舗
ハウスコム 横浜店
- アクセス
-
東海道本線(JR東日本)「横浜駅」徒歩5分
- 住所
- 〒220-0005 神奈川県横浜市西区南幸2丁目20−2 共栄ビル 1F
- 営業時間
- 10:00~18:00
- 定休日
- なし
- 営業エリア
- 横浜市全域
- 取引態様
- 賃貸仲介業







