Gramercy Nipponbashi 0906号室(9階/1K)の賃貸物件(賃貸マンション)
大阪府大阪市中央区にあるGramercy Nipponbashi 0906号室は独立洗面台、エアコン、室内洗濯機置場、2階以上、CATVなどが特徴です。最寄り駅の大阪メトロ 堺筋線日本橋駅から徒歩1分です。Gramercy Nipponbashi 0906号室の詳細はミニミニ FC心斎橋店までお気軽にお問い合わせください!
情報更新日:
次回更新予定日:
※次回更新予定日について:お店側では順次空室確認を行っていますが、次回更新予定日までに空室確認が行えない場合には、この物件情報は自動的に削除されます。
Gramercy Nipponbashi 0906号室の賃貸物件部屋概要
家賃 |
8.8万円
初期費用を |
|---|---|
共益費 |
6,000円
入居可能時期 |
敷金/礼金 |
- / - |
保証金/ |
- / - |
最寄駅 |
|
所在地 |
大阪府大阪市中央区日本橋 |
部屋番号 |
0906号室 |
間取り |
1K |
専有面積 |
25.20㎡ |
築年数 |
2007年8月(築19年) |
階数 |
9階部分(地上15階建) |
方位・位置 |
南 / その他 |
物件種別 |
賃貸マンション |
構造 |
RC |
駐車場 |
無 |
小学校学区 |
高津小学校 |
中学校学区 |
南中学校 |
他の空き部屋 |
1106号室 ***号室 ***号室 |
- 学区データについて
- ※学区データは必ずしも正確とは限りません。詳細に関しては最寄店舗または各自治体の教育委員会に必ずご確認ください。
Gramercy Nipponbashi 0906号室の特徴
契約条件
敷金と礼金が無料なため、初期費用が比較的安くなる傾向にあります。
セキュリティ
この物件の建物には、オートロックや防犯カメラや宅配ボックスが設置されており、来客時には居室内のテレビモニターにて訪問者の顔を確認することができます。
室内設備
女性に嬉しい設備の独立した洗面化粧台があります。 洗濯に便利な設備として、室内洗濯機置場があります。浴室乾燥機も設置されているので、梅雨時の生乾き臭も比較的防ぐことができます。
居室状況
エアコンが設置されています。 収納スペースとして、玄関にはシューズボックスがあります。
建物設備共用部分
居室外の専有スペースとして、洗濯物を干すなどの用途として利用できるバルコニーがあります。 建物の共用スペースに、日々の出入に便利なエレベーターや、いざという時の防犯カメラや、急な外出や不在がちのご家庭の荷物受け取りに便利な宅配ボックスが設置されています。 駐輪場、バイク置き場が利用できます。
周辺施設
この物件の学区は、高津小学校区・南中学校区です。
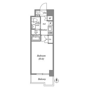
Gramercy Nipponbashi 0906号室の間取り
間取り:1K
間取詳細:1K
専有面積:25.20㎡
方位:南
部屋位置:その他
Gramercy Nipponbashi 0906号室の設備
バス・トイレ
バス・トイレ別
浴室乾燥機
独立洗面台
玄関
TVモニタ付インターホン
オートロック
宅配ボックス
収納
シューズボックス
バルコニー
バルコニー
ルーフバルコニー
室内設備
エアコン
室内洗濯機置場
位置・立地
2階以上
南向き
インフラ
CATV
都市ガス
建物設備
エレベーター
防犯カメラ
駐輪場
バイク置き場
ライフステージ
一人暮らしに人気の設備
カップルに人気の設備
家族に人気の設備
夫婦に人気の設備
三世代で人気の設備
こだわり
セキュリティ対策重視
外で子どもと遊びたい
雨の日でも洗濯したい
趣味
ガーデニングが好き
Gramercy Nipponbashi 0906号室の賃貸契約情報
毎月支払う |
家賃8.8万円/月共益費6,000円/月 |
|---|---|
初期費用 |
敷金-礼金-保証金-敷引き償却金- |
更新料 |
- |
鍵交換費用 |
- |
室内清掃費用 |
33,000円 |
更新手数料 |
22,000円 |
カギ代 |
16,500円 |
駐車場料金 |
無 |
損保・ |
借家賠付きの火災保険にご加入いただきます。 |
保証会社 |
加入要 保証会社利用料:株式会社エポスカード 大手法人相談可 |
契約期間 |
2年 |
入居可能日 |
2026年04月下旬 |
フリーレント期間 |
- |
取引形態 |
一般媒介 |
備考 |
- |
Gramercy Nipponbashi 0906号室の建物情報
建物名称 |
Gramercy Nipponbashi |
|---|---|
最寄駅 |
|
所在地 |
大阪府大阪市中央区日本橋 |
階層 |
9階部分(地上15階建) |
構造 |
RC |
築年数 |
2007年8月(築19年) |
駐車場 |
無 |
小学校学区 |
高津小学校 |
中学校学区 |
南中学校 |
- 学区データについて
- ※学区データは必ずしも正確とは限りません。詳細に関しては最寄店舗または各自治体の教育委員会に必ずご確認ください。
無料この物件に問い合わせ
- Gramercy Nipponbashi 0906号室

-
8.8万円
(共益費
6,000円)
- 敷
- -
- 礼
- -
- 保
- -
- 償
- -
Gramercy Nipponbashi 0906号室の物件のお問い合わせ先・取り扱い店舗
ミニミニ FC心斎橋店
- アクセス
-
大阪メトロ 御堂筋線「心斎橋駅」徒歩2分
大阪メトロ 長堀鶴見緑地線「心斎橋駅」徒歩2分
- 住所
- 〒542-0081 大阪府大阪市中央区南船場3-11-6 アルファビル1F
- 営業時間
- 10:00~18:00
- 定休日
- なし
- 営業エリア
- 大阪市中央区,大阪市西区、大阪市北区、大阪市浪速区、大阪市城東区、大阪市港区、大阪市福島区
- 取引態様
- 賃貸仲介業






























