西ノ京左馬寮町の完工年月(2007年1月)築の賃貸一戸建て ***号室(1階/3LDK)の賃貸物件(賃貸一戸建て)
京都府京都市中京区にある西ノ京左馬寮町の完工年月(2007年1月)築の賃貸一戸建て ***号室はシステムキッチン、カウンターキッチン、フローリング、角部屋、2人入居可などが特徴です。最寄り駅の山陰本線円町駅から徒歩8分です。西ノ京左馬寮町の完工年月(2007年1月)築の賃貸一戸建て ***号室の詳細はハウスコム FC京都大宮店までお気軽にお問い合わせください!
情報更新日:
次回更新予定日:
※次回更新予定日について:お店側では順次空室確認を行っていますが、次回更新予定日までに空室確認が行えない場合には、この物件情報は自動的に削除されます。
西ノ京左馬寮町の完工年月(2007年1月)築の賃貸一戸建て ***号室の賃貸物件部屋概要
家賃 |
17.8万円
初期費用を |
|---|---|
共益費 |
-
入居可能時期 |
敷金/礼金 |
100,000円 / 200,000円 |
保証金/ |
- / - |
最寄駅 |
|
所在地 |
京都府京都市中京区西ノ京左馬寮町 |
部屋番号 |
***号室 |
間取り |
3LDK(洋6・洋6・洋6・LDK17) |
専有面積 |
84.64㎡ |
築年数 |
2007年1月(築20年) |
階数 |
1階部分(地上2階建) |
方位・位置 |
南 / 角部屋 |
物件種別 |
賃貸一戸建て |
構造 |
鉄骨造 |
駐車場 |
空有 賃料に含む |
小学校学区 |
朱雀第二小学校 |
中学校学区 |
西ノ京中学校 |
他の空き部屋 |
ー |
- 学区データについて
- ※学区データは必ずしも正確とは限りません。詳細に関しては最寄店舗または各自治体の教育委員会に必ずご確認ください。
西ノ京左馬寮町の完工年月(2007年1月)築の賃貸一戸建て ***号室の特徴
契約条件
この物件は、2人入居もご契約できます。
セキュリティ
来客時には居室内のテレビモニターにて訪問者の顔を確認することができます。
室内設備
システムキッチンには、ガスコンロが備え付けられています。 お風呂とトイレは別です。お風呂には、追い焚き機能が備わっています。 トイレは、温水洗浄便座機能付きになります。 女性に嬉しい設備のシャワーの付いている洗面化粧台があります。 洗濯に便利な設備として、室内洗濯機置場があります。
居室状況
お部屋の床は、全居室フローリングとなっています。収納スペースとして、基本的な居室にクローゼットを設置、玄関にはシューズボックスがあります。
建物設備共用部分
居室外の専有スペースとして、洗濯物を干すなどの用途として利用できるバルコニーがあります。 駐車場があり、無料で利用することができます。駐輪場、バイク置き場が利用できます。
周辺施設
この物件の学区は、朱雀第二小学校区・西ノ京中学校区です。近くには、徒歩2分(96m)でドラッグストアが、徒歩9分(657m)で公園があります。
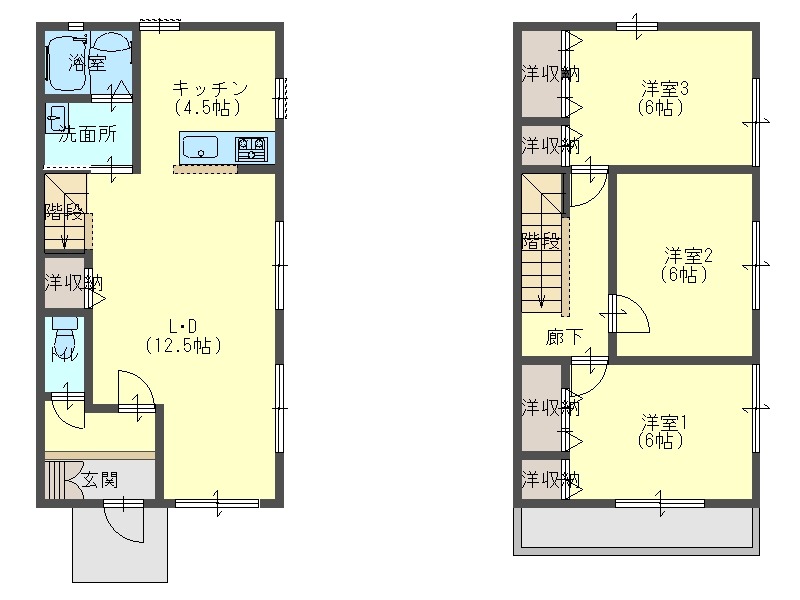
西ノ京左馬寮町の完工年月(2007年1月)築の賃貸一戸建て ***号室の間取り
間取り:3LDK
間取詳細:3LDK(洋6・洋6・洋6・LDK17)
専有面積:84.64㎡
方位:南
部屋位置:角部屋
西ノ京左馬寮町の完工年月(2007年1月)築の賃貸一戸建て ***号室の設備
キッチン
システムキッチン
カウンターキッチン
ガスコンロ
バス・トイレ
バス・トイレ別
追い焚き
温水洗浄便座
独立洗面台
シャワー付洗面化粧台
玄関
TVモニタ付インターホン
収納
クローゼット
シューズボックス
バルコニー
バルコニー
室内設備
フローリング
全居室フローリング
室内洗濯機置場
位置・立地
1階
角部屋
南向き
インフラ
都市ガス
建物設備
駐輪場
バイク置き場
入居条件
2人入居可
ライフステージ
一人暮らしに人気の設備
カップルに人気の設備
家族に人気の設備
夫婦に人気の設備
三世代で人気の設備
こだわり
雨の日でも洗濯したい
洋室で暮らしたい
趣味
料理が好き
推し活グッズを飾りたい
お得な条件
仲介手数料1ヶ月未満
駐車場無料
西ノ京左馬寮町の完工年月(2007年1月)築の賃貸一戸建て ***号室の賃貸契約情報
毎月支払う |
家賃17.8万円/月共益費- |
|---|---|
初期費用 |
敷金100,000円礼金200,000円保証金-敷引き償却金- |
更新料 |
200,000円 |
鍵交換費用 |
- |
室内清掃費用 |
55,000円 |
駐車場料金 |
空有 賃料に含む |
損保・ |
借家賠付きの火災保険にご加入いただきます。 |
保証会社 |
加入要 保証会社:日本セーフティー 保証会社利用料:初回契約時:58,000円 |
契約期間 |
2年 |
入居可能日 |
2026年04月中旬 |
フリーレント期間 |
- |
取引形態 |
仲介 |
備考 |
- |
西ノ京左馬寮町の完工年月(2007年1月)築の賃貸一戸建て ***号室の建物情報
建物名称 |
西ノ京左馬寮町の完工年月(2007年1月)築の賃貸一戸建て |
|---|---|
最寄駅 |
|
所在地 |
京都府京都市中京区西ノ京左馬寮町 |
階層 |
1階部分(地上2階建) |
構造 |
鉄骨造 |
築年数 |
2007年1月(築20年) |
駐車場 |
空有 賃料に含む |
小学校学区 |
朱雀第二小学校 |
中学校学区 |
西ノ京中学校 |
- 学区データについて
- ※学区データは必ずしも正確とは限りません。詳細に関しては最寄店舗または各自治体の教育委員会に必ずご確認ください。
無料この物件に問い合わせ
- 西ノ京左馬寮町の完工年月(2007年1月)築の賃貸一戸建て ***号室

-
17.8万円
(共益費
-)
- 敷
- 100,000円
- 礼
- 200,000円
- 保
- -
- 償
- -
西ノ京左馬寮町の完工年月(2007年1月)築の賃貸一戸建て ***号室の物件のお問い合わせ先・取り扱い店舗
ハウスコム FC京都大宮店
- アクセス
-
阪急京都線「大宮駅」徒歩5分
阪急京都線「烏丸駅」徒歩10分
- 住所
- 〒600-8481 京都府京都市下京区四条堀川町261番地1 ラフィーネ四条堀川1階
- 営業時間
- 10:00~19:00
- 定休日
- 水曜日
- 営業エリア
- 京都市・亀岡市・長岡京市・向日市・城陽市・宇治市 ・大津市・草津市
- 取引態様
- 賃貸仲介業・FC店















