アムールSAIDO 103号室(1階/1K)の賃貸物件(賃貸アパート)
神奈川県横浜市港南区にあるアムールSAIDO 103号室はバス・トイレ別、ルーフバルコニー、フローリング、1階、インターネット可などが特徴です。最寄り駅の横浜市営地下鉄 ブルーライン上大岡駅から徒歩9分です。アムールSAIDO 103号室の詳細はハウスコム 上大岡店までお気軽にお問い合わせください!
情報更新日:
次回更新予定日:
※次回更新予定日について:お店側では順次空室確認を行っていますが、次回更新予定日までに空室確認が行えない場合には、この物件情報は自動的に削除されます。
アムールSAIDO 103号室の賃貸物件部屋概要
家賃 |
5.5万円
初期費用を |
|---|---|
共益費 |
3,000円
入居可能時期 |
敷金/礼金 |
- / 55,000円 |
保証金/ |
- / - |
最寄駅 |
|
所在地 |
神奈川県横浜市港南区最戸 |
部屋番号 |
103号室 |
間取り |
1K(洋7・K1.5) |
専有面積 |
22.35㎡ |
築年数 |
2006年3月(築20年) |
階数 |
1階部分(地上2階建) |
方位・位置 |
南西 / その他 |
物件種別 |
賃貸アパート |
構造 |
木造 |
駐車場 |
無 |
小学校学区 |
桜岡小学校 |
中学校学区 |
南が丘中学校 |
他の空き部屋 |
202号室 |
- 学区データについて
- ※学区データは必ずしも正確とは限りません。詳細に関しては最寄店舗または各自治体の教育委員会に必ずご確認ください。
アムールSAIDO 103号室の特徴
契約条件
敷金が無料なため、初期費用が比較的安くなる傾向にあります。
セキュリティ
来客時には居室内のテレビモニターにて訪問者の顔を確認することができます。
室内設備
洗濯に便利な設備として、室内洗濯機置場があります。
居室状況
お部屋の床は、フローリングとなっており、エアコンが設置されています。
建物設備共用部分
居室外の専有スペースとして、洗濯物を干すなどの用途として利用できるバルコニーがあります。
周辺施設
この物件の学区は、桜岡小学校区・南が丘中学校区です。
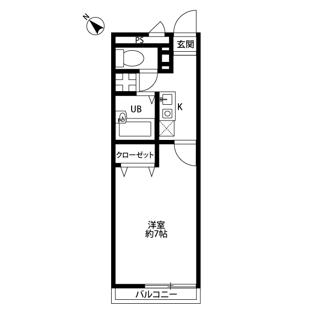
アムールSAIDO 103号室の間取り
間取り:1K
間取詳細:1K(洋7・K1.5)
専有面積:22.35㎡
方位:南西
部屋位置:その他
アムールSAIDO 103号室の設備
バス・トイレ
バス・トイレ別
玄関
TVモニタ付インターホン
バルコニー
バルコニー
ルーフバルコニー
室内設備
エアコン
フローリング
室内洗濯機置場
位置・立地
1階
インフラ
インターネット可
CATV
ライフステージ
一人暮らしに人気の設備
カップルに人気の設備
家族に人気の設備
夫婦に人気の設備
三世代で人気の設備
こだわり
外で子どもと遊びたい
雨の日でも洗濯したい
洋室で暮らしたい
趣味
ガーデニングが好き
アムールSAIDO 103号室の賃貸契約情報
毎月支払う |
家賃5.5万円/月共益費3,000円/月 |
|---|---|
初期費用 |
敷金-礼金55,000円保証金-敷引き償却金- |
更新料 |
- |
鍵交換費用 |
- |
室内清掃費用 |
- |
駐車場料金 |
無 |
損保・ |
借家賠付きの火災保険にご加入いただきます。 |
保証会社 |
加入要 保証会社利用料:株式会社木下グループ 初回保証料月額総費用の80%、利用手数料550円、継続保証料20,000円(2 |
契約期間 |
- |
入居可能日 |
2026年04月中旬 |
フリーレント期間 |
- |
取引形態 |
一般媒介 |
備考 |
- |
アムールSAIDO 103号室の建物情報
建物名称 |
アムールSAIDO |
|---|---|
最寄駅 |
|
所在地 |
神奈川県横浜市港南区最戸 |
階層 |
1階部分(地上2階建) |
構造 |
木造 |
築年数 |
2006年3月(築20年) |
駐車場 |
無 |
小学校学区 |
桜岡小学校 |
中学校学区 |
南が丘中学校 |
1/11 外観
- 学区データについて
- ※学区データは必ずしも正確とは限りません。詳細に関しては最寄店舗または各自治体の教育委員会に必ずご確認ください。
無料この物件に問い合わせ
- アムールSAIDO 103号室

-
5.5万円
(共益費
3,000円)
- 敷
- -
- 礼
- 55,000円
- 保
- -
- 償
- -
アムールSAIDO 103号室の物件のお問い合わせ先・取り扱い店舗
ハウスコム 上大岡店
駅徒歩3分以内
駅徒歩5分以内
水曜日営業
- アクセス
-
京急本線「上大岡駅」徒歩2分
- 住所
- 〒233-0002 神奈川県横浜市港南区上大岡西1丁目11−7 第10オーヴァルビル 1階
- 営業時間
- 10:00~18:00
- 定休日
- なし
- 営業エリア
- 横浜市南区,横浜市港南区,横浜市磯子区
- 取引態様
- 賃貸仲介業
お問い合わせNo. HC5-2356199-103-0017
































