パークアクシス辰巳ステージ 822号室(8階/1DK)の賃貸物件(賃貸マンション)
東京都江東区にあるパークアクシス辰巳ステージ 822号室はオートロック、宅配ボックス、室内洗濯機置場、2階以上、楽器可・相談などが特徴です。最寄り駅の東京メトロ 有楽町線辰巳駅から徒歩6分です。パークアクシス辰巳ステージ 822号室の詳細はハウスコム 西葛西店までお気軽にお問い合わせください!
情報更新日:
次回更新予定日:
※次回更新予定日について:お店側では順次空室確認を行っていますが、次回更新予定日までに空室確認が行えない場合には、この物件情報は自動的に削除されます。
パークアクシス辰巳ステージ 822号室の賃貸物件部屋概要
家賃 |
16.2万円
初期費用を |
|---|---|
共益費 |
8,000円
入居可能時期 |
敷金/礼金 |
1ヶ月 / 1ヶ月 |
保証金/ |
- / - |
最寄駅 |
|
所在地 |
東京都江東区辰巳 |
部屋番号 |
822号室 |
間取り |
1DK(洋6・DK7.3) |
専有面積 |
35.29㎡ |
築年数 |
2008年1月(築19年) |
階数 |
8階部分(地上13階建) |
方位・位置 |
東 / その他 |
物件種別 |
賃貸マンション |
構造 |
RC |
駐車場 |
無 |
小学校学区 |
辰巳小学校 |
中学校学区 |
辰巳中学校 |
他の空き部屋 |
1002号室 1114号室 1307号室 1318号室 209号室 305号室 507号室 511号室 517号室 907号室 911号室 |
- 学区データについて
- ※学区データは必ずしも正確とは限りません。詳細に関しては最寄店舗または各自治体の教育委員会に必ずご確認ください。
パークアクシス辰巳ステージ 822号室の特徴
契約条件
ペットの飼育や楽器演奏もご相談ください。
セキュリティ
この物件の建物には、オートロックや宅配ボックスが設置されております。
室内設備
システムキッチンが備え付けられています。 洗濯に便利な設備として、室内洗濯機置場があります。浴室乾燥機も設置されているので、梅雨時の生乾き臭も比較的防ぐことができます。
居室状況
お部屋の床は、フローリングとなっており、エアコンが設置されています。
建物設備共用部分
居室外の専有スペースとして、洗濯物を干すなどの用途として利用できるバルコニーがあります。 建物の共用スペースに、日々の出入に便利なエレベーターや、急な外出や不在がちのご家庭の荷物受け取りに便利な宅配ボックスが設置されています。 バイク置き場が利用できます。
周辺施設
この物件の学区は、辰巳小学校区・辰巳中学校区です。
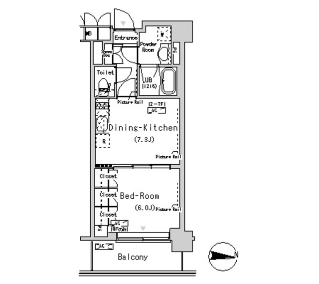
パークアクシス辰巳ステージ 822号室の間取り
間取り:1DK
間取詳細:1DK(洋6・DK7.3)
専有面積:35.29㎡
方位:東
部屋位置:その他
パークアクシス辰巳ステージ 822号室の設備
キッチン
システムキッチン
バス・トイレ
バス・トイレ別
浴室乾燥機
玄関
オートロック
宅配ボックス
バルコニー
バルコニー
ルーフバルコニー
室内設備
エアコン
フローリング
室内洗濯機置場
位置・立地
2階以上
インフラ
インターネット可
BS
CS
建物設備
エレベーター
バイク置き場
入居条件
ペット可・相談
楽器可・相談
ライフステージ
一人暮らしに人気の設備
カップルに人気の設備
家族に人気の設備
夫婦に人気の設備
三世代で人気の設備
こだわり
外で子どもと遊びたい
雨の日でも洗濯したい
洋室で暮らしたい
趣味
ガーデニングが好き
パークアクシス辰巳ステージ 822号室の賃貸契約情報
毎月支払う |
家賃16.2万円/月共益費8,000円/月 |
|---|---|
初期費用 |
敷金1ヶ月 (16.2万円)礼金1ヶ月 (16.2万円)保証金-敷引き償却金- |
更新料 |
162,000円 |
鍵交換費用 |
- |
室内清掃費用 |
- |
室内清掃費 |
59,400円 |
鍵交換費 |
16,500円 |
駐車場料金 |
無 |
損保・ |
借家賠付きの火災保険にご加入いただきます。 |
保証会社 |
加入要 保証会社利用料:保証会社名:レジデントアシスタンス株式会社/初回保証委託料(最低20000円):月額賃料等の50%、 2年目以降:9600円/年 |
契約期間 |
2年 |
入居可能日 |
即入居可 |
フリーレント期間 |
- |
取引形態 |
一般媒介 |
備考 |
- |
パークアクシス辰巳ステージ 822号室の建物情報
建物名称 |
パークアクシス辰巳ステージ |
|---|---|
最寄駅 |
|
所在地 |
東京都江東区辰巳 |
階層 |
8階部分(地上13階建) |
構造 |
RC |
築年数 |
2008年1月(築19年) |
駐車場 |
無 |
小学校学区 |
辰巳小学校 |
中学校学区 |
辰巳中学校 |
- 学区データについて
- ※学区データは必ずしも正確とは限りません。詳細に関しては最寄店舗または各自治体の教育委員会に必ずご確認ください。
無料この物件に問い合わせ
- パークアクシス辰巳ステージ 822号室

-
16.2万円
(共益費
8,000円)
- 敷
- 1ヶ月
- 礼
- 1ヶ月
- 保
- -
- 償
- -
パークアクシス辰巳ステージ 822号室の物件のお問い合わせ先・取り扱い店舗
ハウスコム 西葛西店
- アクセス
-
東京メトロ 東西線「西葛西駅」徒歩1分
- 住所
- 〒134-0088 東京都江戸川区西葛西6-15-3 中兼ビル1階
- 営業時間
- 10:00~18:00
- 定休日
- なし
- 営業エリア
- 東京都江戸川区 江東区 中央区全域 千葉県浦安市 市川市全域
- 取引態様
- 賃貸仲介業

















