ルフォンプログレ中野坂上 506号室(5階/1LDK)の賃貸物件(賃貸マンション)
東京都中野区にあるルフォンプログレ中野坂上 506号室はガスコンロ、温水洗浄便座、TVモニタ付インターホン、CATV、2人入居可などが特徴です。最寄り駅の東京メトロ 丸ノ内線中野坂上駅から徒歩7分です。ルフォンプログレ中野坂上 506号室の詳細はハウスコム 新宿店までお気軽にお問い合わせください!
情報更新日:
次回更新予定日:
※次回更新予定日について:お店側では順次空室確認を行っていますが、次回更新予定日までに空室確認が行えない場合には、この物件情報は自動的に削除されます。
ルフォンプログレ中野坂上 506号室の賃貸物件部屋概要
家賃 |
23.7万円
初期費用を |
|---|---|
共益費 |
18,000円
入居可能時期 |
敷金/礼金 |
1ヶ月 / 1ヶ月 |
保証金/ |
- / - |
最寄駅 |
|
所在地 |
東京都中野区本町 |
部屋番号 |
506号室 |
間取り |
1LDK(洋5.5・LDK11.8) |
専有面積 |
40.46㎡ |
築年数 |
2023年1月(築4年) |
階数 |
5階部分(地上6階建) |
方位・位置 |
東 / その他 |
物件種別 |
賃貸マンション |
構造 |
RC |
駐車場 |
- |
小学校学区 |
中野第一小学校 |
中学校学区 |
第二中学校 |
他の空き部屋 |
101号室 312号室 401号室 403号室 603号室 |
- 学区データについて
- ※学区データは必ずしも正確とは限りません。詳細に関しては最寄店舗または各自治体の教育委員会に必ずご確認ください。
ルフォンプログレ中野坂上 506号室の特徴
-
一人暮らしに人気の設備

-
カップルに人気の設備

-
家族に人気の設備

-
夫婦に人気の設備

-
三世代で人気の設備

-
外で子どもと遊びたい

-
雨の日でも洗濯したい

-
洋室で暮らしたい

-
推し活グッズを飾りたい

-
ガーデニングが好き

契約条件
この物件は、2人入居もご契約できます。 また、ご契約時に保証人は不要です。
セキュリティ
この物件の建物には、防犯カメラや宅配ボックスが設置されており、来客時には居室内のテレビモニターにて訪問者の顔を確認することができます。
室内設備
システムキッチンには、2つ以上のガスコンロが備え付けられています。 トイレは、温水洗浄便座機能付きになります。 女性に嬉しい設備の独立した洗面化粧台があります。 洗濯に便利な設備として、室内洗濯機置場があります。浴室乾燥機も設置されているので、梅雨時の生乾き臭も比較的防ぐことができます。
居室状況
お部屋の床は、フローリングとなっており、エアコンが設置されています。 収納スペースとして、基本的な居室にクローゼットを設置、玄関にはシューズボックスがあります。
建物設備共用部分
居室外の専有スペースとして、洗濯物を干すなどの用途として利用できるバルコニーがあります。 建物の共用スペースに、日々の出入に便利なエレベーターや、いざという時の防犯カメラや、急な外出や不在がちのご家庭の荷物受け取りに便利な宅配ボックスが設置されています。
周辺施設
この物件の学区は、中野第一小学校区・第二中学校区です。
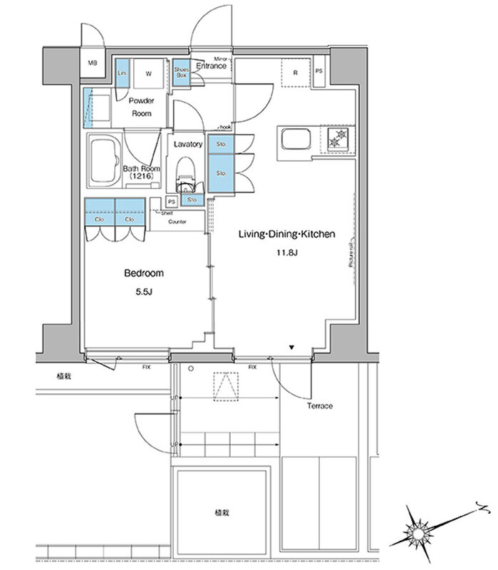
ルフォンプログレ中野坂上 506号室の間取り
間取り:1LDK
間取詳細:1LDK(洋5.5・LDK11.8)
専有面積:40.46㎡
方位:東
部屋位置:その他
ルフォンプログレ中野坂上 506号室の設備
キッチン
システムキッチン
カウンターキッチン
ガスコンロ
ガスコンロ二口以上
バス・トイレ
バス・トイレ別
浴室乾燥機
温水洗浄便座
独立洗面台
玄関
TVモニタ付インターホン
宅配ボックス
収納
クローゼット
シューズボックス
バルコニー
バルコニー
ルーフバルコニー
室内設備
エアコン
フローリング
室内洗濯機置場
位置・立地
2階以上
インフラ
インターネット可
CATV
BS
CS
都市ガス
建物設備
エレベーター
防犯カメラ
入居条件
2人入居可
オンライン相談可
オンライン内見可
保証人不要
ライフステージ
一人暮らしに人気の設備
カップルに人気の設備
家族に人気の設備
夫婦に人気の設備
三世代で人気の設備
こだわり
外で子どもと遊びたい
雨の日でも洗濯したい
洋室で暮らしたい
趣味
推し活グッズを飾りたい
ガーデニングが好き
ルフォンプログレ中野坂上 506号室の賃貸契約情報
毎月支払う |
家賃23.7万円/月共益費18,000円/月 |
|---|---|
初期費用 |
敷金1ヶ月 (23.7万円)礼金1ヶ月 (23.7万円)保証金-敷引き償却金- |
更新料 |
237,000円 |
鍵交換費用 |
- |
室内清掃費用 |
62,308円 |
駐車場料金 |
- |
損保・ |
借家賠付きの火災保険にご加入いただきます。 |
保証会社 |
加入要 保証会社利用料:初回保証委託料(最低20,000円):月額賃料等の50%、 2年目以降:9,600円/年 |
契約期間 |
2年 |
入居可能日 |
2026年05月下旬 |
フリーレント期間 |
- |
取引形態 |
一般媒介 |
備考 |
室内清掃費用53407円 月額:口座引落手数料 110円 保証会社利用必須 初回保証委託料(最低20,000円):月額賃料等の50%、 2年目以降:9,600円/年 |
ルフォンプログレ中野坂上 506号室の建物情報
建物名称 |
ルフォンプログレ中野坂上 |
|---|---|
最寄駅 |
|
所在地 |
東京都中野区本町 |
階層 |
5階部分(地上6階建) |
構造 |
RC |
築年数 |
2023年1月(築4年) |
駐車場 |
- |
小学校学区 |
中野第一小学校 |
中学校学区 |
第二中学校 |
- 学区データについて
- ※学区データは必ずしも正確とは限りません。詳細に関しては最寄店舗または各自治体の教育委員会に必ずご確認ください。
無料この物件に問い合わせ
- ルフォンプログレ中野坂上 506号室

-
23.7万円
(共益費
18,000円)
- 敷
- 1ヶ月
- 礼
- 1ヶ月
- 保
- -
- 償
- -
ルフォンプログレ中野坂上 506号室の物件のお問い合わせ先・取り扱い店舗
ハウスコム 新宿店
- アクセス
-
山手線「新宿駅」徒歩1分
- 住所
- 〒160-0022 東京都新宿区新宿3-36-2 新宿キリンビル3階
- 営業時間
- 10:00~18:00
- 定休日
- 水曜日
- 営業エリア
- 主に新宿区・渋谷区(その他の地域もご紹介可能です)
- 取引態様
- 賃貸仲介業



























